Barry Close, St. Albans, Hertfordshire, AL2 3HN

Sold Nov 2023
£700,000
Bedrooms
4
Bathrooms
2
Receptions
1
Council Tax:
F
EPC:
C
Freehold

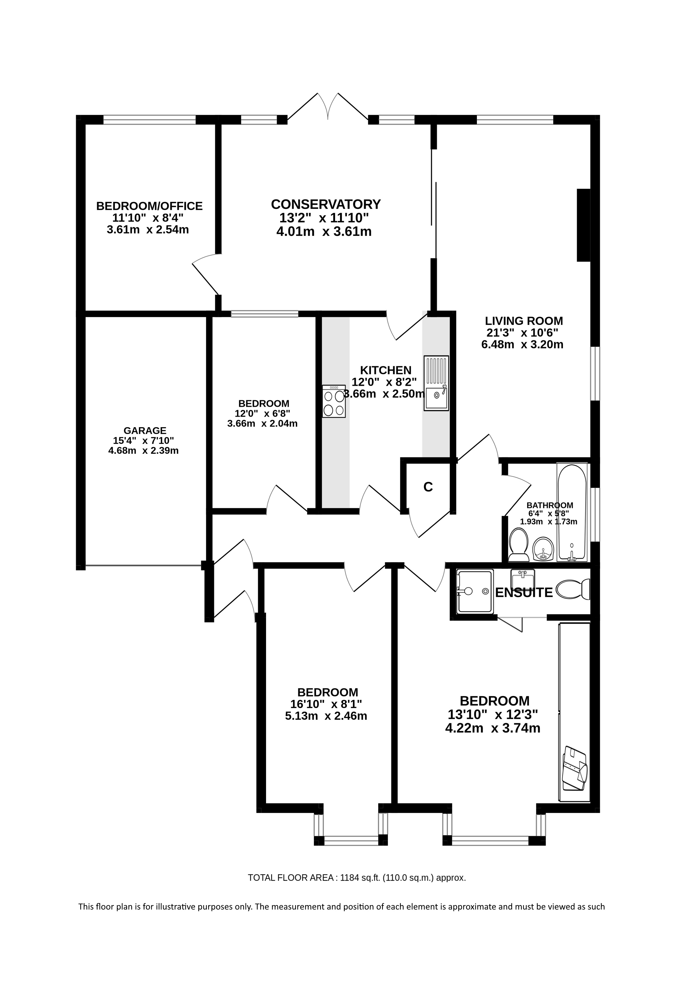
A spacious three/four bedroom detached bungalow with off-street parking and a garage. Positioned on a quiet cul-de-sac, the property is set in a popular and convenient location with plenty of local amenities and easy access to St Albans city centre.

This detached bungalow is set back from the road with a block-paved driveway providing off-street parking for two vehicles. The front door opens into the hallway which gives access to three bedrooms, the two largest of which are positioned to the front of the property and have bay windows. The principal bedroom has fitted storage and the advantage of an en-suite shower room and there is a separate bathroom at the end of the hall. The kitchen is in the heart of the bungalow and is a well planned room with plenty of wall and base units. A door to the rear leads into the bright conservatory which, in turn, links through glazed sliding doors to the spacious reception room, a bright dual aspect space with views of the garden. The property’s flexible layout includes a further room off the conservatory at the rear, currently in use as an office space, but which could serve as a fourth bedroom if required.
The single garage offers useful storage space, and could present exciting potential for extension, subject to the usual consents.
The garden has been landscaped to create a paved seating area close to the property which steps up to a lawn. There are established planted beds to the rear and a useful shed for storage.

Council Tax Band: F £3,071.53 (2023/2024)

Whether you’re looking to
  • buy
  • sell
  • rent
  • let
  • buy
we would love to help.