Millfield Close, London Colney, St. Albans, AL2 1GX

Sale Agreed
Offers in excess of £650,000
Bedrooms
4
Bathrooms
2
Receptions
1
Council Tax:
F
EPC:
C
Freehold

Ashtons are delighted to present this charming four-bedroom detached home, perfectly positioned in a peaceful cul-de-sac.

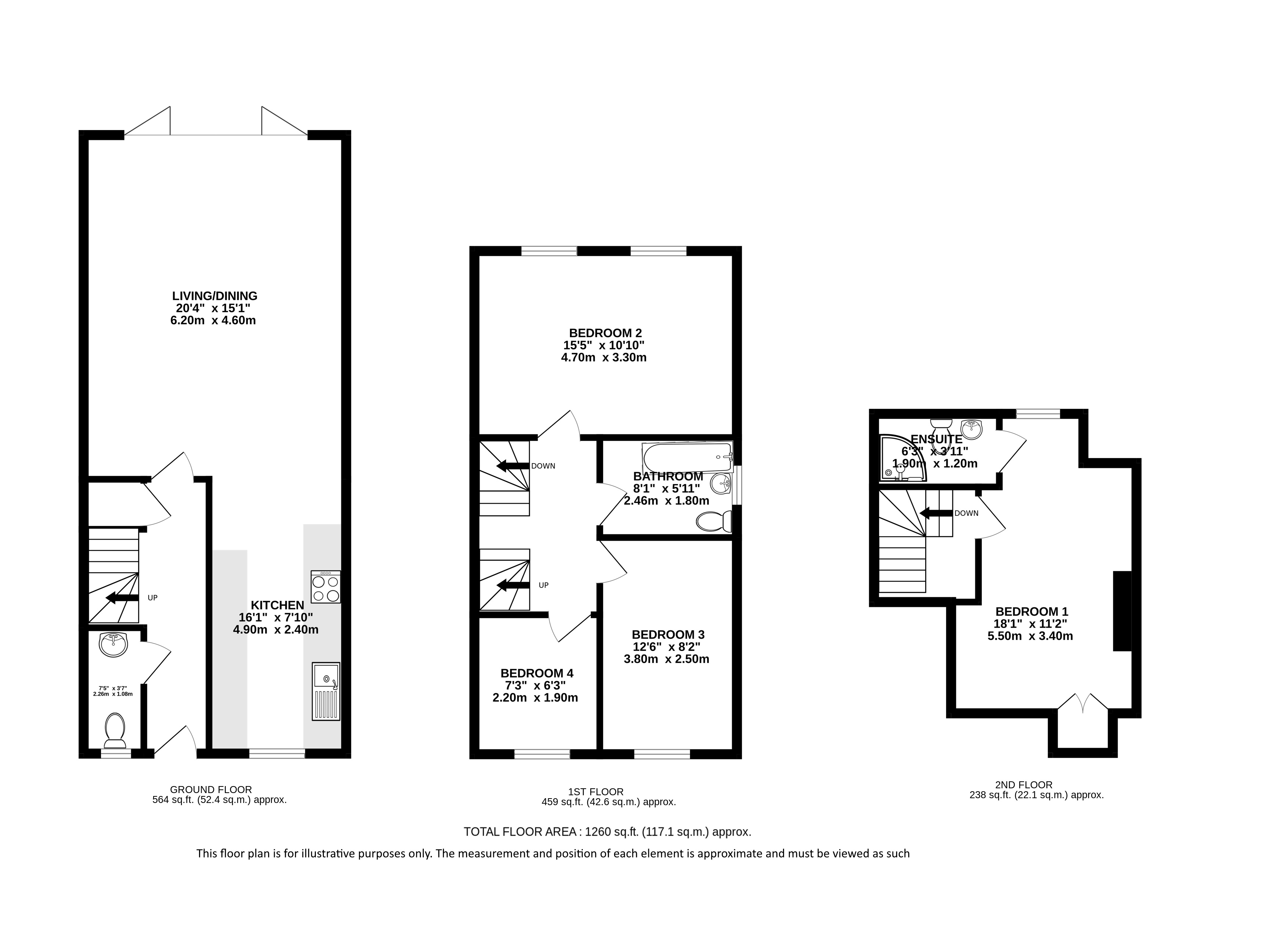
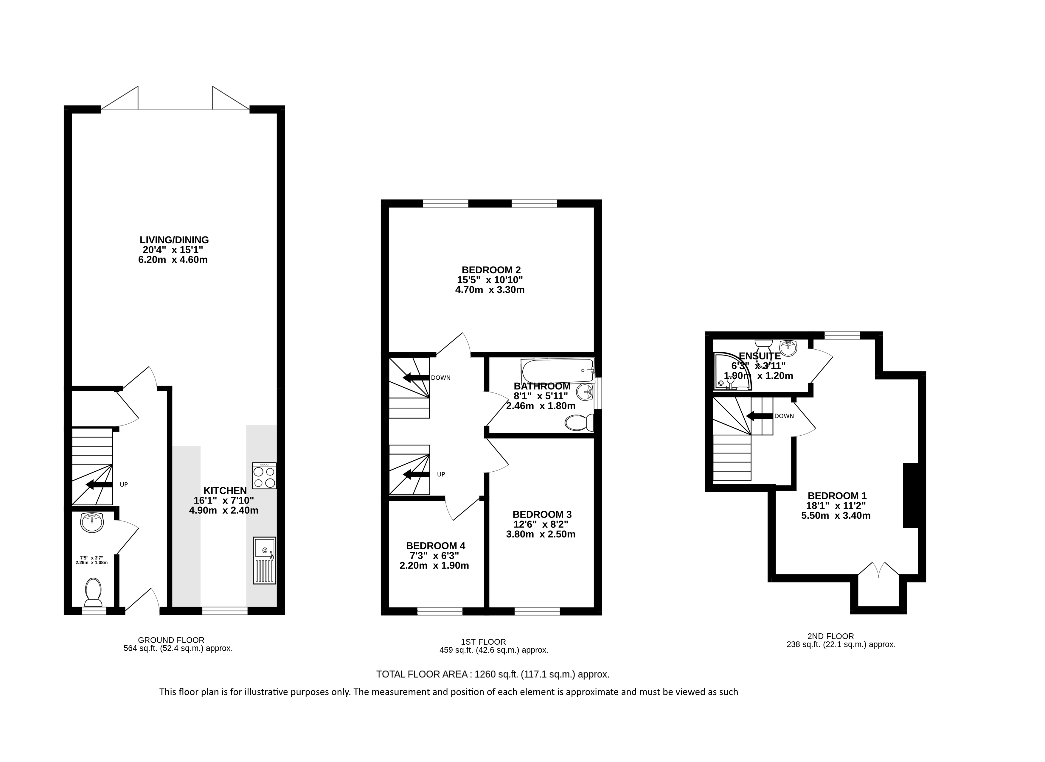
A lovely detached home offering an inviting blend of comfort, style and convenience. From the moment you step inside, the welcoming open-plan layout sets the tone. The ground floor boasts a modern kitchen, dining area and living space which flow seamlessly together, creating an ideal setting for both everyday living and entertaining. Bi-fold doors open directly onto the rear garden, allowing natural light to flood the space and offering effortless indoor–outdoor living. A useful downstairs WC completes the ground floor.

The first floor features three well-proportioned bedrooms, with the largest benefitting from fitted wardrobes. All three are served by a contemporary family bathroom, finished with modern fittings and a clean, stylish design.

On the second floor, you will find the impressive principal bedroom which includes fitted wardrobes and a smart en-suite shower room, providing a tranquil space to relax and unwind.

The lovely south-facing rear garden is mainly laid to lawn and includes a useful storage shed, making it perfect for family life or summer gatherings. To the front, a paved driveway provides ample off-street parking for two cars.

Ideally located, the property is less than a two-minute stroll from the array of shops and amenities on London Colney’s High Street, offering excellent convenience while maintaining a sense of peaceful seclusion. This superb home is ready to welcome its next owners—early viewing is highly recommended.

Council Tax Band F: £3,401.50 (2025/2026)

Buyers Information:
In compliance with the UK's Anti Money Laundering (AML) regulations, we are required to confirm the identity of all prospective buyers at the point of an offer being accepted and use a third party, Identity Verification System to do so. There is a nominal charge of £48 (per person) including VAT for this service. For more information, please refer to the terms and conditions section of our website.

Whether you’re looking to
  • buy
  • sell
  • rent
  • let
  • buy
we would love to help.