Peters Avenue, London Colney, St. Albans, AL2 1NQ

Guide price of £625,000
Bedrooms
3
Bathrooms
2
Receptions
2
Council Tax:
D
EPC:
E
Freehold

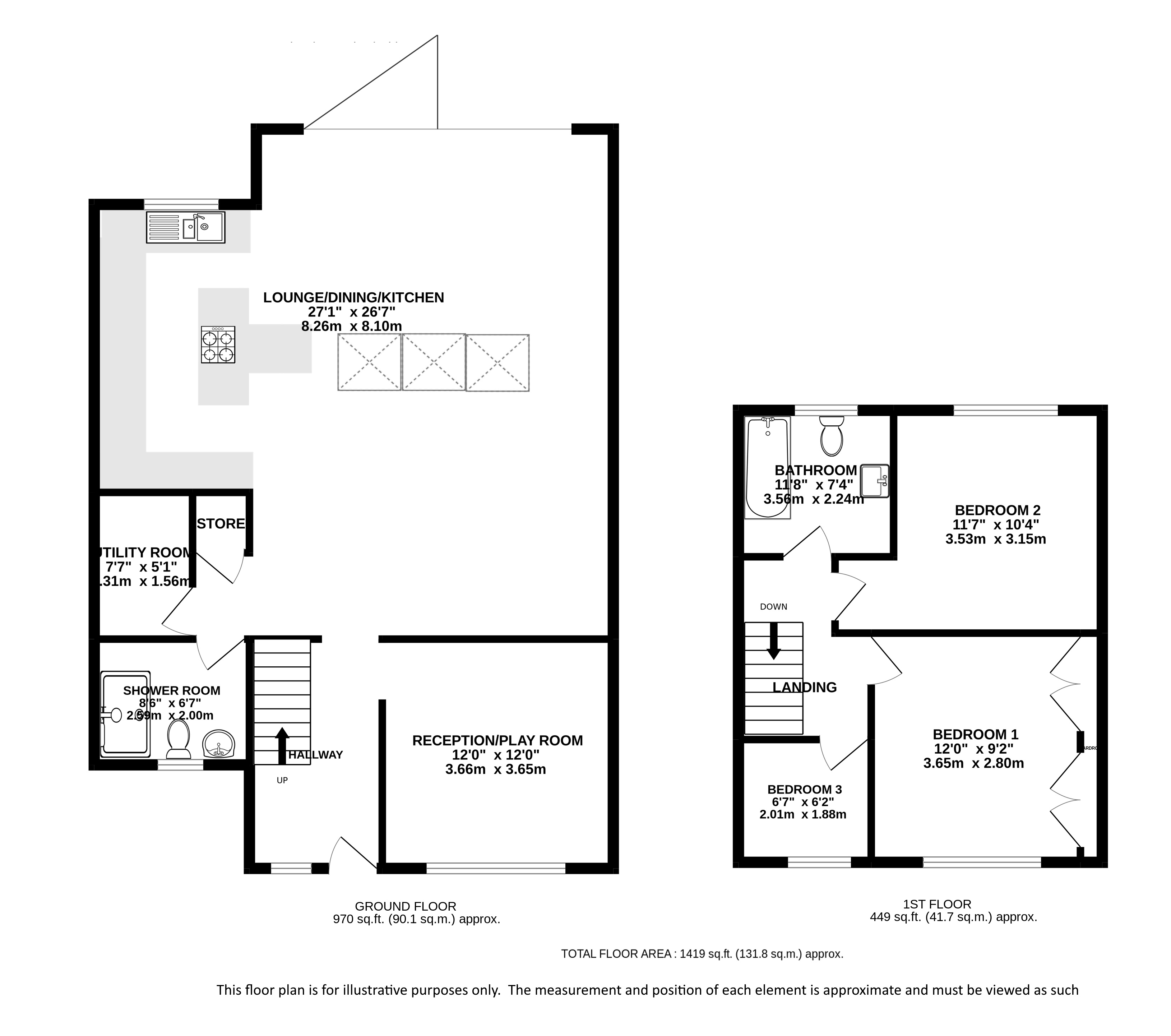
Having been extended and greatly improved by the current owners, this exceptional three bedroom family home offers a most impressive kitchen/living/dining room, separate living room, landscaped rear garden and off-street parking.

Approaching the property, a resin driveway provides off-street parking for two vehicles. The bright and welcoming hallway provides access to the playroom with front aspect windows and leads to the wonderful open-plan kitchen/living/dining room with sliding doors all the way across and a magnificent sky light that floods the room with natural light. The current owners have created a luxurious kitchen with high-end fitted appliances, storage units and a sizeable island/breakfast bar along with a generously proportioned lounge area. A contemporary shower room, separate utility space and storage cupboard complete the ground floor layout.

On the first floor, the principal bedroom is a great size and benefits from large and deep, built-in wardrobes. The second bedroom is a good size double with the third being a generous single. All are serviced by a spacious and luxuriously appointed bathroom with bath, hand wash basin and w/c. The property also benefits from double glazing which has been installed throughout.

The rear garden has been landscaped and includes a seating area adjacent to the house, level lawn, hot tub and large shed which could easily be converted into a gym or office space.

London Colney is a picturesque village well positioned for road networks and is within striking distance of major motorway networks, including the M1, M25 and A1 as well as fast mainline train links from St Albans station to St Pancras International/Kings Cross Station. The area is serviced with a variety of local amenities.

Council Tax Band D: £2,354.88 (2025/2026)

Buyers Information:
In compliance with the UK's Anti Money Laundering (AML) regulations, we are required to confirm the identity of all prospective buyers at the point of an offer being accepted and use a third party, Identity Verification System to do so. There is a nominal charge of £48 (per person) including VAT for this service. For more information, please refer to the terms and conditions section of our website.

Whether you’re looking to
  • buy
  • sell
  • rent
  • let
  • buy
we would love to help.