Tippendell Lane, St. Albans, Hertfordshire, AL2 3HJ

Guide price of £740,000
Bedrooms
3
Bathrooms
2
Receptions
2
Council Tax:
E
EPC:
E
Freehold

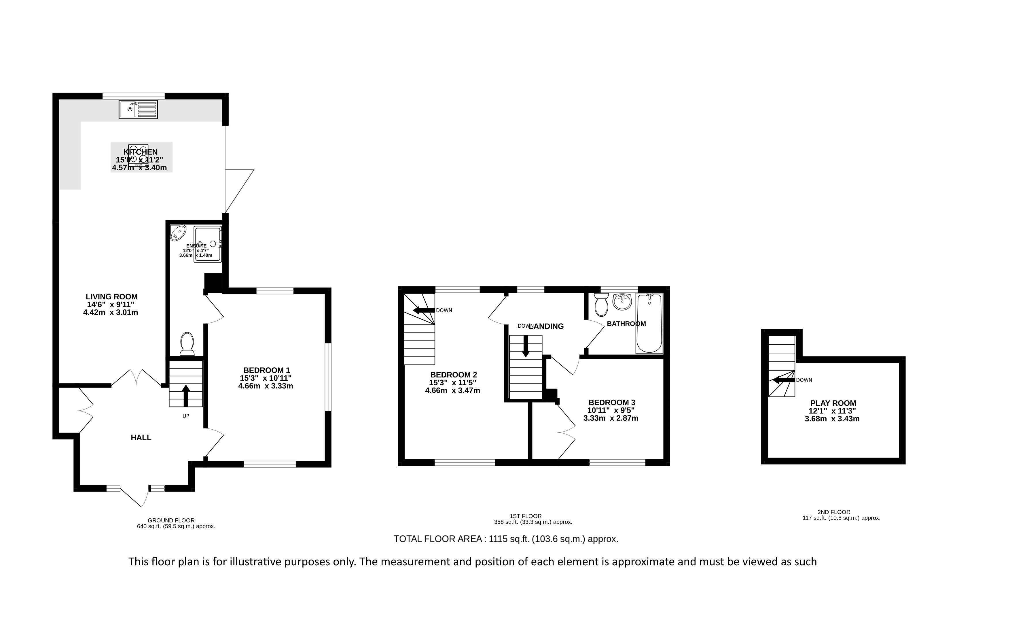
This stunning three-bedroom semi-detached home benefits from well-balanced accommodation throughout. Featuring off-road parking to the front and low maintenance rear garden.

Located on the popular Tippendell Lane in Chiswell Green, this beautifully presented family home is offered in stunning condition throughout and provides flexible, well-balanced accommodation arranged over three floors.
The ground floor welcomes you with a generous entrance hall leading through to a bright and spacious living room, ideal for both relaxing and entertaining. To the rear, the modern fitted kitchen offers ample storage and worktop space, with room for dining and direct access to the rear garden, creating a seamless flow for everyday living. A further large double bedroom with modern en-suite completes the ground floor.

On the first floor, the property continues to impress with two well-proportioned bedrooms, both thoughtfully designed to maximise space and natural light. A contemporary family bathroom serves this level, finished to a high standard. The second floor provides a further versatile room accessed via the second bedroom, currently arranged as a playroom, but equally suitable as a home office, hobby space or additional living area, offering excellent flexibility for growing families or those working from home.

Externally, the property benefits from off-road parking to the front, a valuable feature in this sought-after location. To the rear, there is a low-maintenance garden easy to maintain.

Positioned close to local amenities, well-regarded schools and excellent transport links, this superb home combines stylish interiors with practical living in a desirable Chiswell Green setting.

The property is set in the heart of the desirable village of Chiswell Green, on the southern side of St Albans and offers easy access to award winning schools, transport links, Greenwood Park and local amenities.

Council Tax Band E: £2,865.41 (2025/2026)

Buyers Information:
In compliance with the UK's Anti Money Laundering (AML) regulations, we are required to confirm the identity of all prospective buyers at the point of an offer being accepted and use a third party, Identity Verification System to do so. There is a nominal charge of £48 (per person) including VAT for this service. For more information, please refer to the terms and conditions section of our website.

Whether you’re looking to
  • buy
  • sell
  • rent
  • let
  • buy
we would love to help.