Boundary Road, St. Albans, Hertfordshire, AL1 4DW

Guide price of £515,000
Bedrooms
2
Bathrooms
1
Receptions
1
Council Tax:
D
EPC:
D
Freehold

A beautifully presented two bedroom property situated in a sought after area of St Albans offering easy access to excellent local schooling and within a 15 minute walk of the city centre shops, restaurants and City train station. Offered to the market with the benefit of no onward chain.

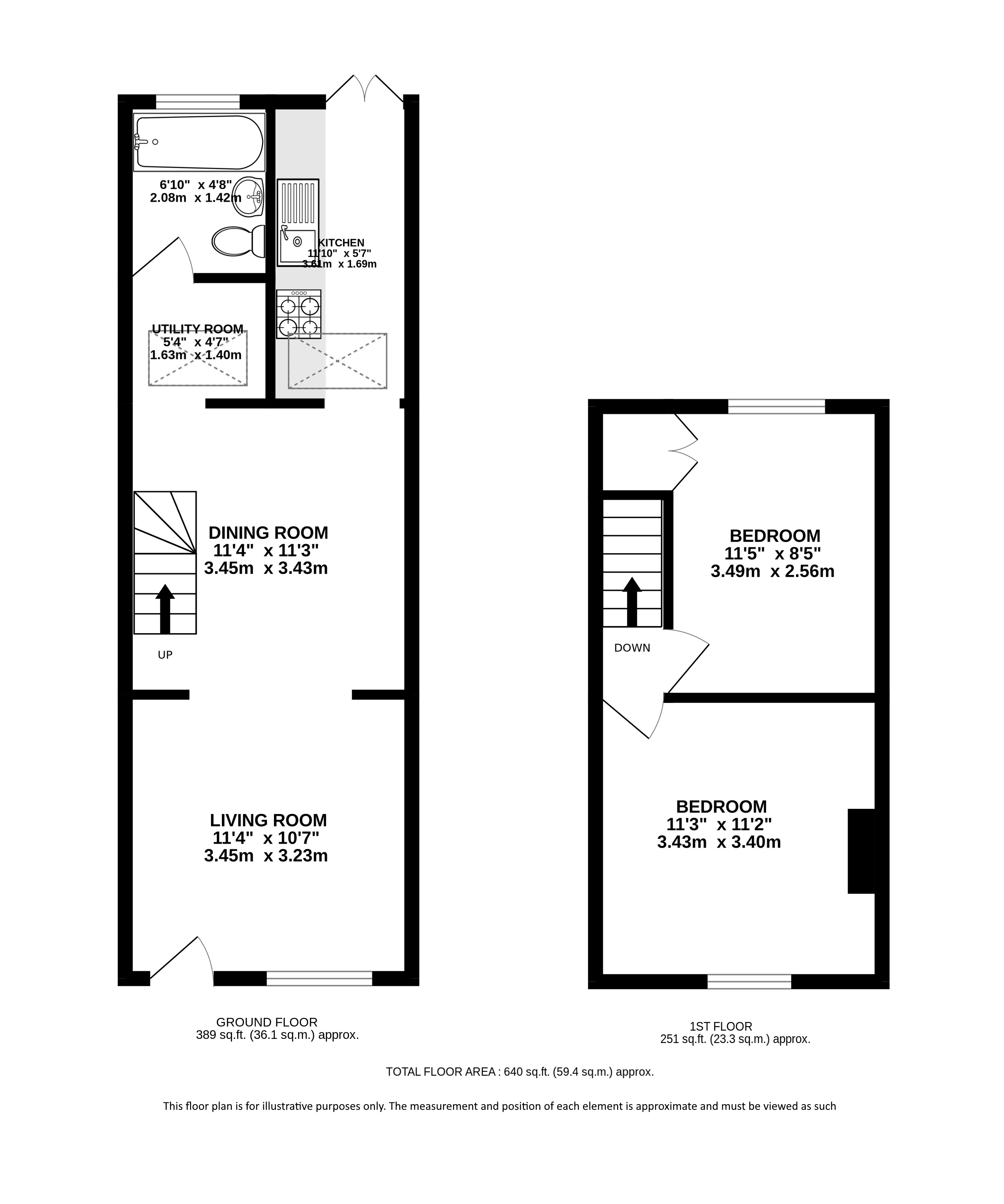
This charming cottage forms part of an attractive terrace of period properties set in the heart of Bernards Heath. The front door is set back from the pavement, leading into a lovely open-plan reception room with ample space for both living and dining furniture. Rooflights towards the rear of the property bring plenty natural light into the heart of the house and the kitchen is to the rear, well planned with a good range of wall and base units and integrated appliances including oven, hob and fridge/freezer. Glazed double doors open into the rear garden. Just past the staircase there is a useful utility area, and the bathroom is adjacent, a bright room, part tiled with a contemporary white suite and a window to the rear.

Upstairs, the property has two double bedrooms, the largest of which is at the front of the house, and the second with views over the garden.
Externally, the garden is well maintained, and has a lawn, with a path to a decked seating area to the rear, and there is also a useful timber shed.

Boundary Road is within easy walking distance of both St Albans city centre and the mainline station, where there are fast train links into London. The open space of Bernards Heath is across the road, and there are well regarded schools nearby, as well as a local shop with post office services and a cafe.

Council Tax Band D: £2,257.13 (2025/2026)

Buyers Information:
In compliance with the UK's Anti Money Laundering (AML) regulations, we are required to confirm the identity of all prospective buyers at the point of an offer being accepted and use a third party, Identity Verification System to do so. There is a nominal charge of £48 (per person) including VAT for this service. For more information, please refer to the terms and conditions section of our website.

Whether you’re looking to
  • buy
  • sell
  • rent
  • let
  • buy
we would love to help.