Old London Road, St Albans, AL1 1PR

Guide price of £520,000
Bedrooms
2
Bathrooms
2
Receptions
1
Council Tax:
D
EPC:
C
Leasehold

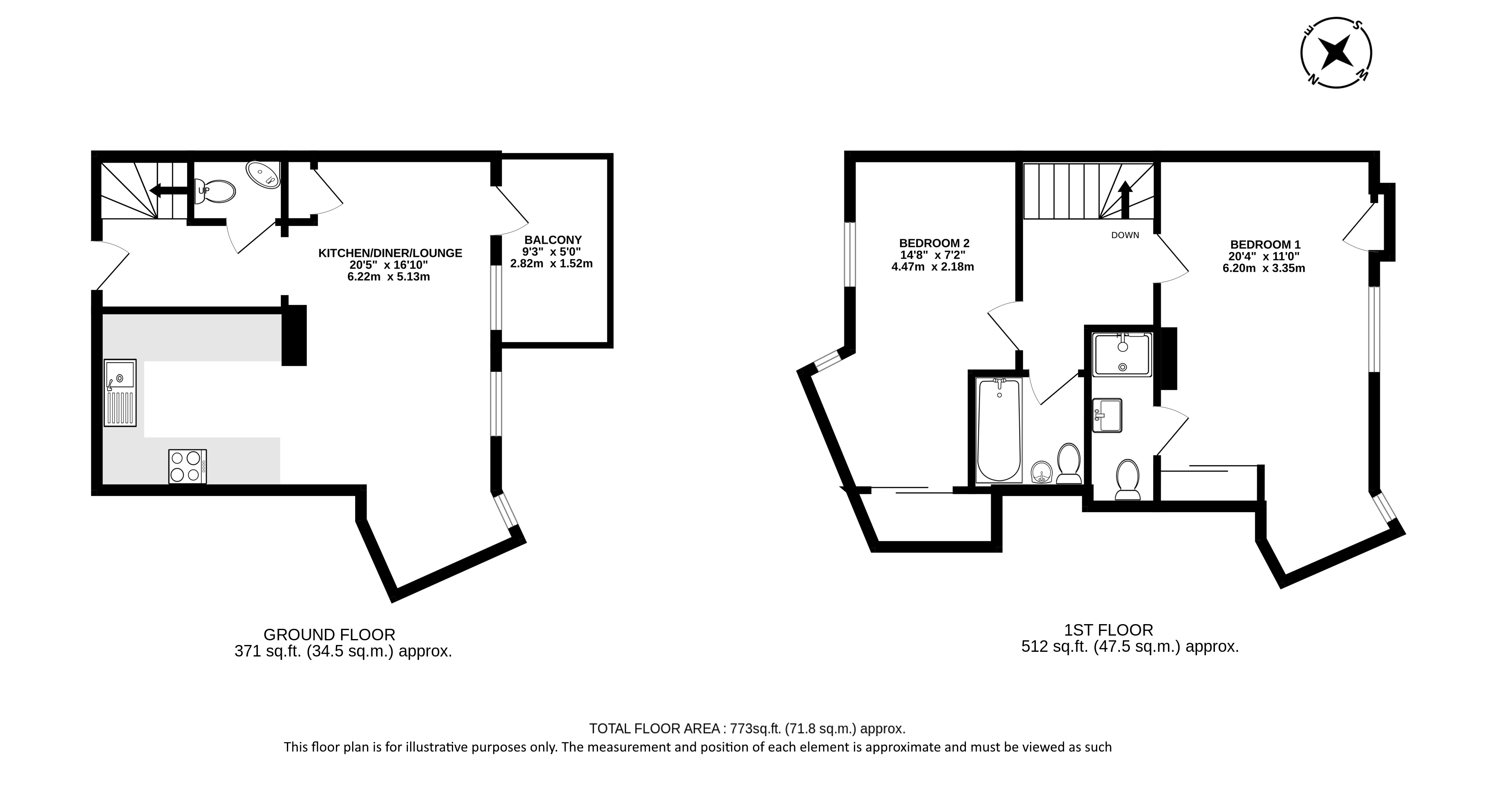
A stylish split-level two bedroom apartment within walking distance of all town centre amenities and stations. Being sold with no onward chain.

Located within walking distance of St Albans’ vibrant city centre, this stunning split-level luxury apartment offers contemporary living across the top two floors of this sought-after development. Accessed via lift or stairs, the property combines style, comfort, and convenience in equal measure.

The lower level boasts an impressive open-plan living area, flooded with natural light and featuring a modern, well-appointed kitchen with ample storage and high-quality integrated appliances. From the living space, doors open onto a private balcony, providing some lovely views. A modern guest WC completes this floor.

Upstairs, two generous double bedrooms are complemented by two elegant bathrooms. The principal bedroom enjoys built-in wardrobes and a contemporary en-suite shower room, while the second bedroom is served by a stylish family bathroom.

Additional benefits include a useful external cupboard ideal for bicycles and additional storage, secure gated access, allocated parking for one vehicle, and the advantage of no onward chain.

Priory Court is in a wonderfully convenient location, positioned a short distance from the mainline station where there are fast rail links into central London. The wide range of shops, bars and restaurants in St Albans city centre are within easy reach and The Odyssey Cinema is a short walk away.

Council Tax Band D: £2,257.13 (2025/2026)
Service Charge: £1,574.00 per annum
Ground Rent: £200.00 per annum
Leasehold: 145 years remaining

Buyers Information:
In compliance with the UK's Anti Money Laundering (AML) regulations, we are required to confirm the identity of all prospective buyers at the point of an offer being accepted and use a third party, Identity Verification System to do so. There is a nominal charge of £48 (per person) including VAT for this service. For more information, please refer to the terms and conditions section of our website.

Whether you’re looking to
  • buy
  • sell
  • rent
  • let
  • buy
we would love to help.