Upper Culver Road, St Albans, AL1 4EE

Guide price of £535,000
Bedrooms
2
Bathrooms
1
Receptions
1
Council Tax:
D £2,257.13 (2025/2026)
EPC:
D
Freehold

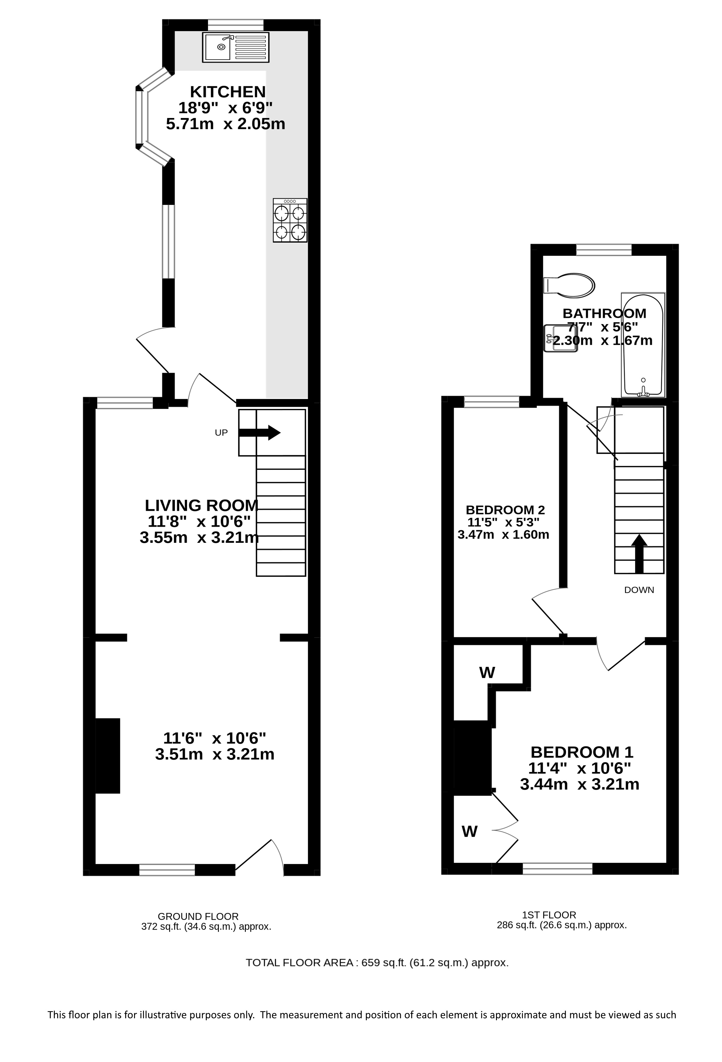
A beautifully presented two bedroom Victorian terraced house with a rear garden measuring approximately 80ft set in a highly desirable location, just a stone's throw from Bernards Heath Junior School and within easy walking distance of St Albans mainline station and City centre.

This Victorian property has enjoyed tasteful refurbishment and now combines period features with modern d'cor throughout.

The ground floor offers ample reception space. An open plan lounge/dining room provides bright and spacious living and the recently renovated kitchen, equipped with modern appliances, has the identical sunny aspect. Additionally, the owners have added bespoke storage units underneath the stairs.

To the first floor a large principal bedroom and one further good size bedroom can be found. These are serviced by the family bathroom, presented in the same modern d'cor as the rest of the property. The property also benefits from a spacious boarded loft with shelving.

Externally, there is on-street parking and a long manicured garden that is mainly laid to lawn with a patio area and shed to the rear.

Upper Culver Road is conveniently positioned within walking distance of the many amenities of St Albans city centre and the mainline station. Highly regarded schools are close by and the open space of Bernards Heath is on the doorstep.

Buyers Information:
In compliance with the UK's Anti Money Laundering (AML) regulations, we are required to confirm the identity of all prospective buyers at the point of an offer being accepted and use a third party, Identity Verification System to do so. There is a nominal charge of £48 (per person) including VAT for this service. For more information, please refer to the terms and conditions section of our website.

Whether you’re looking to
  • buy
  • sell
  • rent
  • let
  • buy
we would love to help.