Holyrood Crescent, St Albans, AL1 2LN

Guide price of £525,000
Bedrooms
4
Bathrooms
1
Receptions
2
Council Tax:
D
EPC:
D
Freehold

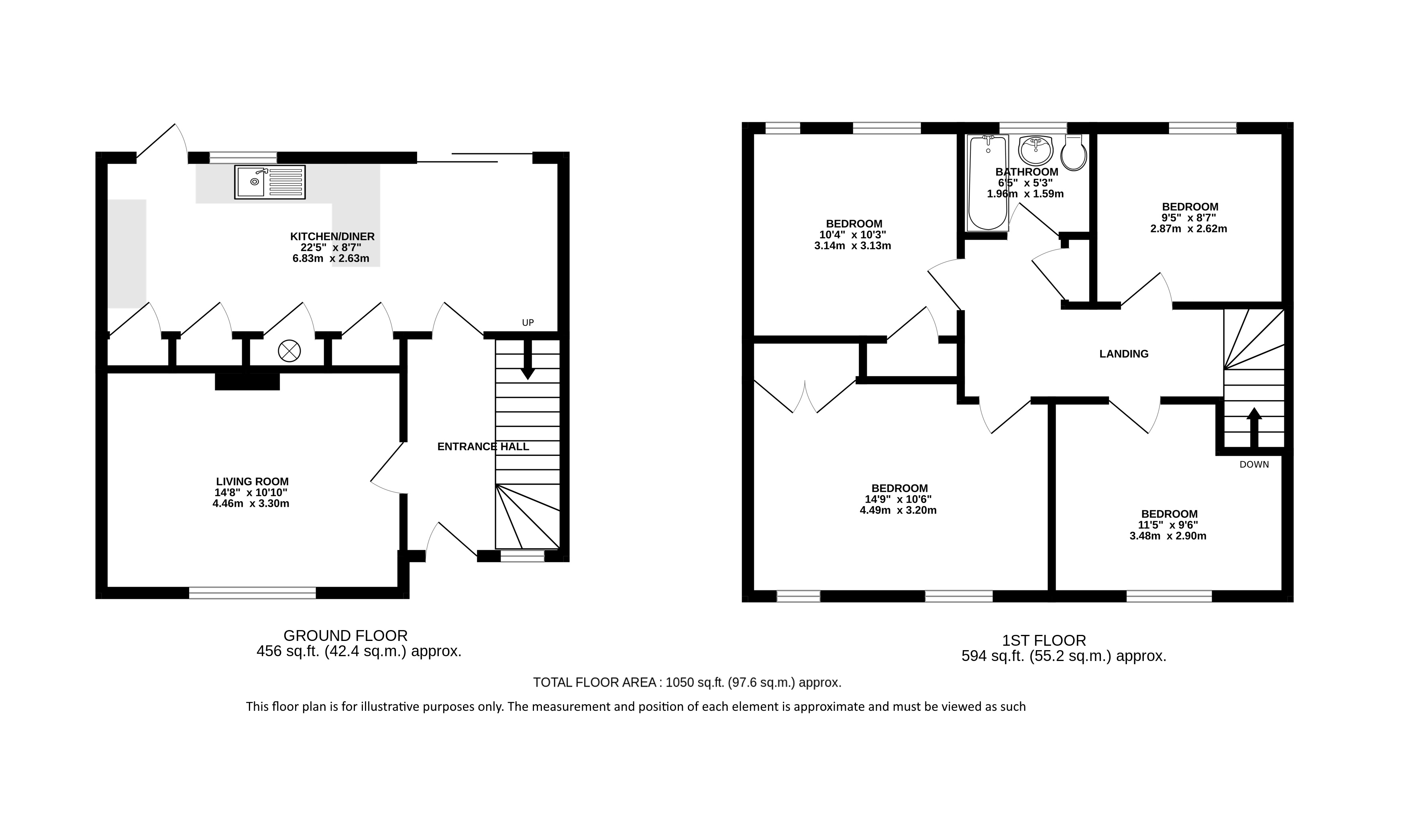
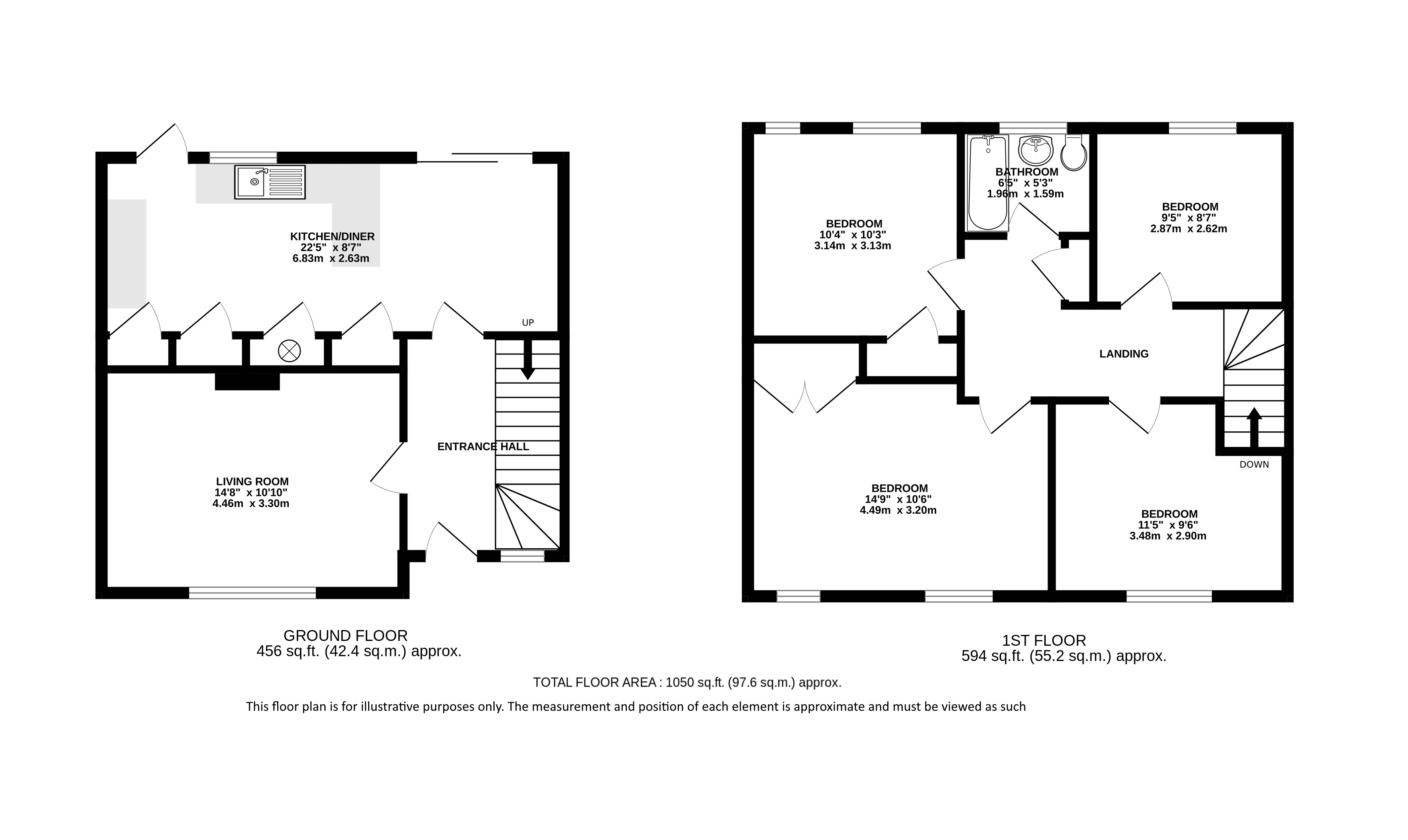
A sizeable four-bedroom terraced house situated in a popular road within the Cottonmill area. Being sold with no onward chain.

A well-proportioned four-bedroom terraced family home offering spacious accommodation across two floors, ideally suited for growing families or those seeking generous living space.
The property welcomes you with a large entrance hallway, leading to a bright and airy lounge with a substantial front-facing window that fills the space with natural light. To the rear, you’ll find a spacious kitchen/diner currently undergoing refurbishment. A brand-new kitchen will be installed, please contact the agent for design details. From here, French doors provide direct access to the expansive rear garden.
Upstairs, four well-balanced bedrooms are complemented by a family bathroom featuring a white three-piece suite.
Externally, the home enjoys a pleasant outlook over green space to the front and benefits from off-road parking for two vehicles. The rear garden is exceptionally generous, mainly laid to lawn with a paved patio area, offering fantastic potential for extension or reconfiguration (subject to local planning permission).
Being sold with no onward chain.

Situated in a popular location circa 1.25 miles to the South of the City centre, and circa 1.7 mils from the mainline station, Holyrood Crescent is close to a range of local amenities and also offers quick and easy access to the M1, A1 and M25 motorways.

Council Tax Band D: £2,257.13 (2025/2026)
Service Charge: £0.00 per annum

Buyers Information:
In compliance with the UK's Anti Money Laundering (AML) regulations, we are required to confirm the identity of all prospective buyers at the point of an offer being accepted and use a third party, Identity Verification System to do so. There is a nominal charge of £48 (per person) including VAT for this service. For more information, please refer to the terms and conditions section of our website.

Whether you’re looking to
  • buy
  • sell
  • rent
  • let
  • buy
we would love to help.