Long Meadow, Markyate, AL3 8JW

Sale Agreed
Guide price of £430,000
Bedrooms
3
Bathrooms
2
Receptions
2
Council Tax:
D
EPC:
D
Freehold

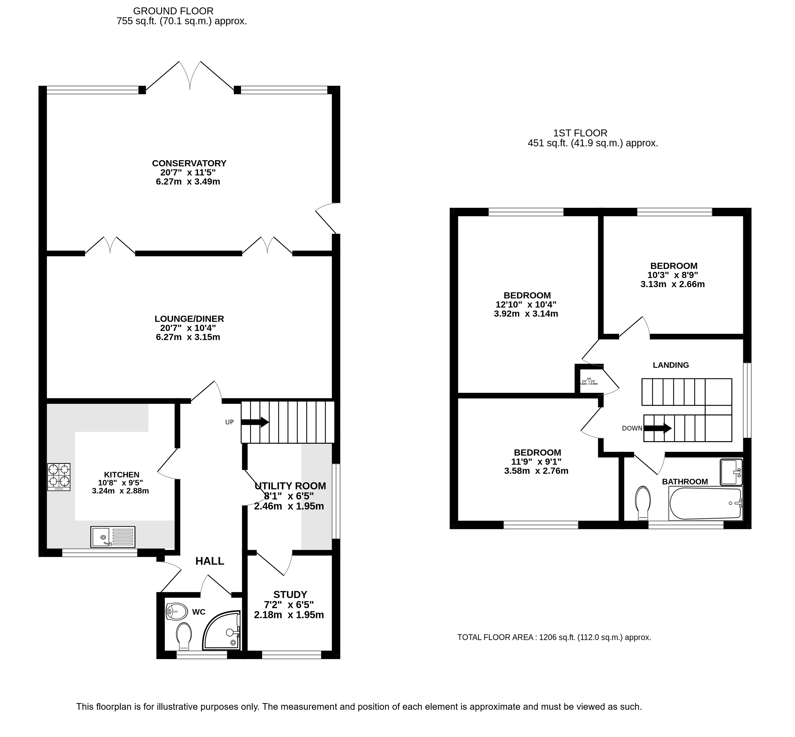
A spacious three bedroom end of terrace home situated in this quiet cul de sac but within walking distance to amenities.

This excellent village home is well located and offers generous and flexible accommodation with the potential to extend at the rear (subject to the necessary consents).

The property has been previously extended and offers a useful study/guest room, utility room and downstairs shower to the front and a good sized fitted kitchen with two double ovens and hobs. Across the back of the property the living room offers plenty of space to relax and dine and is further complemented by a full width brick built conservatory which opens out to the rear garden and additional door to the side access.

Upstairs there are three good size bedrooms all capable of fitting double beds, served by a modern tiled bathroom.

Outside to the front a block paved driveway provides off-street parking. The rear garden is fully enclosed and mainly laid to lawn with a patio seating area adjacent to the rear of the house. At the end of the garden is a hardstanding area with a timber shed offering additional storage.

Long Meadow is situated a short walk from the High Street amenities, which provide for everyday needs, including local pubs and a range of shops and restaurants. The highly regarded Markyate Infant and Junior School is also just a short walk away. The larger town of Harpenden and the historic City of St Albans are a short drive away and offer fast and efficient rail links into London and excellent amenities. M1 Junction 9 and London Luton Airport are within easy reach.

Council Tax Band D: £2,340.09 (2025/26)

Buyers Information:
In compliance with the UK's Anti Money Laundering (AML) regulations, we are required to confirm the identity of all prospective buyers at the point of an offer being accepted and use a third party, Identity Verification System to do so. There is a nominal charge of £48 (per person) including VAT for this service. For more information, please refer to the terms and conditions section of our website.

Whether you’re looking to
  • buy
  • sell
  • rent
  • let
  • buy
we would love to help.