Hatfield Road, St. Albans, AL4 0DH

Guide price of £925,000
Bedrooms
3
Bathrooms
1
Receptions
1
Council Tax:
E
EPC:
D
Freehold

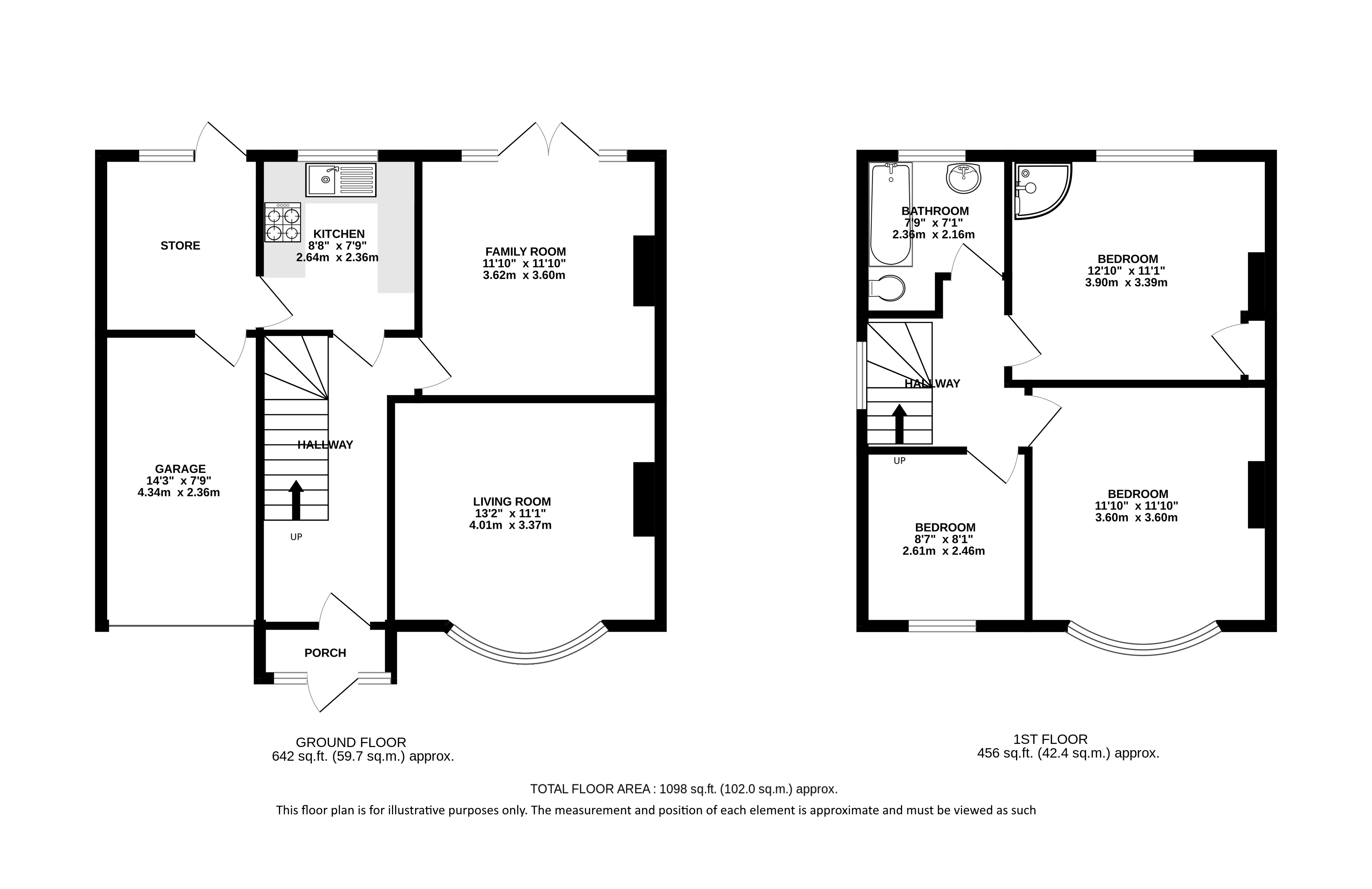
A Handsome,1930's, three bedroom, semi-detached home requiring modernisation throughout and offering great potential for extension (STPP).

Offered to the market chain free and positioned within walking distance of both Oakwood Primary and Beaumont Secondary Schools, this wonderful home is set back from the road with a driveway providing off-street parking for multiple cars and a garage. The current accommodation lends itself to be improved and extended and currently includes a welcoming entrance porch and hallway, two large reception rooms with feature fireplaces, kitchen and a single garage. To the first floor you have three good size bedrooms, one of which has a shower, which are all serviced by a family bathroom.

The rear garden is a particular selling feature being larger-than-average which is mainly laid to lawn with mature trees and shrubs, shed and greenhouse and courtesy door into the garage.

Hatfield Road is ideally positioned for buyers wanting access to local amenities, shops and transport links. With open countryside and the bustling centre of St Albans moments away, the address suits families with children of all ages. The schools are undoubtedly a huge driving force to the popularity of this road with Beaumont Secondary and Oakwood Primary Schools within close walking distance.

Council Tax Band E: £2,758.72 (2025/2026)
Service Charge: £0.00 per annum

Buyers Information:
In compliance with the UK's Anti Money Laundering (AML) regulations, we are required to confirm the identity of all prospective buyers at the point of an offer being accepted and use a third party, Identity Verification System to do so. There is a nominal charge of £48 (per person) including VAT for this service. For more information, please refer to the terms and conditions section of our website.

Whether you’re looking to
  • buy
  • sell
  • rent
  • let
  • buy
we would love to help.