Charmouth Court, St Albans, AL1 4SH

Sale Agreed
Guide price of £475,000
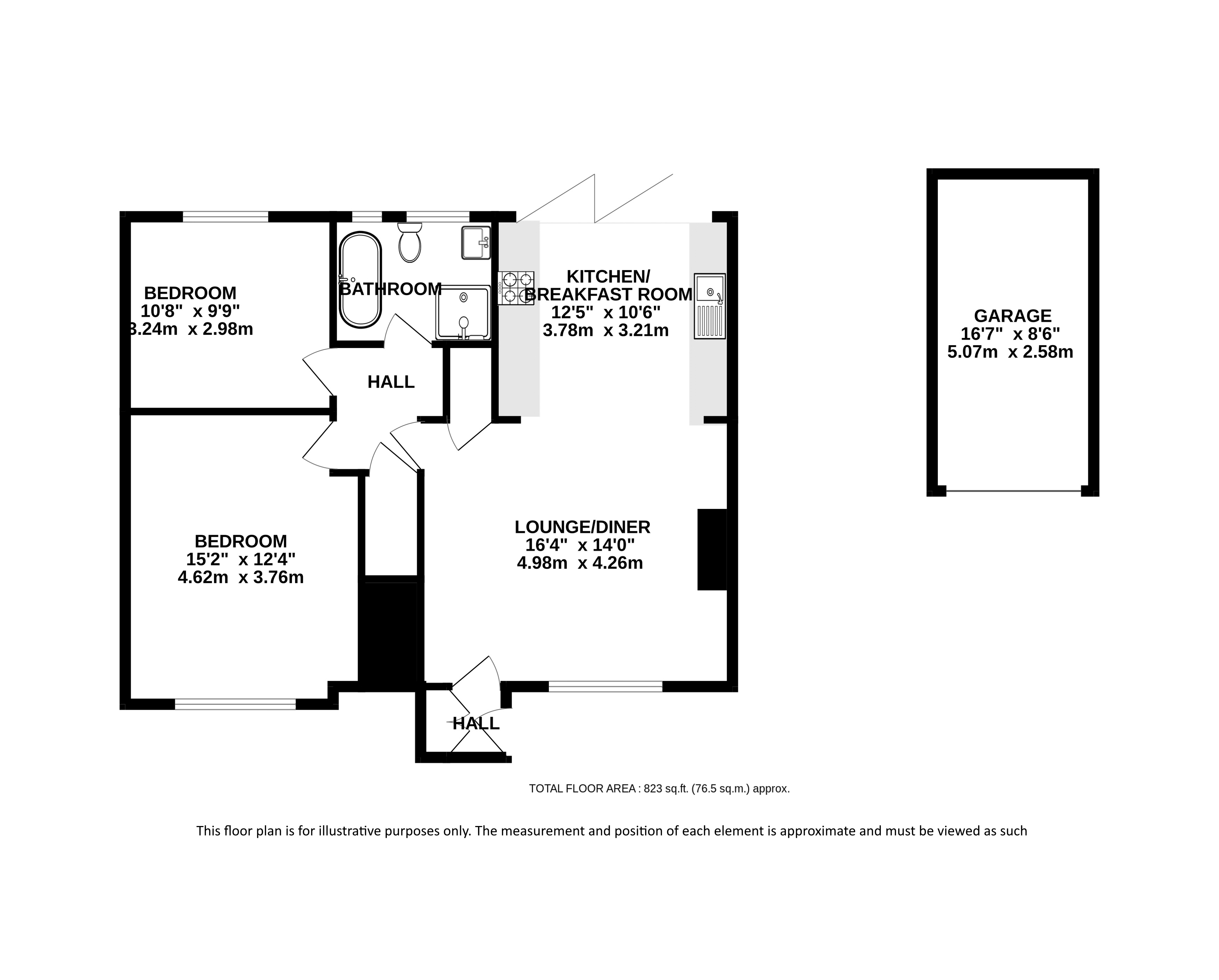
Bedrooms
2
Bathrooms
1
Receptions
1
Council Tax:
D
EPC:
C
Share of Freehold

A beautifully modernised home with private patio, generous living spaces and an enviable AL1 address. A rare opportunity in one of St Albans most sought-after developments.

Positioned within the highly regarded Charmouth Court, this bright and elegantly updated two-bedroom ground-floor maisonette offers a refined blend of space, style and convenience.

With direct access to a private patio and tranquil communal gardens, it delivers the feel of a house with the ease of apartment living. A welcoming central hallway leads to all principal rooms, creating a wonderfully balanced layout. The impressive dual-aspect lounge/diner is flooded with natural light, offering an inviting setting for both relaxed evenings and entertaining. The generous kitchen/diner provides excellent storage and dining space, making it a practical and sociable hub of the home. Both bedrooms are well-proportioned, including a spacious principal bedroom and a second double ideal for guests, family or a dedicated home office. A sleek, modern family bathroom completes the internal accommodation.

One of the standout features is the seamless indoor-outdoor flow: bi-folding doors open directly onto a private patio, extending the living space and leading onto beautifully maintained communal gardens. Further benefits include a share of the freehold; a garage en-bloc, offering valuable parking or storage.

Service Charge: £800 - £900 approx.

Charmouth Court is a well-kept and highly desirable development, ideally placed for the mainline station, the vibrant city centre and an abundance of green spaces including Clarence Park, Bernards Heath and The Wick. The popular Quadrant, with its selection of shops, cafes and restaurants, is just a short stroll away. This turnkey property is an exceptional choice for first-time buyers, downsizers or investors seeking a stylish, spacious and effortlessly liveable home in the coveted AL1 postcode

Council Tax Band D: £2,368.36 (2026/2027)
Service Charge: £850.00 per annum
Share of Freehold: 934 years remaining

Buyers Information:
In compliance with the UK's Anti Money Laundering (AML) regulations, we are required to confirm the identity of all prospective buyers at the point of an offer being accepted and use a third party, Identity Verification System to do so. There is a nominal charge of £48 (per person) including VAT for this service. For more information, please refer to the terms and conditions section of our website.

Whether you’re looking to we would love to help.