Eagle Way, St Albans, AL4 0LH

Sale Agreed
Offers in excess of £825,000
Bedrooms
3
Bathrooms
2
Receptions
1
Council Tax:
E
EPC:
B
Freehold

A superb opportunity to acquire a three bedroom detached home on a corner plot, close to one of St Albans’ outstanding secondary schools.

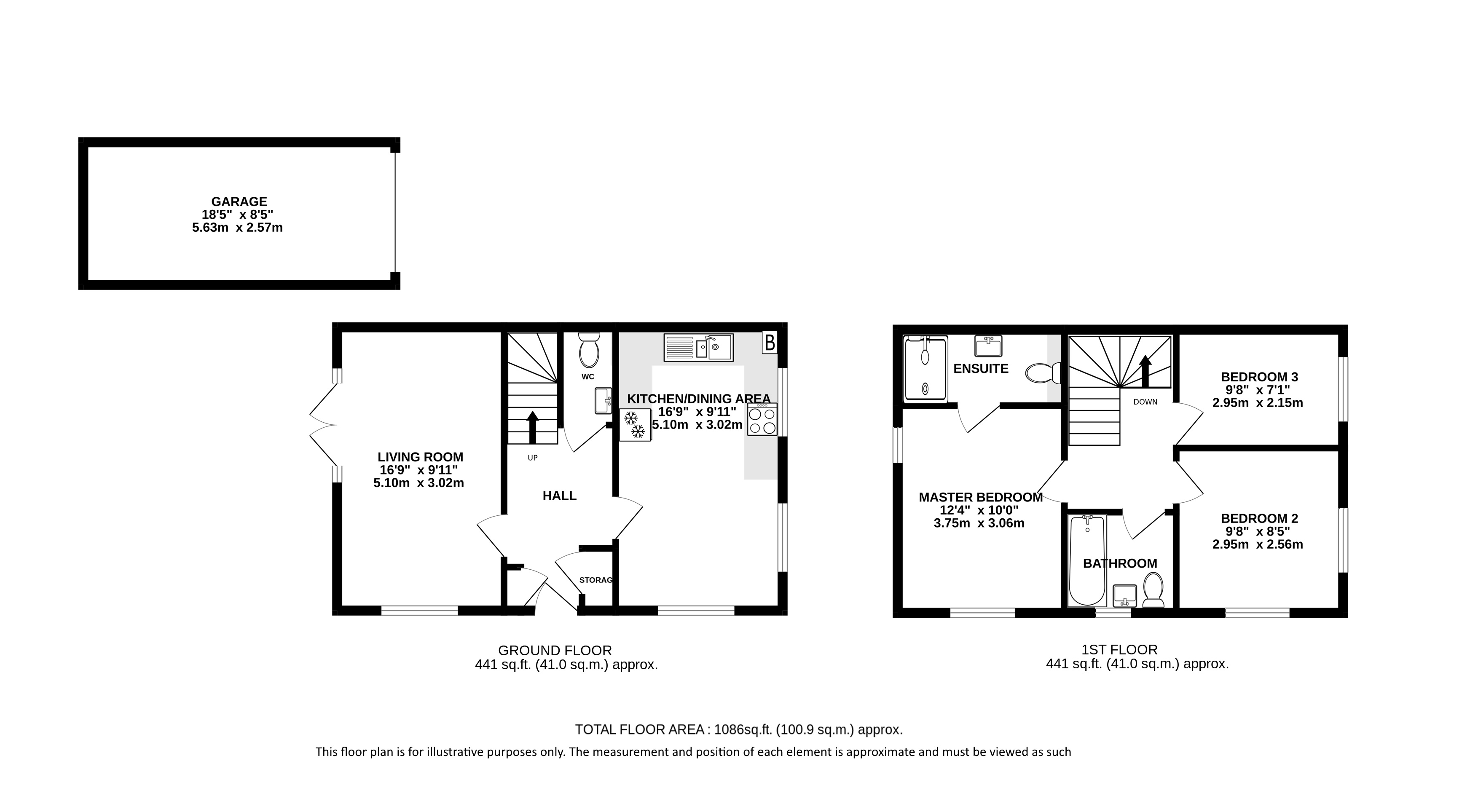
Positioned on a generous corner plot in the popular Oaklands Grange development, this beautifully presented three-bedroom, double-fronted detached home offers stylish, contemporary living close to Beaumont School. Constructed only four years ago, the property remains in immaculate condition throughout and combines thoughtful design with high-quality finishes including downlighters throughout, full-height tiling and stunning Amtico herringbone flooring to the ground floor.

The welcoming entrance hall sits at the centre of the home, creating a balanced and practical layout. To one side there is a bright and elegant living room featuring glazed double doors that open directly onto the garden, allowing natural light to flood the space. The dual-aspect kitchen is equally impressive with Silestone worktops, AEG induction hub, double ovens and integrated washer/dryer. The kitchen also offers ample space for a dining table and creating a sociable hub for everyday life and entertaining. A convenient ground floor WC completes the accommodation on this level.

Upstairs, the first floor has three well-proportioned bedrooms. The two largest bedrooms benefit from a dual-aspect design, enhancing the sense of space and light, and are further complemented by tasteful panelling details adding character and style. The principal bedroom enjoys the additional luxury of a contemporary en suite shower room, the third bedroom is currently arranged as a dressing room, demonstrating the flexibility of the layout and a smart family bathroom is accessed from the landing.

Externally, the property continues to impress. The rear garden is landscaped with paved seating areas and a neat lawn, providing an ideal space for relaxation and entertaining throughout the year. To the side, a driveway offers parking for up to three vehicles and leads to a detached single garage with electric door, ensuring excellent storage and practicality.

Eagle Way forms part of the revered Oaklands Grange development reached from Sandpit Lane. The location offers easy access to the mainline railway station and city centre with it's range of shops including Marks and Spencer and Tesco. The property is also close to popular Beaumont School and the Quadrant shopping facilities are only a ten minute walk away.

Council Tax Payable: £2,894.66 (2026/2027)
Service Charge: £225.00 per annum
Buyers Information:
In compliance with the UK's Anti Money Laundering (AML) regulations, we are required to confirm the identity of all prospective buyers at the point of an offer being accepted and use a third party, Identity Verification System to do so. There is a nominal charge of £48 (per person) including VAT for this service. For more information, please refer to the terms and conditions section of our website.

Whether you’re looking to
  • buy
  • sell
  • rent
  • let
  • buy
we would love to help.