Coleswood Road, Harpenden, Hertfordshire, AL5 1EF

Guide price of £725,000
Bedrooms
3
Bathrooms
2
Receptions
1
Council Tax:
E
EPC:
C
Freehold

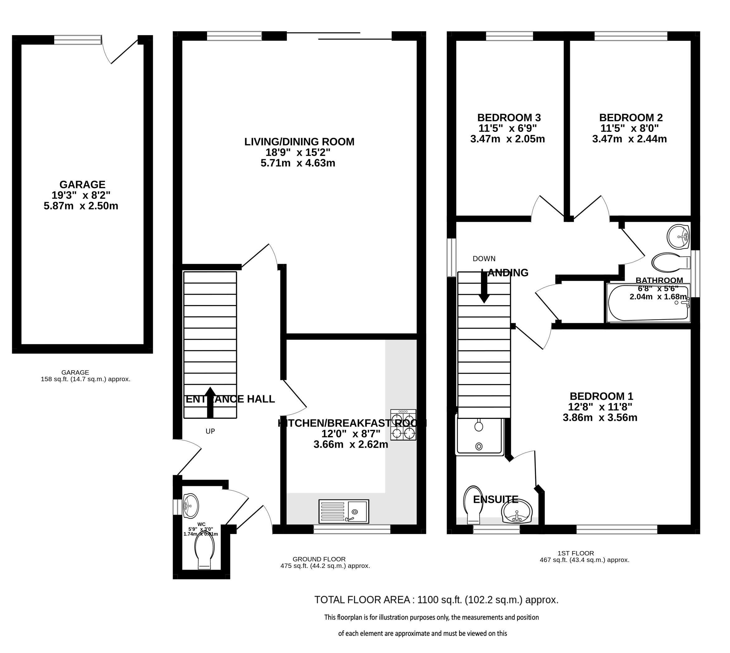
A beautifully refurbished three bedroom detached home with garage. Located in this popular turning on the south of the town. Offered with no upper chain.

A stylish and beautifully refurbished detached home located in this sought after setting. The generous entrance hall welcomes you into the property.

To the front of the house is a beautifully appointed refitted kitchen featuring a range of stylish solid wood painted units and attractive granite tops. The kitchen features Zanussi fitted appliances including double oven, hob, dish washer and washing machine. A large open plan living fining room runs across the rear of the house with sliding patio doors accessing the rear garden. Quick step laminate flooring runs throughout the downstairs. A high quality refitted cloakroom is also found on this level.

Upstairs the impressive principal bedroom is served by and tastefully refitted ensuite shower room. Two further bedrooms enjoy the use of the attractively refitted bathroom.

Outside there is off street parking leading to an attached garage. The rear garden has seating area adjacent to the rear of the property with the remainder laid to lawn.

Coleswood Road is a charming road offering fine range of fine Victorian and Edwardian properties. The property is well positioned being just a stroll from Southdown's local amenities and close to The Grove School JMI. Harpenden Town Centre and station are approximately one mile away providing easy access into central London in under thirty

Council Tax Payable: £3,004.44 (2026/2027)
In compliance with the UK's Anti Money Laundering (AML) regulations, we are required to confirm the identity of all prospective buyers at the point of an offer being accepted and use a third party, Identity Verification System to do so. There is a nominal charge of £48 (per person) including VAT for this service. For more information, please refer to the terms and conditions section of our website.minutes.

Whether you’re looking to
  • buy
  • sell
  • rent
  • let
  • buy
we would love to help.