Cranbourne Drive, Harpenden, AL5 1RJ

Guide price of £645,000
Bedrooms
3
Bathrooms
2
Receptions
2
Council Tax:
D
EPC:
D
Freehold

END OF CHAIN: Charming 3-bedroom family home in a quiet cul-de-sac, offering flexible living, garage, garden and potential to extend.

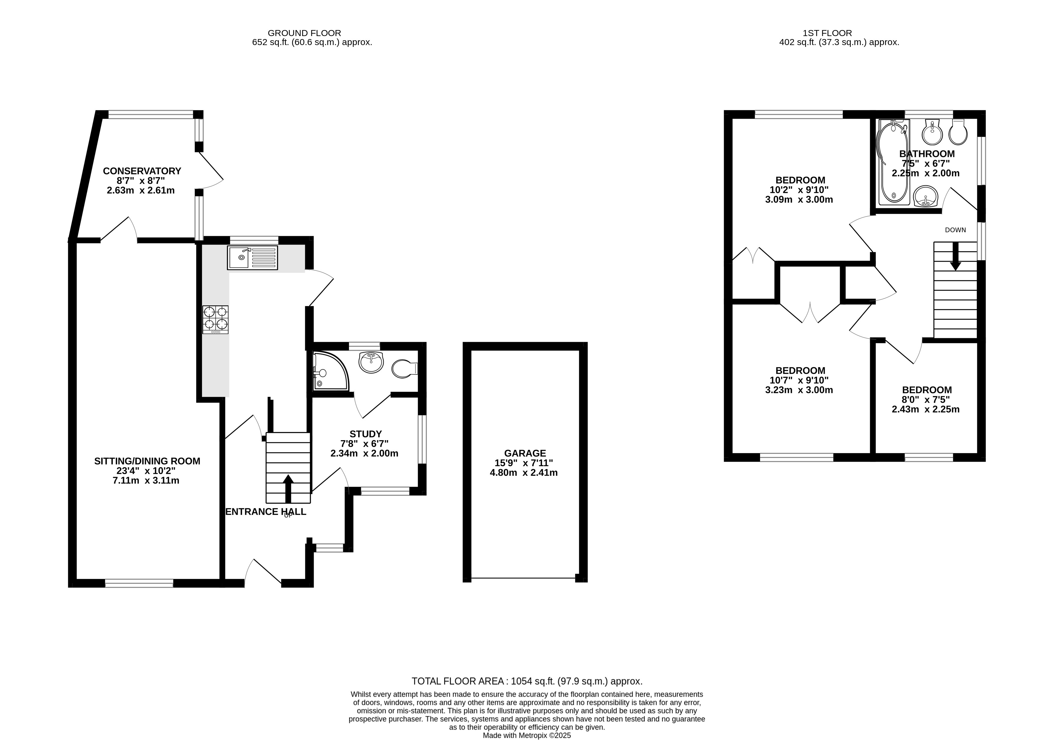
Offered to the market for the first time in over 38 years, this attractive and beautifully maintained family home presents a rare opportunity to acquire a property that combines immediate comfort with exciting future potential. Arranged over two floors, the accommodation is both versatile and well-balanced, perfectly suited to the needs of modern family living.

The property features two generous double bedrooms and a well-proportioned single bedroom, all complemented by double-glazed windows throughout. A particular highlight is the exceptional scope for extension to both the side and rear (subject to the necessary planning consents), alongside a notably wide rear garden of approximately 40ft—an increasingly rare and desirable feature.

The ground floor opens into a welcoming entrance hall, setting the tone for the rest of the home, with stairs rising to the first floor. From here, there is access to a practical study or home office, ideal for remote working, as well as a conveniently located downstairs bathroom. The principal living space is a bright and spacious sitting/dining room, designed for both everyday living and entertaining, which flows seamlessly into the conservatory. This additional reception area enjoys pleasant views over the garden and enhances the sense of space and natural light. The kitchen is thoughtfully positioned adjacent to the main living area and benefits from direct access to the rear garden.

Upstairs, a central landing leads to three well-proportioned bedrooms, all served by a stylish family bathroom, offering comfortable accommodation for growing families.

Externally, the property continues to impress, with a detached garage and off-road parking for two to three vehicles. The east-facing rear garden is of an excellent size and features a patio area, lawn, and a storage shed positioned at the rear—ideal for outdoor enjoyment throughout the day.

Occupying a peaceful and highly sought-after cul-de-sac setting, this home offers a superb environment in which to begin or continue family life, blending space, flexibility, and outstanding potential in a truly desirable location.

Cranbourne Drive is a charming location situated on the southern fringes of Harpenden close to the excellent Grove School which has an 'Outstanding' Ofsted rating. This popular location is a wonderful setting for family life offering a safe location for children to play. Southdown's shopping facilities, pubs and restaurants are all within a short walk as are a plethora of country walks. There are several local parks and Harpenden's mainline station is about a 20 minute walk away providing direct access to St Pancras International in under 30 minutes.

Council Tax Band D: £2,458.18 (2026/2027)

Buyers Information:
In compliance with the UK's Anti Money Laundering (AML) regulations, we are required to confirm the identity of all prospective buyers at the point of an offer being accepted and use a third party, Identity Verification System to do so. There is a nominal charge of £48 (per person) including VAT for this service. For more information, please refer to the terms and conditions section of our website.

Whether you’re looking to
  • buy
  • sell
  • rent
  • let
  • buy
we would love to help.