Templewood, Welwyn Garden City, AL8 7HT

Sold Mar 2022
£725,000
Bedrooms
4
Bathrooms
1
Receptions
2
EPC:
D
Leasehold

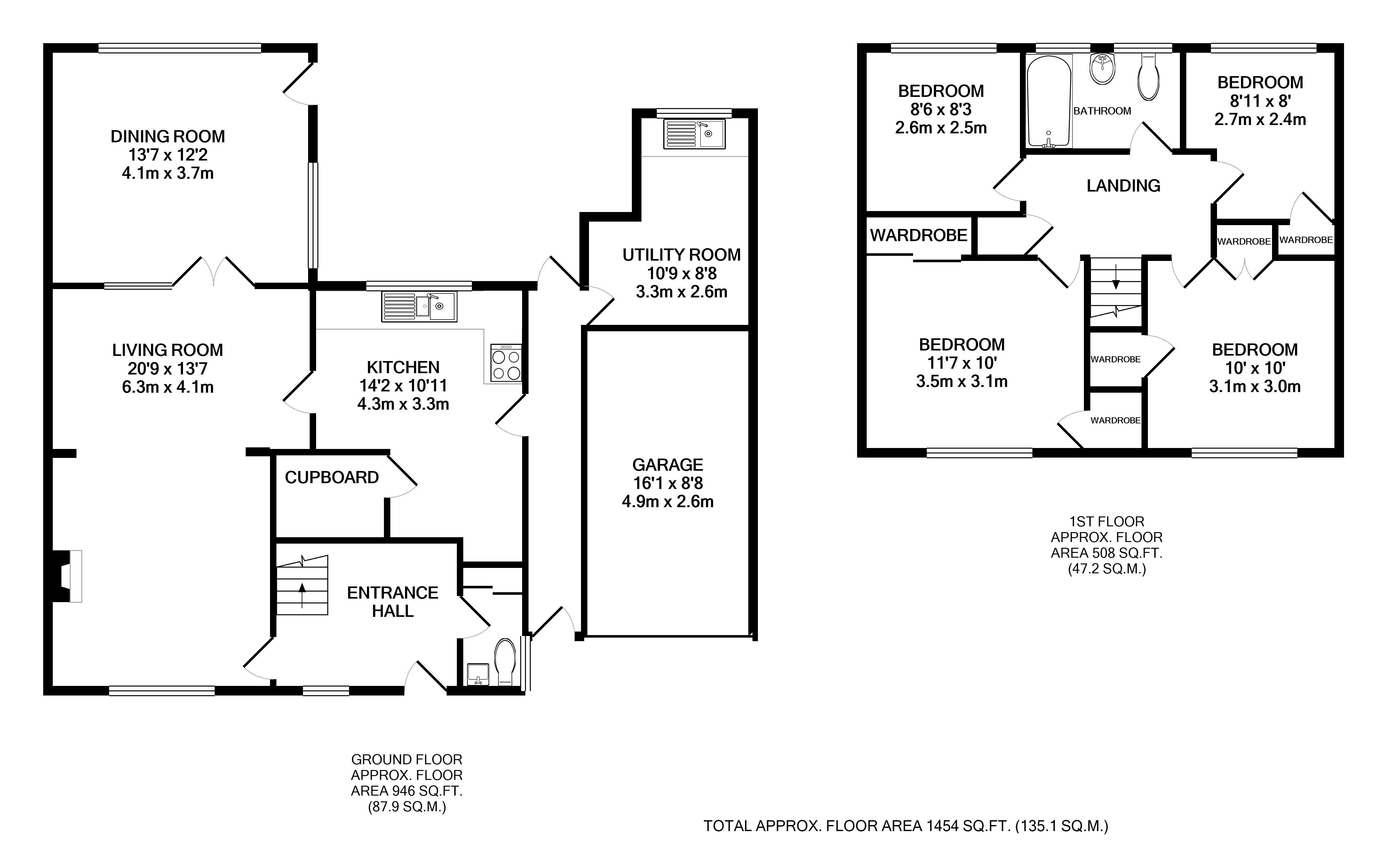
Situated close to Sherrardspark Woods on the much sought after Templewood, this extended four bedroom semi-detached property boasts well-presented accommodation, a landscaped garden, garage and off-street parking.

Whether you’re looking to
  • buy
  • sell
  • rent
  • let
  • buy
we would love to help.