Brockswood Lane, Welwyn Garden City, AL8 7BE

Guide price of £775,000
Bedrooms
3
Bathrooms
2
Receptions
3
Council Tax:
E
EPC:
D
Leasehold

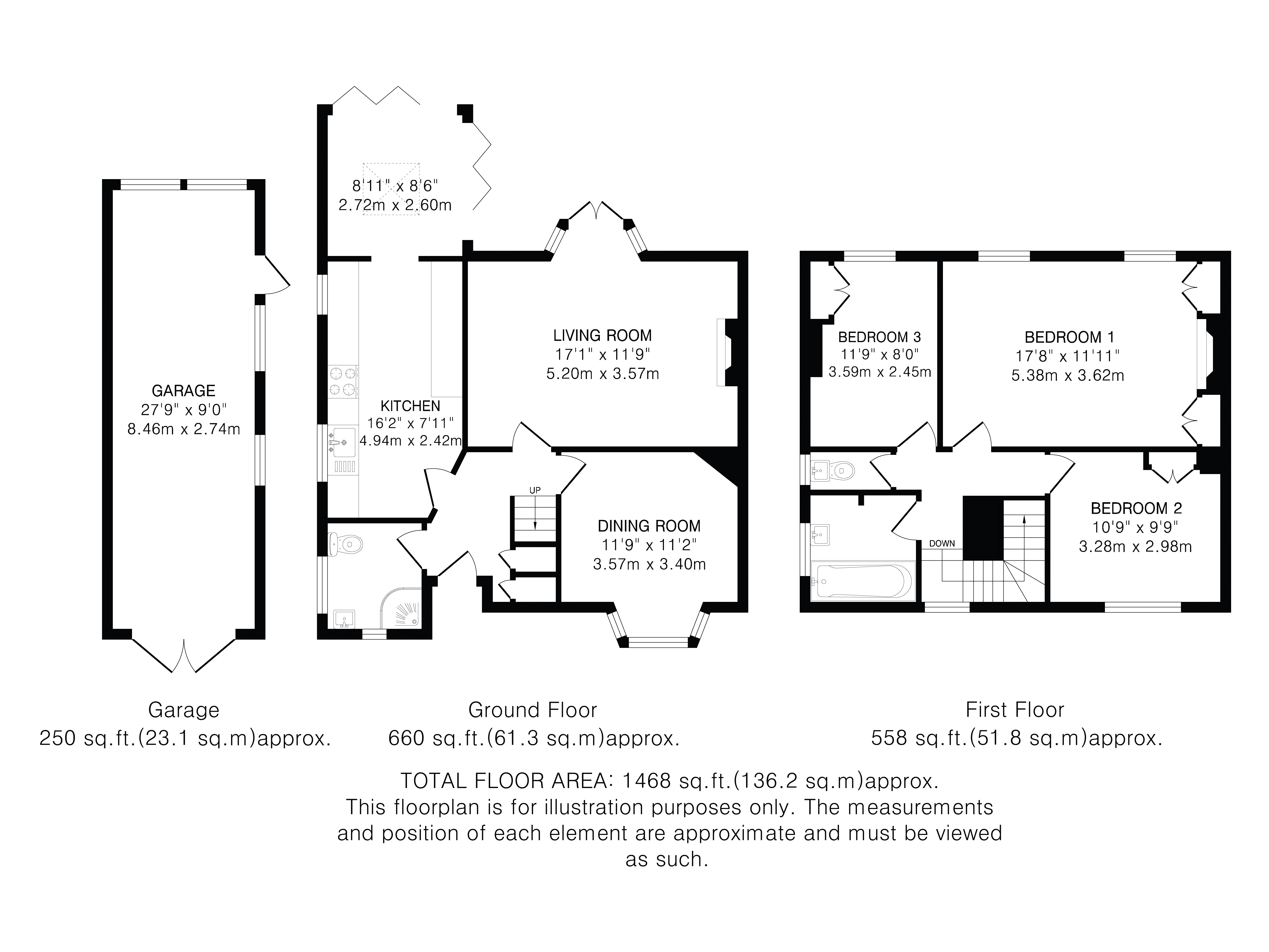
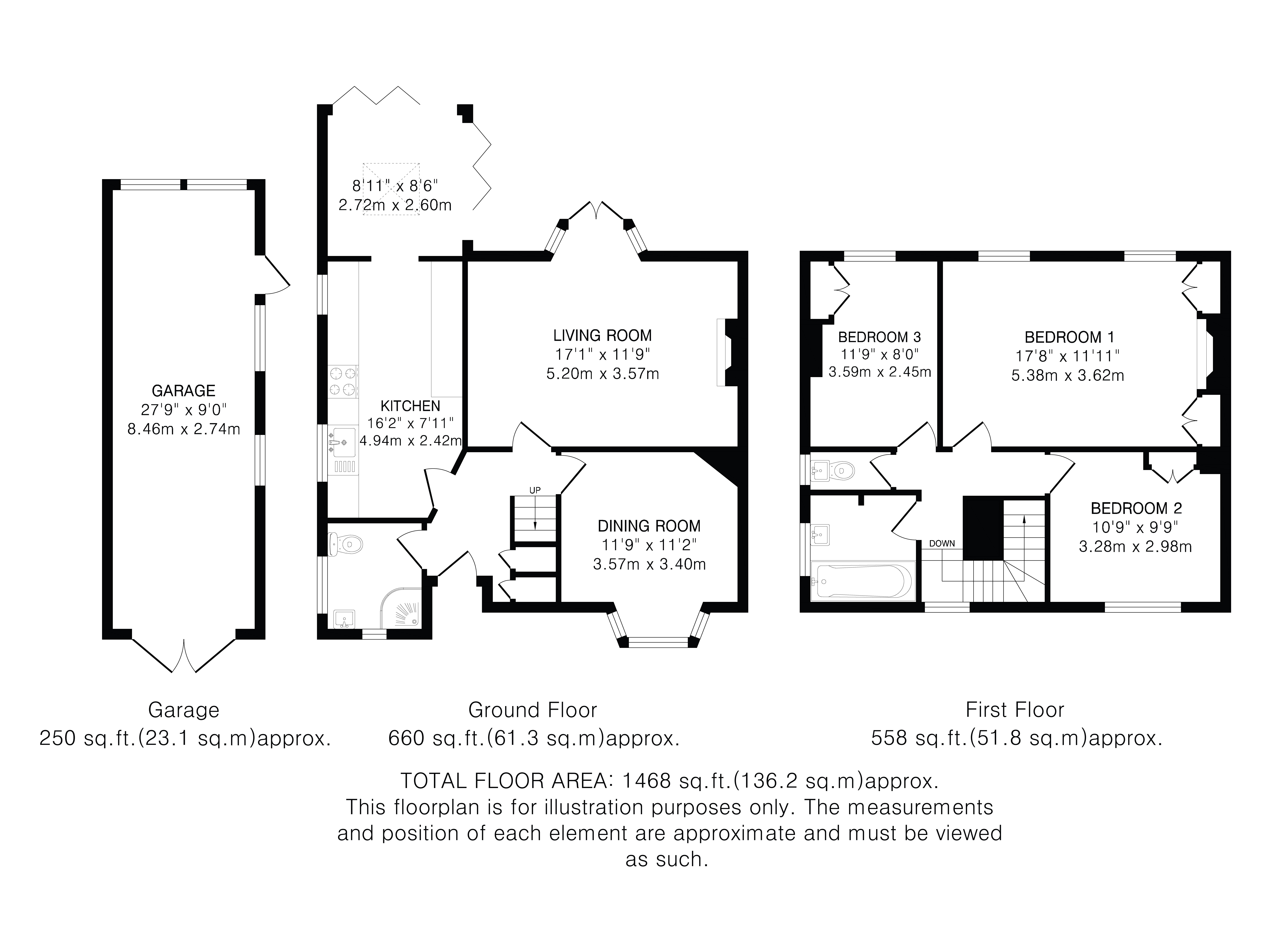
An extended three bedroom semi detached house, enviably located close to the town centre, with a double length garage, off street parking and a south facing garden.

A well-proportioned three-bedroom semi-detached home, ideally positioned on a sought-after road on the west side of town, within easy reach of the town centre, local amenities, and mainline rail station.
This charming property offers generous and versatile living space across two floors. The ground floor features three distinct reception rooms, including a light-filled lounge with French doors opening onto the rear garden, a front-facing dining room, and a flexible family room to the rear with a skylight and bi-fold doors providing direct access to the garden. A well-appointed fitted kitchen and a convenient shower room complete the ground floor accommodation.
Upstairs, the property boasts three spacious bedrooms, all served by a family bathroom and a separate WC.
Externally, the home benefits from a delightful south-facing rear garden, a double-length garage, and off-street parking to the front.
This attractive home also has plans drawn up for a double storey extension (STPP), providing excellent potential for future improvement. Overall, an excellent opportunity for families and commuters alike, offering both space, convenience and longevity in a desirable location.

Leasehold: 999 years from 24/06/1948.
922 years remaining.
Ground Rent: £9 pa.

Agents Notes:
There is asbestos in the garage roof.

The property enjoys an enviable position in the sought after West Side of Welwyn Garden, backing onto Dellcott Family Tennis Club and within easy walking distance of the town centre's amenities including John Lewis, the Howard Shopping Centre and mainline rail services to London. Renowned local schooling is also close at hand.

Council Tax Band E: £2,800.97 (2025-2026)
Ground Rent: £9.00 per annum
Leasehold: 922 years remaining

Buyers Information:
In compliance with the UK's Anti Money Laundering (AML) regulations, we are required to confirm the identity of all prospective buyers at the point of an offer being accepted and use a third party, Identity Verification System to do so. There is a nominal charge of £48 (per person) including VAT for this service. For more information, please refer to the terms and conditions section of our website.

Whether you’re looking to
  • buy
  • sell
  • rent
  • let
  • buy
we would love to help.