Thirlmere Drive, St. Albans, Hertfordshire, AL1 5QU

Let Agreed
£2,350 PCM
Bedrooms
3
Bathrooms
1
Receptions
2
Council Tax:
D
EPC:
D

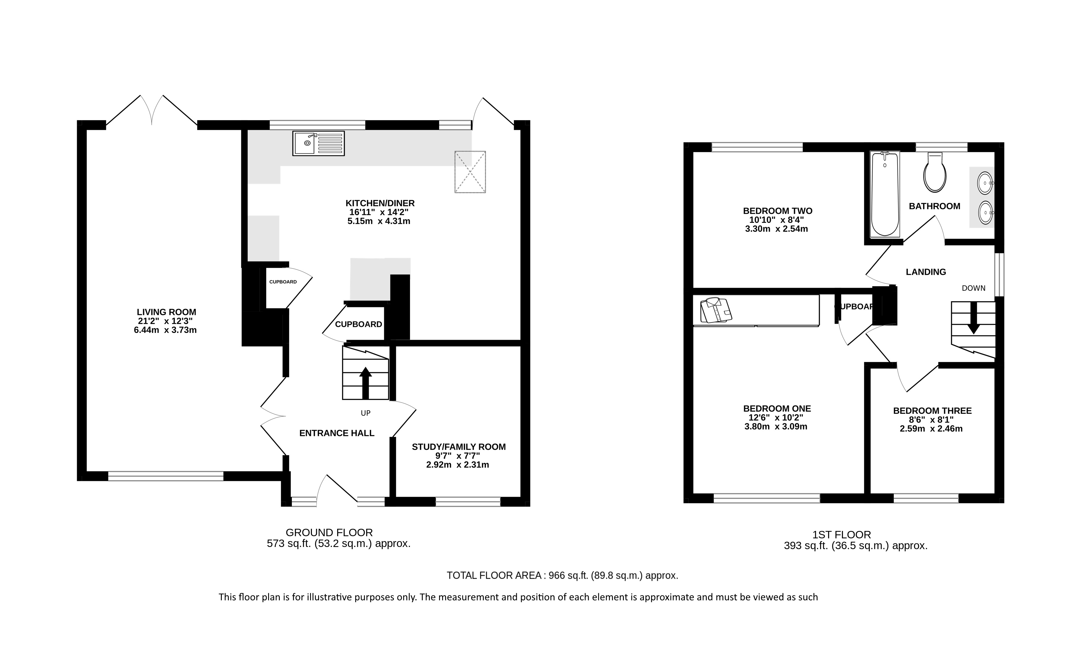
Three bedroom semi detached home, extended on the ground floor with off street parking and a great rear garden for entertaining.

A bright and spacious three bedroom semi detached property, set in this popular residential location circa 1 mile from St Albans City Station.

Having been extended on the ground floor, the property features light, bright rooms and comprises of a large 21 ft dual aspect living room, with patio doors opening to the garden, separate office/family room, and a large, 'L' shaped kitchen/dining room offering ample storage and work surfaces, with a door leading to the rear garden.

On the first floor there are 2 double bedrooms, a third single bedroom and a white bathroom suite with twin sinks and shower over the bath.

To the front the driveway is paved and offers parking for up to 3 vehicles, and the rear garden features a great entertaining space, with a large paved area under a Pergola, with a brick built BB and Pizza oven.

Council tax band D: £2,257.13 for 2025/26.
Holding Deposit: £576.92
Deposit: £2884.61

Thirlmere Drive is located in this quiet residential area, with local shops and schools on the doorstep. St Albans mainline station is circa 1 mile distant.

Council Tax Band: D
Council Tax Payable: £2,257.13
Holding Deposit: £576.92
Total Deposit: £2,884.61

Whether you’re looking to
  • buy
  • sell
  • rent
  • let
  • buy
we would love to help.