Kitchener Close, St Albans, AL1 5RH

£2,500 PCM
Bedrooms
3
Bathrooms
1
Receptions
1
Council Tax:
D
EPC:
B

Recently refurbished Three-bedroom semi-detached family home with located close to a great selection of local schools

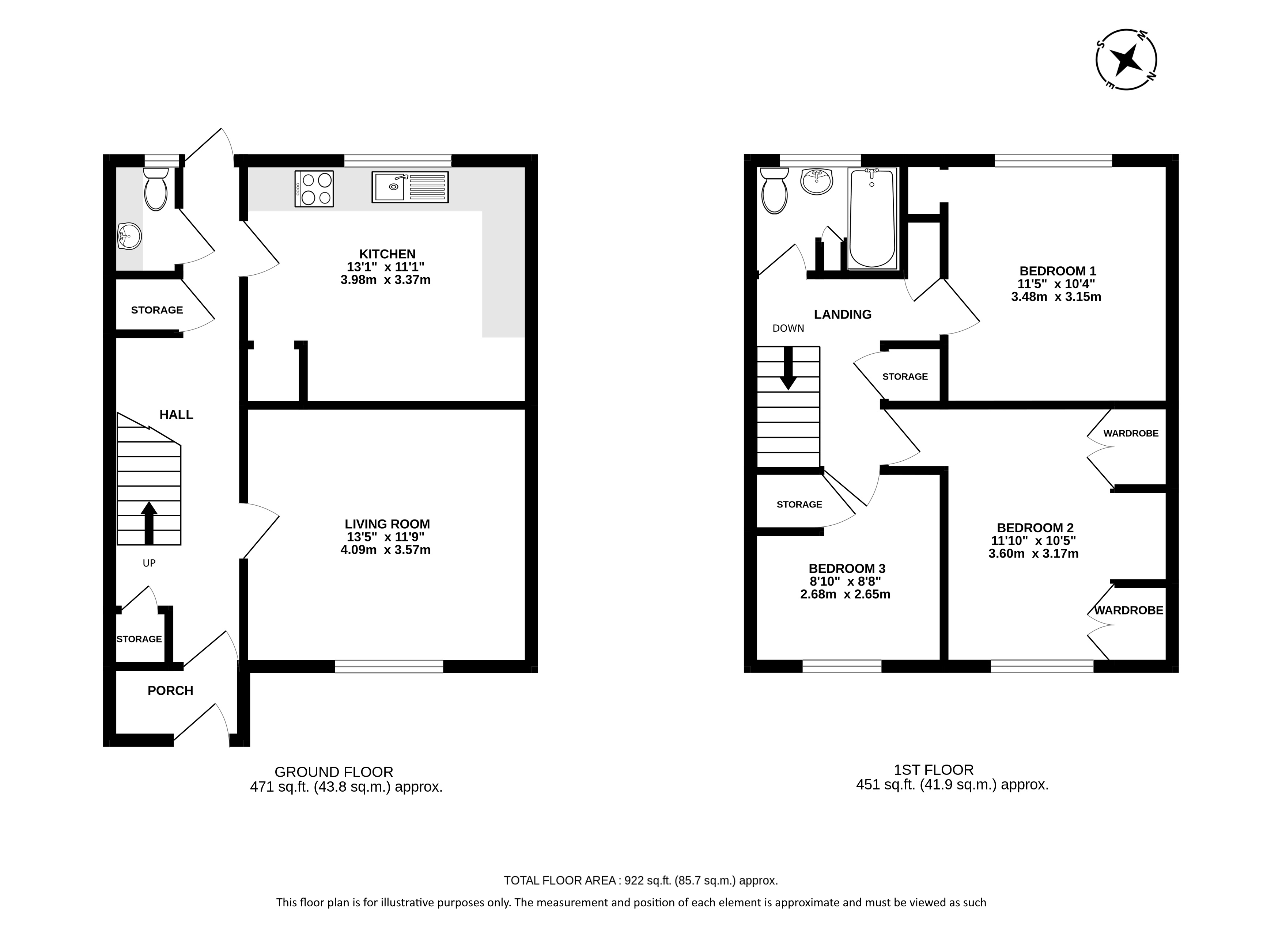
A bright and spacious three bedroom family property, situated in a popular residential area close to great schools and circa 0.75 of a mile from St Albans City Station. The property has been refurbished and upgraded to a high standard and features; entrance porch, entrance hall, with great storage space, living room with wood floors, recently refurbished Kitchen/Dining room at the rear of the property, which features ample units, work surfaces and modern appliances and ground floor WC. On the first floor you find two large double bedrooms, a further single bedroom, and the family bathroom with shower. Other notable features are; water softener and solar panels.
Externally there is an enclosed rear garden with a paved patio, ideal for entertaining, a lawn and rear access.
There is also plenty of free parking outside the property.

Kitchener Close is in a quiet residential area, with local shops and schools on the doorstep. St Albans mainline station is circa 0.75 of a mile, Hatfield Road provides a great selection of shops, cafes and restaurants and the bustling City Centre is just over a mile.

Council Tax Band D: £2,257.13 (2025/26)

Council Tax Band:
Council Tax Payable: £2,257.13
Holding Deposit: £611.54
Total Deposit: £2,884.61

Whether you’re looking to
  • buy
  • sell
  • rent
  • let
  • buy
we would love to help.