North Close, St. Albans, AL2 3HB

Guide price of £720,000
Bedrooms
2
Bathrooms
2
Receptions
2
Council Tax:
E
EPC:
C
Freehold

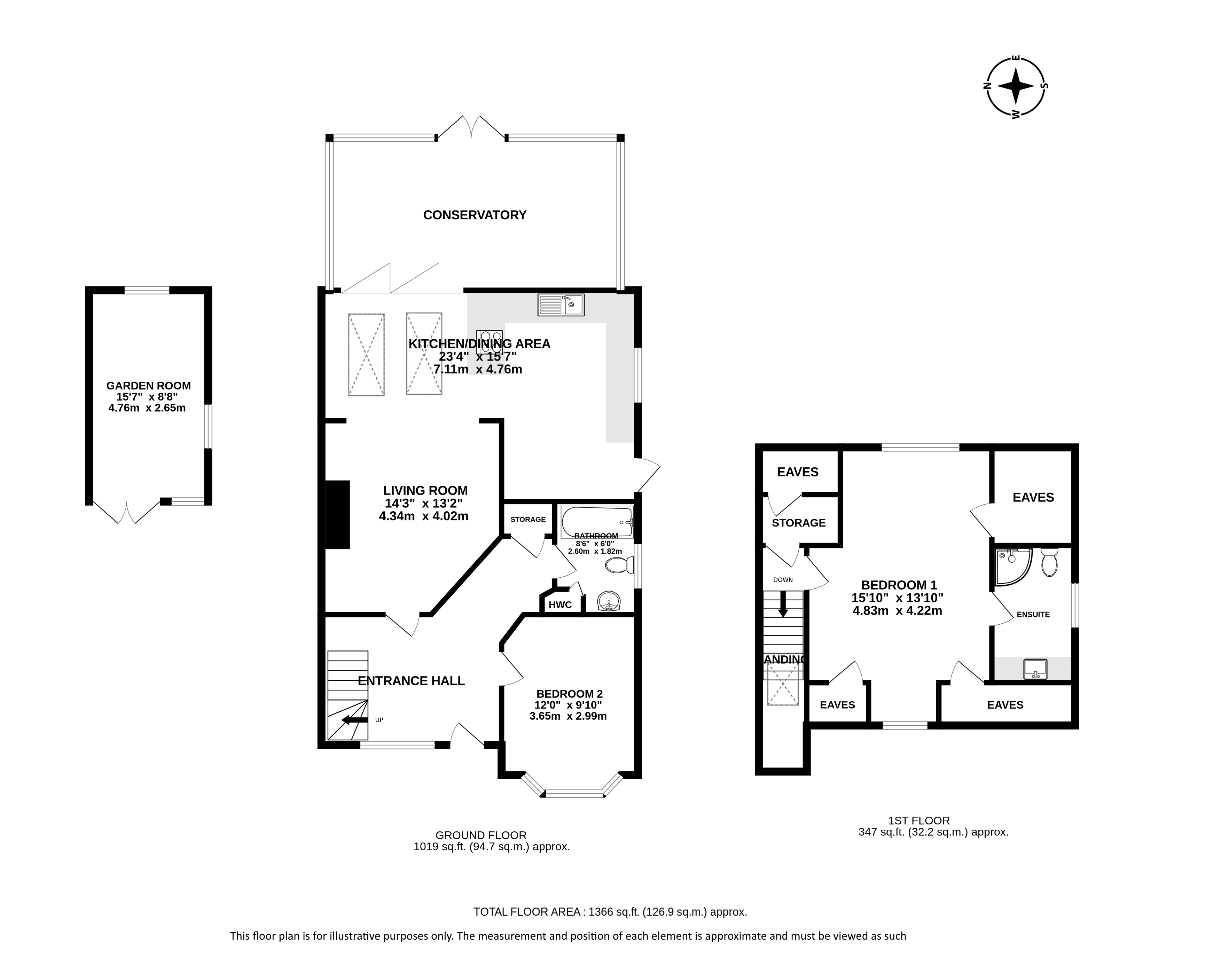
Nestled within a quiet cul-de-sac in Chiswell Green, is this handsome bungalow offering a rare opportunity to enjoy a combination of comfort, elegance and convenience.

The property presents two spacious bedrooms and two bathrooms, designed to suit modern living while being surrounded by a calm residential setting. Its location ensures excellent access to local amenities while maintaining a peaceful atmosphere.

The entrance hall immediately introduces a sense of space and light, setting the tone for the rest of the property. On the ground floor you will find a well proportioned second bedroom, a stylish family bathroom, and a useful storage cupboard that is ideal for coats, shoes and household items. This level has been thoughtfully planned to balance practicality with contemporary design.

The main living area lies at the heart of the home and seamlessly combines the kitchen, dining and sitting areas. The kitchen is equipped with modern units, integrated appliances and generous work surfaces, creating a space that is both functional and visually appealing. The adjoining sitting area includes a fireplace, offering a cosy focal point, while the dining space benefits from skylights that flood the room with natural light. From here, doors open into a bright conservatory that provides additional living space and enjoys views over the rear garden.

The first floor is dedicated to the principal bedroom suite, which spans the entire level. This well appointed space features extensive built in storage and a private en suite shower room, creating a tranquil retreat away from the main living areas.

Outside, the rear garden has been beautifully landscaped with a mix of lawn, mature planting and a separate garden room that can serve as a home office, studio or gym. To the front, a neat lawn and driveway provide both kerb appeal and parking. The property is well placed for families, being close to Killigrew Primary and Nursery School, with the wider attractions of St Albans city centre just a short drive away.

North Close is a peaceful residential enclave on the southern side of St Albans, offering a friendly community atmosphere with excellent local amenities close at hand. The area is particularly popular with families thanks to its proximity to Killigrew Primary and Nursery School, as well as a selection of local shops, a convenience store, and welcoming pubs. Surrounded by green spaces yet only a short drive from St Albans city centre, North Close provides the perfect balance of tranquillity and accessibility, with superb road and rail links for commuters.

Buyers Information:
In compliance with the UK's Anti Money Laundering (AML) regulations, we are required to confirm the identity of all prospective buyers at the point of an offer being accepted and use a third party, Identity Verification System to do so. There is a nominal charge of £48 (per person) including VAT for this service. For more information, please refer to the terms and conditions section of our website.

Whether you’re looking to
  • buy
  • sell
  • rent
  • let
  • buy
we would love to help.