Driftwood Avenue, St. Albans, Hertfordshire, AL2 3DE

Guide price of £525,000
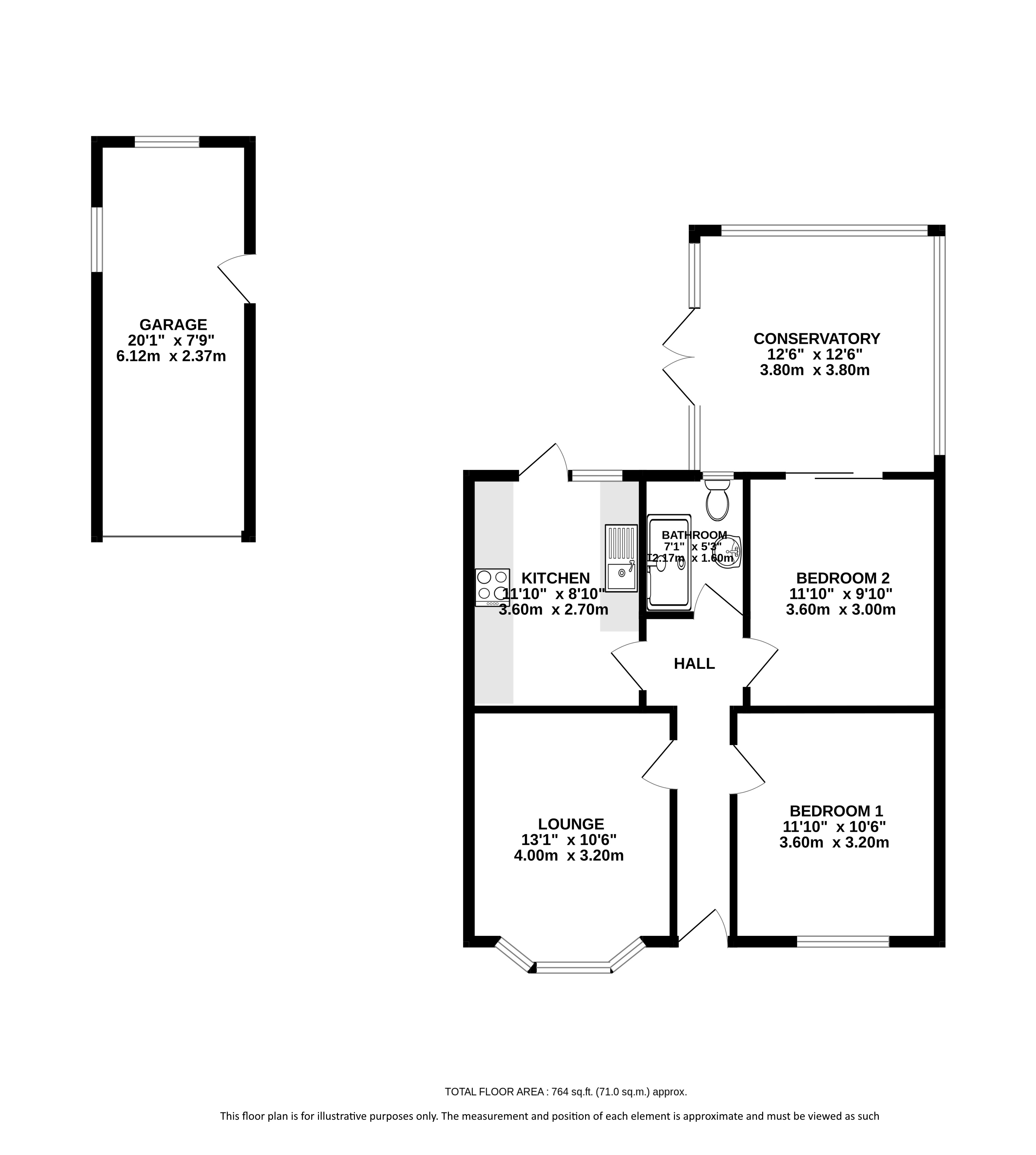
Bedrooms
2
Bathrooms
1
Receptions
1
Council Tax:
D
EPC:
D
Freehold

A bright two bedroom bungalow with a south-west facing garden. This semi-detached property is well presented and has exciting potential for improvement/extension, subject to the usual planning consents and regulations.

Offered to the market with the benefit of no onward chain, this lovely home is set back from the road, with a bloc-paved parking space to the front and a shared driveway to a separate single garage at the rear. Internally, the layout features two spacious bedrooms, one of which is currently in use as a dining area, a comfortable lounge with large windows to the front and a bright conservatory. The contemporary kitchen has plenty of storage and a number of integrated appliances and there is a recently refitted shower room accessed from the hall.

The bungalow has an impressive well-stocked rear garden with a sunny south-westerly aspect. It has a large lawn with planted beds to the sides, and there is a paved seating area close to the property.

Driftwood Avenue is a no through road located in the popular village of Chiswell Green. Local amenities including shops, a doctors' surgery and well regarded schools are close by, and St Albans city centre is easily accessible.

Driftwood Avenue is a no through road located in the popular village of Chiswell Green. Local amenities including shops, a doctors surgery and well regarded schools are close by, and St Albans city centre is easily accessible.

Council Tax Band D: £2,344.42 (2025/2026)
Service Charge: £0.00 per annum

Buyers Information:
In compliance with the UK's Anti Money Laundering (AML) regulations, we are required to confirm the identity of all prospective buyers at the point of an offer being accepted and use a third party, Identity Verification System to do so. There is a nominal charge of £48 (per person) including VAT for this service. For more information, please refer to the terms and conditions section of our website.

Whether you’re looking to
  • buy
  • sell
  • rent
  • let
  • buy
we would love to help.