Russet Drive, St. Albans, Hertfordshire, AL4 0DB

Guide price of £850,000
Bedrooms
4
Bathrooms
2
Receptions
3
Council Tax:
G
EPC:
C
Freehold

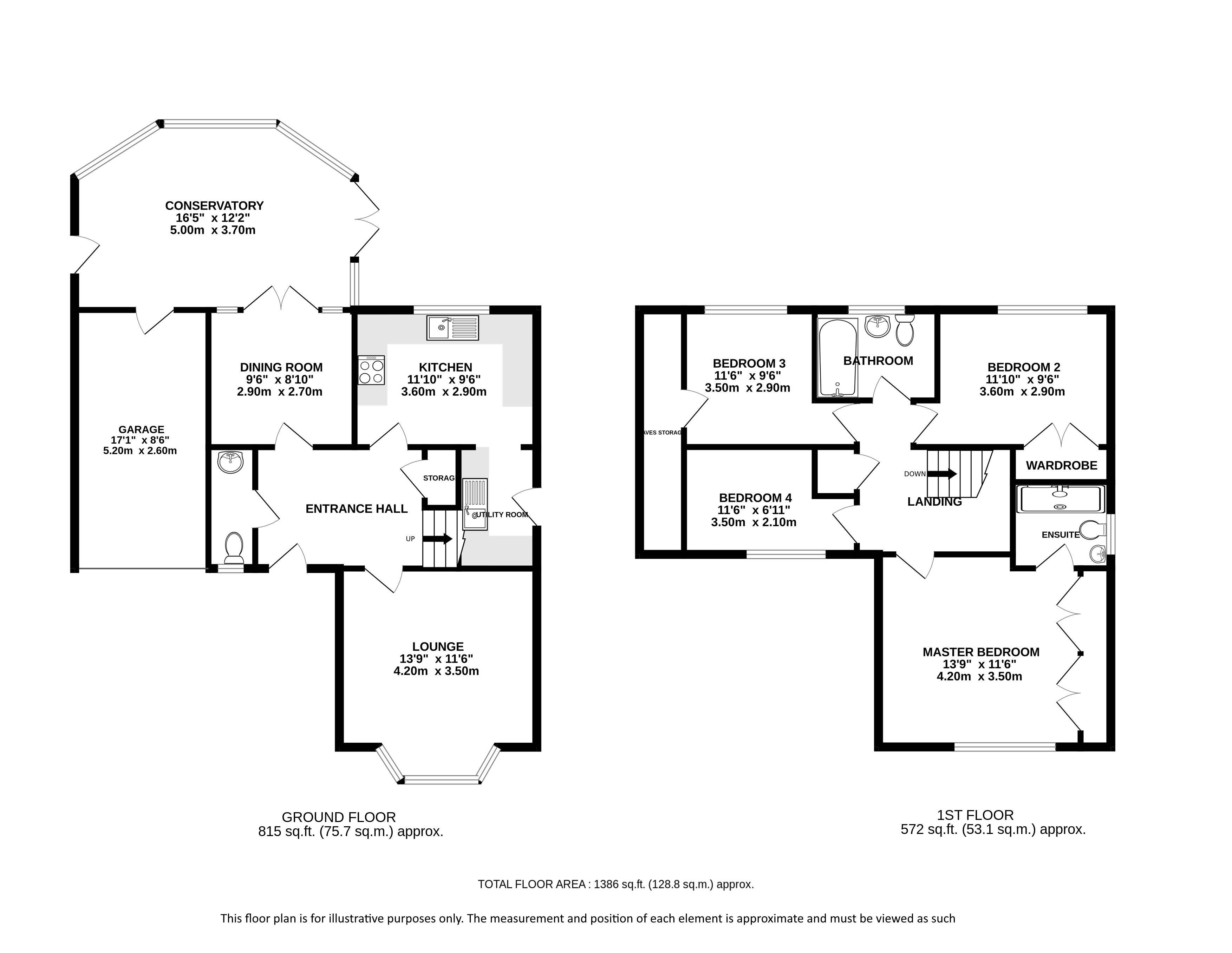
This substantial four bedroom detached family home is extremely well presented throughout and is positioned within the prestigious Highfield Park development. The property benefits from a beautifully landscaped rear garden and offers excellent scope to extend and re-configure, subject to the usua...

Being sold with a complete onward chain this impressive detached, four bedroom family home offers spacious accommodation in excellent decorative order throughout with the added benefit of air conditioning installed by the current vendor. The accommodation includes a welcoming entrance hall, ground floor WC, a spacious living room to the front with feature bay window, a stylish kitchen overlooking the rear garden and a useful utility room. A separate dining room with doors into the large conservatory and an integral garage complete the ground floor.

To the first floor the principal bedroom to the front has built-in wardrobes and a refitted en- suite shower room and the three further good size bedrooms are all serviced by a modern family bathroom

Outside, to the front there is a driveway providing off-street parking for up to two vehicles and a mature garden to the rear that is mainly laid to lawn featuring mature shrubs, trees and plants creating a charming and private open space to relax. There is also a wonderfully maintained patio area ideal for entertaining.

Council Tax Band: G ÔøΩ3,792.53 (2024/2025)

Russet Drive is situated on the eastern side of St Albans, close to excellent local schooling and open countryside as well as the Alban Way for cyclists and walkers. The property is also within close proximitiy to Highfield Park itself with it's beautiful nature walks, history trails and pathways. The surrounding road and motorway networks are comfortably accessible as are the mainline station and city centre of St Albans. The immediate area is supported with local shops, leisure centre and doctors�? surgery.

Council Tax Band G: £3,972.33 (2025/2026)
Service Charge: £0.00 per annum

Buyers Information:
In compliance with the UK's Anti Money Laundering (AML) regulations, we are required to confirm the identity of all prospective buyers at the point of an offer being accepted and use a third party, Identity Verification System to do so. There is a nominal charge of £48 (per person) including VAT for this service. For more information, please refer to the terms and conditions section of our website.

Whether you’re looking to
  • buy
  • sell
  • rent
  • let
  • buy
we would love to help.