Boundary Road, St Albans, AL1 4EF

Sale Agreed
Guide price of £530,000
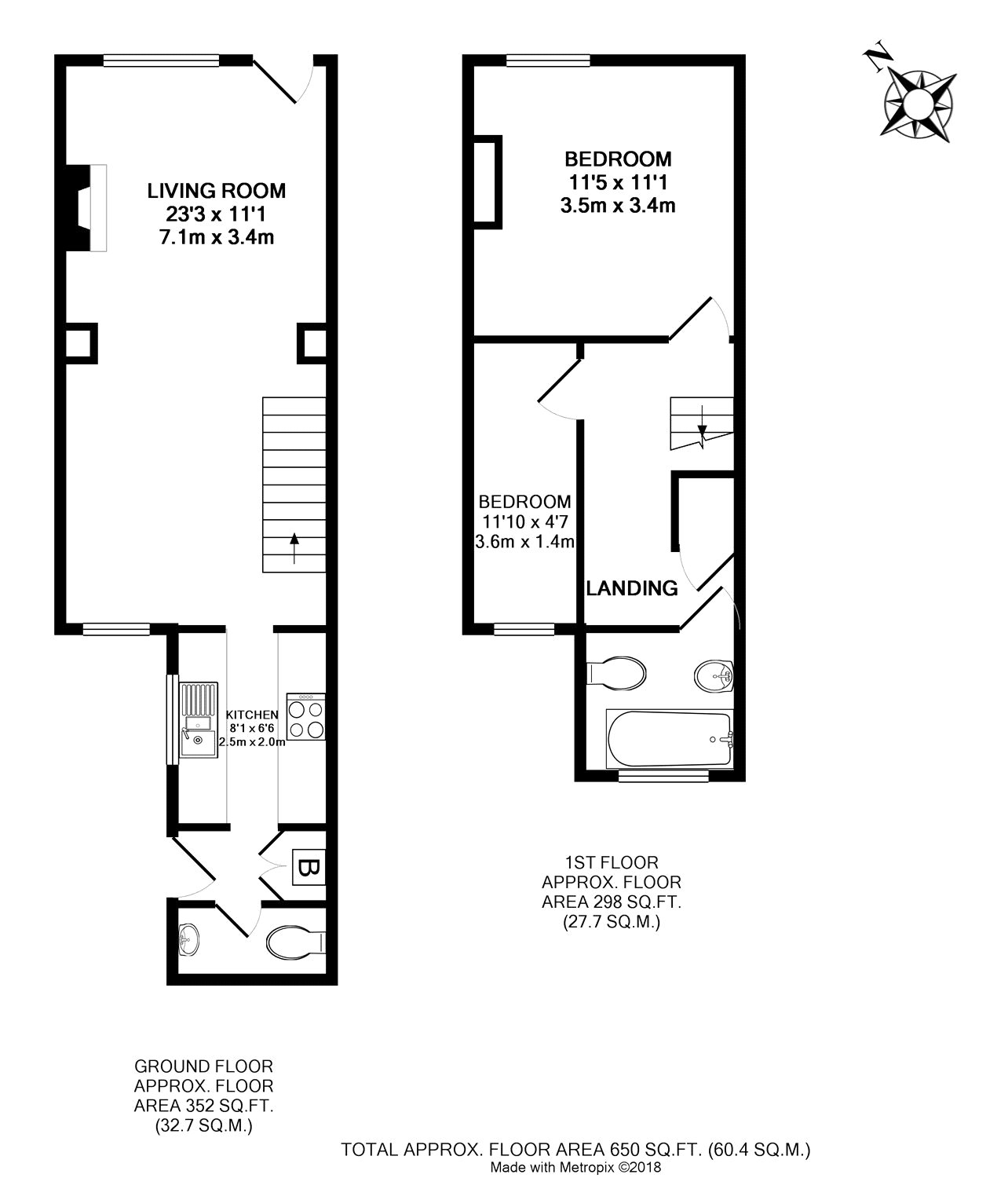
Bedrooms
2
Bathrooms
1
Receptions
1
Council Tax:
D
EPC:
D
Freehold

A beautifully presented two bedroom cottage within walking distance of the mainline station, excellent local schooling and Bernards Heath recreation ground.

Situated in a popular Bernard Heath location, this characterful cottage is well-presented throughout and has accommodation arranged over two floors.

The open-plan living/dining room has dual aspect windows making this a bright and airy space with exposed brickwork and a feature fireplace.
To the rear, the smart modern kitchen features a range of base and wall cupboards with granite worktops and includes several integrated appliances. An inner hall from here provides garden access and a cloakroom with useful ground floor wc.

To the first floor there are two bedrooms; the bright master with a feature fireplace. Both are serviced by the modern family bathroom.

Outside, the rear garden measures approximately 80ft. in length and has a patio adjacent to the level lawn, storage shed and useful rear access gate.

The property is set on the northern edge of St Albans City Centre close to well-regarded schools, Bernards Heath and the city centre. The address proves popular with young families and commuters and the road consists of similar older properties of character.

Council Tax Band D: £2,257.13 (2025/26)

Buyers Information:
In compliance with the UK's Anti Money Laundering (AML) regulations, we are required to confirm the identity of all prospective buyers at the point of an offer being accepted and use a third party, Identity Verification System to do so. There is a nominal charge of £48 (per person) including VAT for this service. For more information, please refer to the terms and conditions section of our website.

Whether you’re looking to
  • buy
  • sell
  • rent
  • let
  • buy
we would love to help.