Seymour Road, St Albans, AL3 5HW

Guide price of £1,100,000
Bedrooms
3
Bathrooms
1
Receptions
2
Council Tax:
F
EPC:
D
Freehold

A substantially remodelled, detached three bedroom home with an impressive garden, positioned within walking distance of the city centre and mainline station.

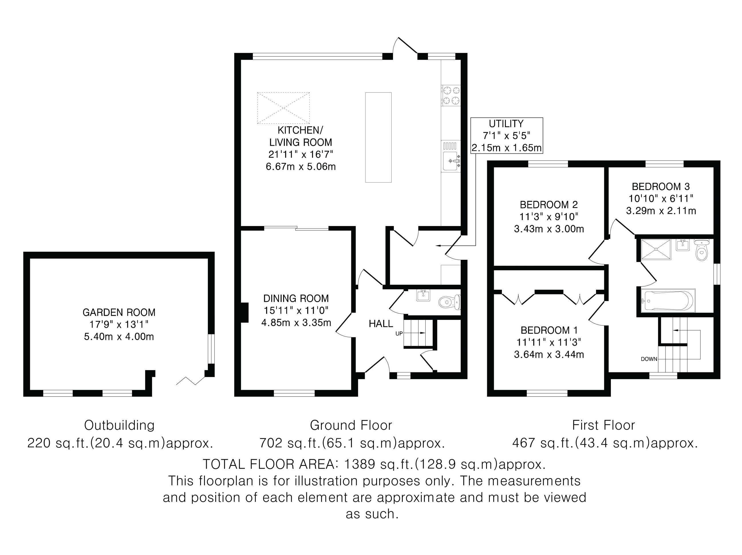
This lovely three bedroom detached house has been extensively renovated and extended by its current owners. Set back from the road with a gravel driveway providing parking for two cars, the front door opens into a bright entrance hall with a WC and leads into a stunning open plan space with underfloor heating at the rear, full height glazing and sliding doors span the width of the property and give lovely views over the garden. The kitchen is to one side and incorporates integrated appliances including fridge, double oven and microwave, there are stone worksurfaces and the design includes a large island for informal dining. A sizeable rooflight brings in additional natural light over the adjacent living area, and sliding doors connect this space to a further reception room at the front of the house which has a multi fuel stove. A separate utility room is accessed from the kitchen and has a door to the side of the house.

Upstairs there are three bedrooms, the largest of which has fitted storage, and the two rooms to the rear have large, low silled windows. The bathroom has been planned to accommodate a separate bath and shower and has a window to the side of the house.

The loft currently provides useful additional storage and approval has been previously obtained for a conversion to create a large fourth bedroom with en-suite bathroom. Plans are available to view.

The attractive garden extends to approximately 100 feet and has been completely relandscaped, a number of mature trees allow a good level of privacy and it has an open aspect to the rear. A door from the kitchen opens onto a raised terrace with a seating area which is perfect for enjoying the morning sun and there are steps down to a large lawn with a planted bed to the side. There is a further gravelled seating area beyond, a second lawn and a large Garden Room with bi-fold doors has been recently installed to the rear with a fitted desk and living space, allowing it to suit a number of uses.

Note:
Pursuant to the 1979 Estate Agency Act we are duty bound to advise you that this property is owned by an employee of Ashtons Estate Agents.

A small area of Japanese Knotweed was identified in the garden in 2016 and a treatment programme was implemented and completed. There has been no evidence of regrowth for nine years, and this has been confirmed by a recent pre-sale inspection.

Seymour Road is located to the north of the city centre and is ideally positioned for access to the wide range of amenities in the city centre as well as St Albans City Station, where there are fast rail links into central London. The property is close to the open space of Bernards Heath , where there is also a local shop, and there are several highly regarded schools within walking distance, including STAGS, just over half a mile away.

Council Tax Payable: £3,420.96 (2026/27)
In compliance with the UK's Anti Money Laundering (AML) regulations, we are required to confirm the identity of all prospective buyers at the point of an offer being accepted and use a third party, Identity Verification System to do so. There is a nominal charge of £48 (per person) including VAT for this service. For more information, please refer to the terms and conditions section of our website.

Whether you’re looking to
  • buy
  • sell
  • rent
  • let
  • buy
we would love to help.