St James Road, Harpenden, AL5 4PB

Guide price of £765,000
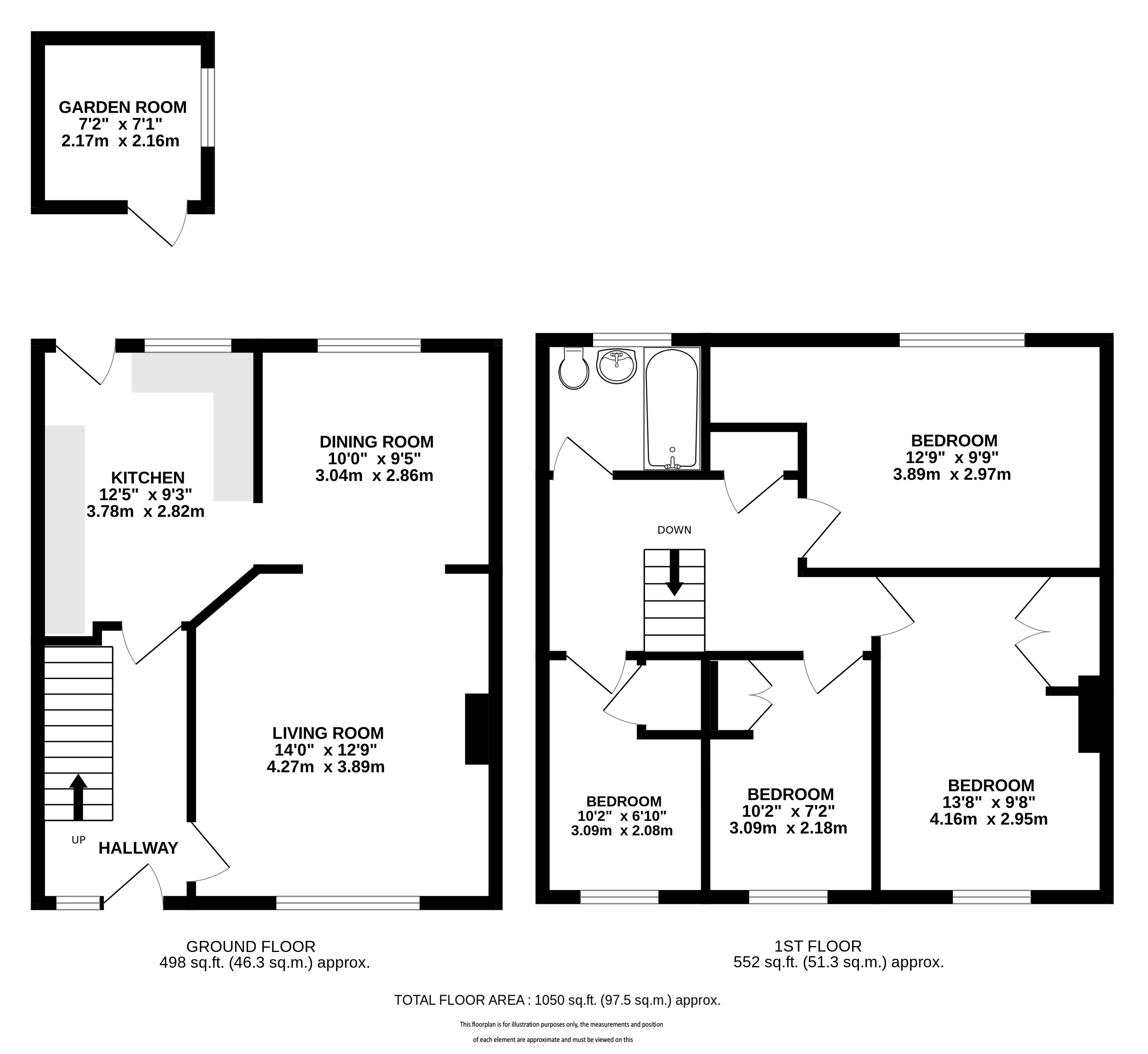
Bedrooms
4
Bathrooms
1
Receptions
2
Council Tax:
E
EPC:
C
Freehold

An spacious mid terrace family home located within a very popular position close to excellent schooling.

Offered with vacant possession and in need of some modernisation, the accommodation is arranged over two floors to include four good sized bedrooms and family bathroom on the first floor, whilst downstairs are two separate reception rooms and fitted kitchen.
The private rear garden is laid mostly to lawn with a large timber built gardens storage shed and brick built office, all backing onto open parkland.
To the front is off street parking and lawned area.

St James Road is a peaceful location in the heart of the Ox Lane area of Harpenden. The Excellent location incorporates a range of building styles of all ages and provides a charming setting for local schools to include Sir John Lawes and Manland, both within a short walk as is St Georges and Katherine Warington.
There is a large park at the end of the road and Harpenden station is approximately one mile away and provides direct access to St Pancras International.

Council Tax Band E: £3,004.44 (2026/2027)

Buyers Information:
In compliance with the UK's Anti Money Laundering (AML) regulations, we are required to confirm the identity of all prospective buyers at the point of an offer being accepted and use a third party, Identity Verification System to do so. There is a nominal charge of £48 (per person) including VAT for this service. For more information, please refer to the terms and conditions section of our website.

Whether you’re looking to we would love to help.