New Fiddlers Hill, Harpenden, AL5 3QF

Guide price of £750,000
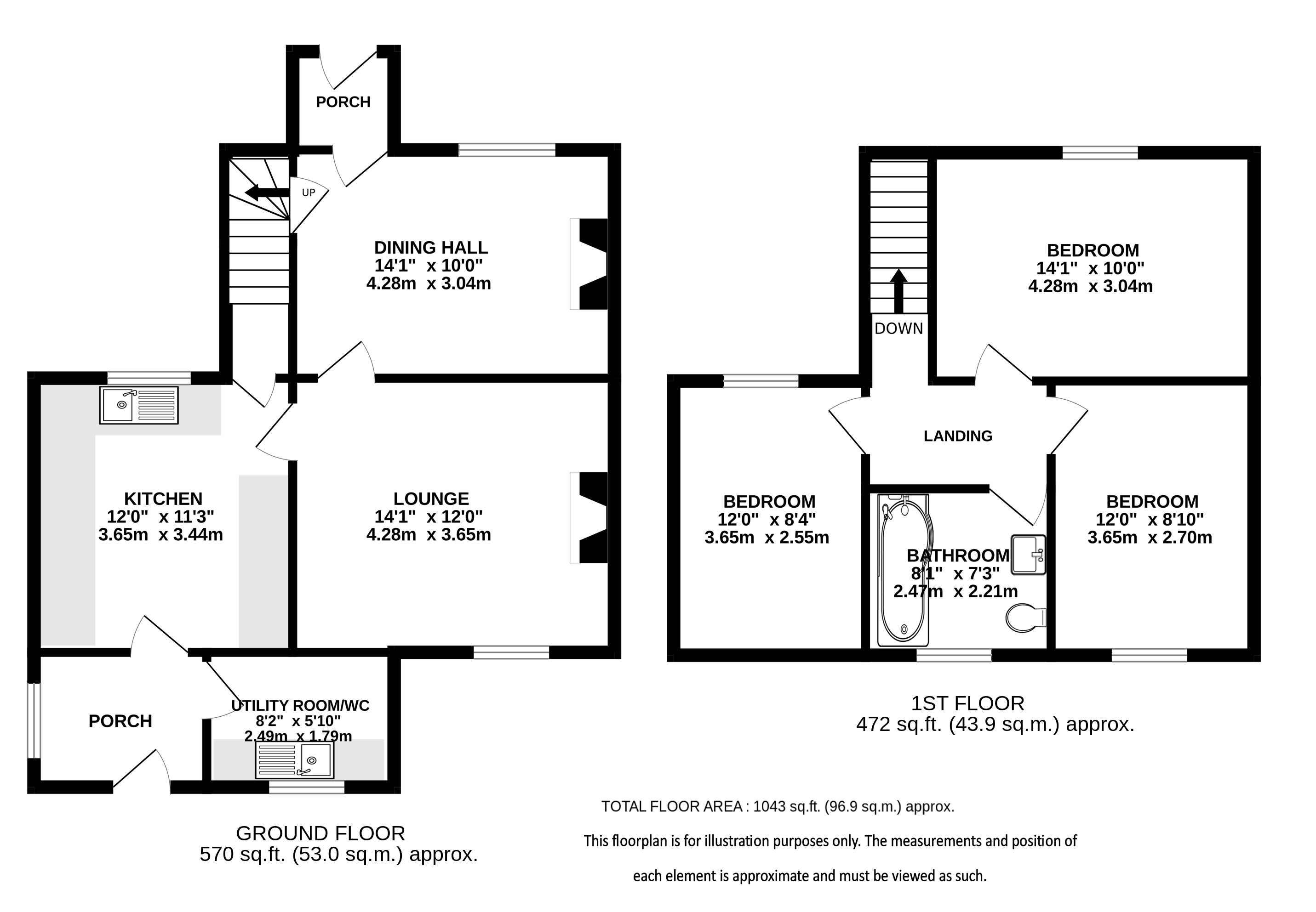
Bedrooms
3
Bathrooms
2
Receptions
2
Council Tax:
D
EPC:
D
Freehold

A delightful three-bedroom cottage with beautiful countryside views, useful outbuildings, generous parking, and a spacious south-west facing private garden.

This charming three-bedroom country cottage enjoys a truly enviable position, set along a private road just off Luton Road and overlooking the rolling Hertfordshire countryside. Occupying a peaceful edge-of-farmland setting, the property offers a wonderful balance of character, comfort, and rural tranquillity.

The well-maintained accommodation is thoughtfully arranged and includes a modern fitted kitchen, ideal for everyday living, alongside two inviting reception rooms that provide flexible space for both relaxation and entertaining. A practical utility room with WC adds further convenience. Upstairs, there are three well-proportioned bedrooms, all enjoying pleasant outlooks, served by a contemporary family bathroom.

Externally, the property continues to impress. Two useful brick-built outbuildings offer excellent storage or potential for a variety of uses. The generous south-west facing private garden is a particular highlight, perfect for enjoying afternoon and evening sunshine while taking in the far-reaching countryside views. To the front, there is ample parking for several vehicles.

Altogether, this delightful home presents a rare opportunity to enjoy country-style living in a highly desirable and accessible location.

New Fiddlers Hill is a small collection of charming Victorian former farmhouse cottages, set in a picturesque and tranquil location off Luton Road, with beautiful views across the Hertfordshire countryside. The property is within walking distance of Wood End and Roundwood Park School, and just 1.5 miles from Harpenden town centre, which offers a variety of restaurants, pubs, and boutique shops. Harpenden station provides direct access to London Kings Cross in around thirty minutes and to St Pancras International, while Junction 9 of the M1 is only a five-minute drive away.

Council Tax Band D: £2,424.34 (2026/2027)

Buyers Information:
In compliance with the UK's Anti Money Laundering (AML) regulations, we are required to confirm the identity of all prospective buyers at the point of an offer being accepted and use a third party, Identity Verification System to do so. There is a nominal charge of £48 (per person) including VAT for this service. For more information, please refer to the terms and conditions section of our website.

Whether you’re looking to
  • buy
  • sell
  • rent
  • let
  • buy
we would love to help.