Coleswood Road, Harpenden, Hertfordshire, AL5 1EF

Guide price of £700,000
Bedrooms
3
Bathrooms
2
Receptions
2
Council Tax:
D
EPC:
E

Stunning 3-bed semi-detached home with open-plan living, modern kitchen, 3 bedrooms, garden, and great schools & local amenities nearby.

A beautifully presented and thoughtfully extended three bedroom semi-detached family home, ideally situated on the ever-popular Coleswood Road, close to excellent local amenities and highly regarded schools.

This spacious home offers well-balanced accommodation arranged over three floors, perfectly suited to modern family living.

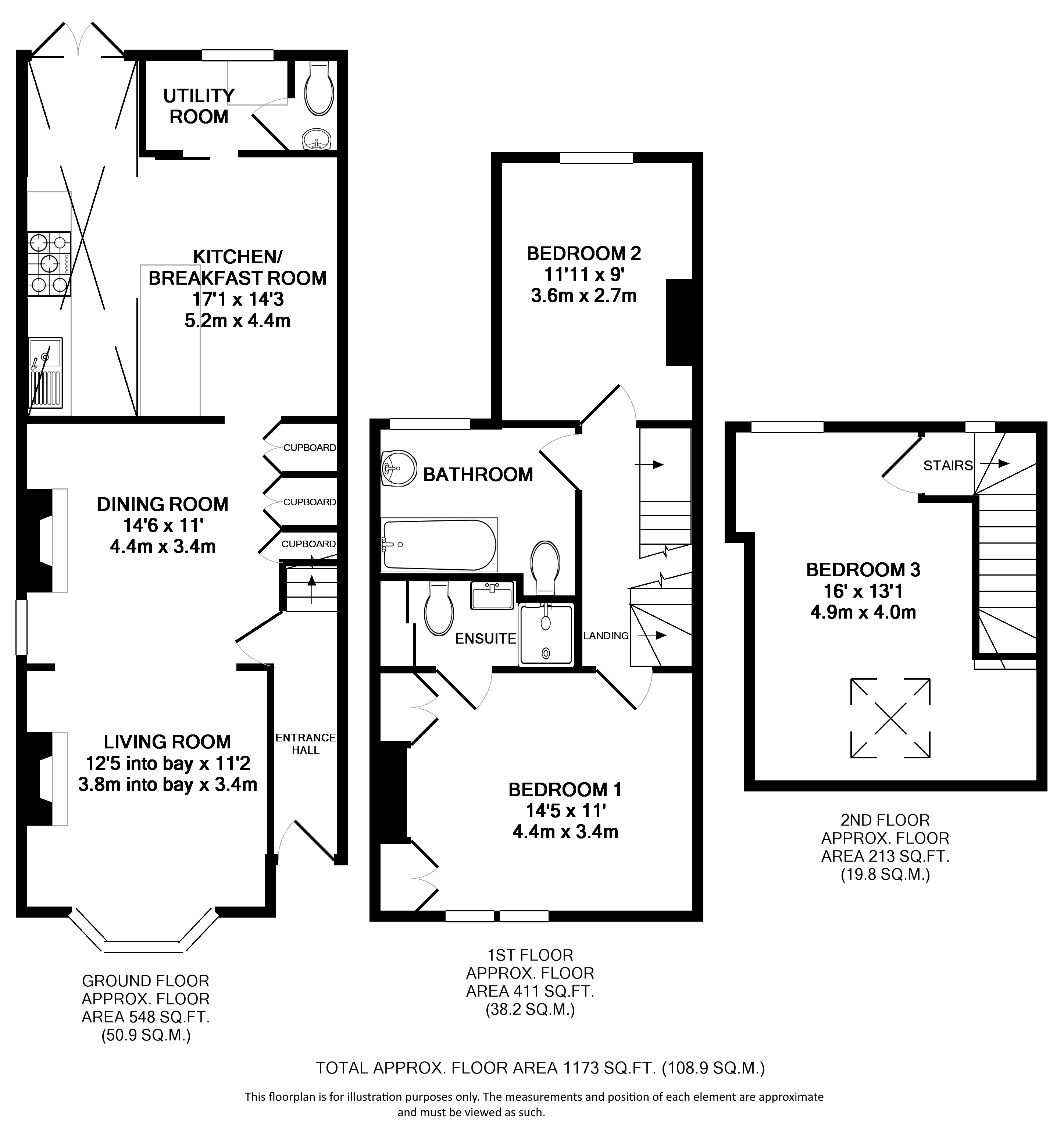
The ground floor is accessed via a welcoming entrance hall, providing access to the principal reception rooms and staircase. To the front, the bright living/dining room features an attractive bay window, creating a light and inviting space. This flows seamlessly into the generous kitchen/breakfast room which overlooks the garden, forming the heart of the home. The kitchen is well-appointed with ample fitted units and worktop space, with plenty of room for a breakfast table. A separate utility room provides additional storage and practicality, with access to the downstairs cloakroom.

On the first floor, the principal bedroom is a spacious double room benefitting from built-in wardrobes and a modern en suite shower room. A second well-proportioned double bedroom and a contemporary family bathroom complete this floor.

The second floor hosts an impressive third double bedroom, offering a versatile space ideal for guests, a teenager’s retreat or a home office.

Externally, the property enjoys a delightful rear garden with a patio seating area, perfect for outdoor entertaining, with the remainder laid to lawn and a sizeable shed.

Please note the photographs were taken prior to the current tenancy commencing.

Coleswood Road is ideally positioned close to a range of local shops and amenities, with excellent local schools nearby, including The Grove Schools just a short walk away, making this an ideal family home. Harpenden town centre and mainline station are approximately one mile away, providing convenient access for commuters.

Council Tax Band D: £2,342.57 (2025/26)

Buyers Information:
In compliance with the UK's Anti Money Laundering (AML) regulations, we are required to confirm the identity of all prospective buyers at the point of an offer being accepted and use a third party, Identity Verification System to do so. There is a nominal charge of £48 (per person) including VAT for this service. For more information, please refer to the terms and conditions section of our website.

Whether you’re looking to
  • buy
  • sell
  • rent
  • let
  • buy
we would love to help.