Old Rectory Close, Harpenden, AL5 2UD

Sale Agreed
Guide price of £585,000
Bedrooms
3
Bathrooms
2
Receptions
2
Council Tax:
E
EPC:
D
Freehold

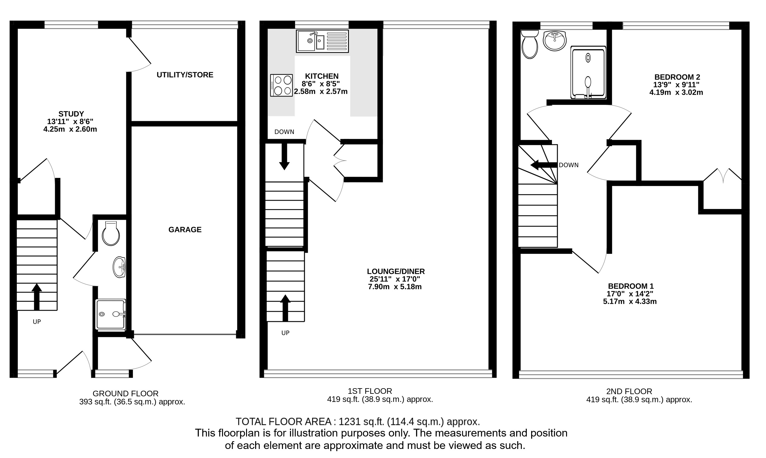
Vacant possession. A bright and airy town house in need of some modernisation but level walk of Harpenden High Street and railway station.

This spacious terraced home is located within an extremely popular position just a few minutes’ walk to the High Street and offered with vacant possession.
In need of some modernisation, the spacious accommodation comprises, on the ground floor, a reception room/bedroom three, shower room and storage/utility room has space and plumbing for washing machine and dryer.
On the first floor, the double aspect lounge/dining room boasts views both front and rear to the well kept communal gardens, and fitted kitchen with built in appliances to include and electric oven and hob, plumbing for an automatic dishwasher and brand new wall mounted boiler.
Stairs lead to the second floor where there are two very good sized bedrooms and family shower room.
Outside is driveway parking leading to the integral garage which has light, power and up and over door.

Old Rectory Close is a peaceful yet central location providing a quiet retreat close to all the central amenities and excellent schools. Harpenden Town centre with its fine range of shops and restaurants is only a short level walk away as is the mainline station providing access into central London in around 30 minutes.

Council Tax Band E: £2,863.15 (2025/26)

Buyers Information:
In compliance with the UK's Anti Money Laundering (AML) regulations, we are required to confirm the identity of all prospective buyers at the point of an offer being accepted and use a third party, Identity Verification System to do so. There is a nominal charge of £48 (per person) including VAT for this service. For more information, please refer to the terms and conditions section of our website.

Whether you’re looking to
  • buy
  • sell
  • rent
  • let
  • buy
we would love to help.