Kennel Lane, Kinsbourne Green, Harpenden, AL5 3PZ

Sale Agreed
Guide price of £1,350,000
Bedrooms
3
Bathrooms
3
Receptions
2
Council Tax:
G
EPC:
A

A stunning, ultra-low-energy home to Passive House Plus standard in Harpenden, offering stylish, sustainable living with panoramic views, flexible space, and local amenities.

Brambles is an ultra-low energy, A rated, contemporary home designed to provide a healthy and sustainable living environment that is Passive House Plus registered with the Passive House Institute. This detached, two-storey property combines modern architecture with exceptional energy efficiency, offering a comfortable and stylish lifestyle for its occupants. https://www.passivhaustrust.org.uk/news/detail/?nId=1134

The main entrance welcomes you, from a sheltered southeast-facing forecourt, bordered by a perimeter fence and hedge and mature trees. The property enjoys panoramic southwest-facing views from both the ground level living spaces and upper floor bedrooms and sitting room, providing an abundance of natural light throughout.

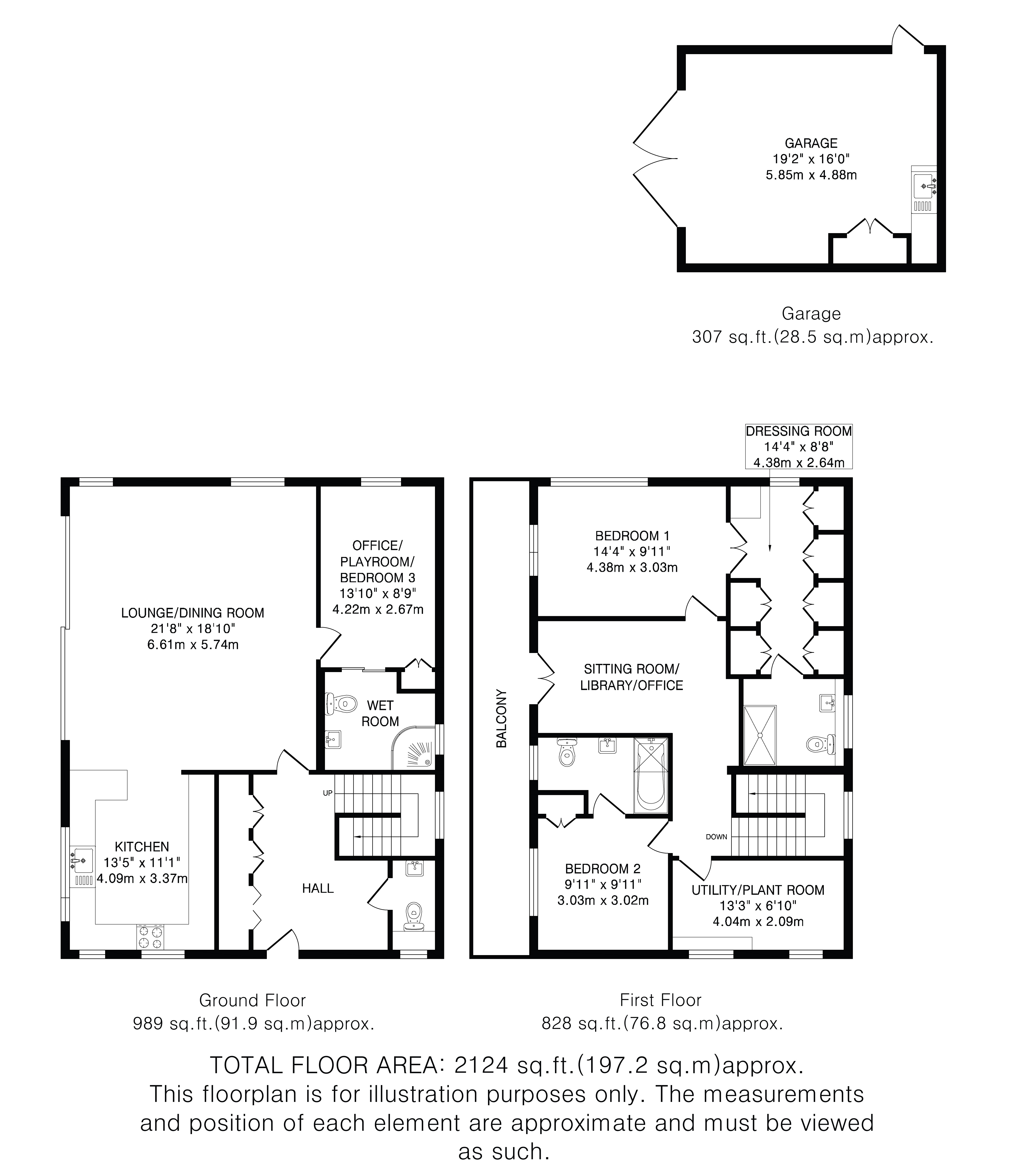
The ground floor comprises a generous entrance area, cloakroom , and storage space, along with an open-plan kitchen, dining, and lounge area. Off the lounge is a multi-function room for optional use as a bedroom/playroom/office, with an ensuite, contemporary wet room, creating a practical and versatile living layout. The upper floor features two further bedrooms each with ensuite bathroom, a utility/plant room, and a sitting room with access to the balcony, offering flexible accommodation for family life.

Externally, the southwest-facing garden includes a level lawn beside a small wood and overlooking rolling farmland, extending as far as the eye can see. The garden façade is predominantly glazed, featuring large, triple-glazed windows and a balcony that seamlessly connects the interior spaces with the picturesque outdoor surroundings.

Lighting, shading, heating, access and security are managed by smart home technology. Rainwater is harvested to an 8000 litre underwater tank for greywater use. EV charger is fitted. Brambles is a 4 minute drive to M1/J9.

Located in Kinsbourne Green right on the edge of Harpenden, this stunning eco-home benefits from the proximity of its picturesque town centre alongside a rural setting characterised by a blend of substantial individually crafted homes and picturesque countryside.

Kinsbourne Green is an ideal location to enjoy the riches of Harpenden's outstanding schooling; the renowned Wood End JMI and Roundwood Park schools are both within a short distance.

Harpenden is high on the list of Hertfordshire's best places to live. Its wide high street is well stocked with restaurants, cafes and pubs, and the town centre has a mix of independent shops, several supermarkets including Waitrose, and a regular farmers' market. There are thriving rugby, cricket, tennis, youth football and golf clubs, a new leisure centre with swimming pools and a newly built theatre.

Its 'jewels in the crown' are its large common close to the high street that hosts cricket matches, community events including a summer carnival, the much-loved Classics on the Common car show, and the funfair and circus when they come to town; and Rothamsted Park that hosts the annual Highland Gathering charity event, has various children’s playgrounds and community spaces.

Council Tax Payable: £3,904.28 (2025/26)
Buyers Information:
In compliance with the UK's Anti Money Laundering (AML) regulations, we are required to confirm the identity of all prospective buyers at the point of an offer being accepted and use a third party, Identity Verification System to do so. There is a nominal charge of £48 (per person) including VAT for this service. For more information, please refer to the terms and conditions section of our website.

Whether you’re looking to
  • buy
  • sell
  • rent
  • let
  • buy
we would love to help.