Meadow Walk, Harpenden, AL5 5TF

Guide price of £1,200,000
Bedrooms
4
Bathrooms
2
Receptions
2
Council Tax:
F
EPC:
D

Rarely available 4-bed detached chalet bungalow, with high quality finish, spacious living, landscaped garden, driveway & garage, in a quiet, sought-after location.

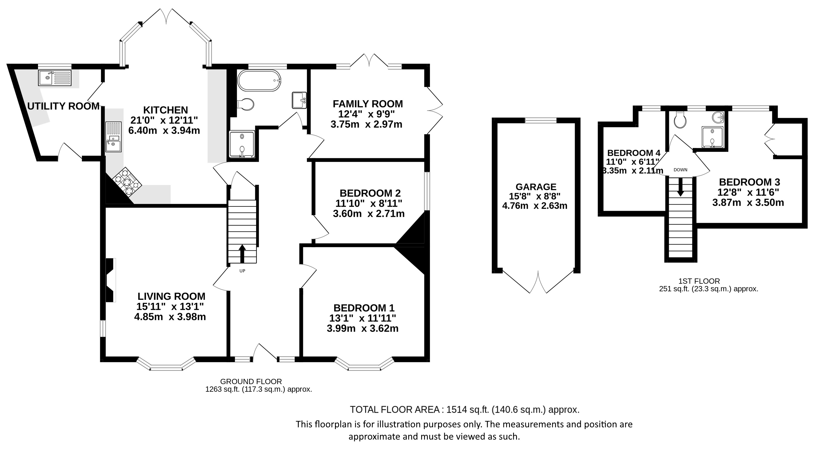
This beautifully presented four-bedroom extended detached chalet-style bungalow, originally built in 1932, combines charming character with high-quality modern finishes, creating a superb family home finished to an exacting standard throughout.

The property offers well-balanced and versatile accommodation, with the ground floor featuring a welcoming entrance hall leading to a spacious living room with an attractive bay window, and a generously sized kitchen/breakfast room that forms the heart of the home. The kitchen is thoughtfully designed with ample workspace and flows seamlessly into a separate utility room. A bright and comfortable family room overlooks the manicured rear gardens. Also on the ground floor are two well-proportioned bedrooms and a stylish bathroom suite, offering flexibility for guests or home working.

To the first floor, there are two further bedrooms, including a particularly spacious principal bedroom, along with an additional bathroom.

Externally, the property is equally impressive. The beautifully landscaped and notably wide rear garden provides a tranquil outdoor setting, ideal for relaxation and entertaining, with well-maintained lawns, mature planting, and patio areas. To the front, a pretty garden enhances the home’s kerb appeal, while a driveway provides off-road parking and leads to a detached garage.

This is a rare opportunity to acquire a characterful yet contemporary home in a sought-after setting, offering generous living space both inside and out.

Meadow Walk is a characterful street of varied housing stock predominately built during the 1920's and 1930's but with a few 1950's homes as well. The peaceful setting with its proximity to quality schools make this an ideal setting for young families or downsizers. Southdown's shopping facilities, pubs and restaurants are within a short stroll and Harpenden's rail-line is approximately a mile away. For those that enjoy the outdoors Harpenden Common is just a short stroll away.

Council Tax Payable: £3,550.70 (2026/2027)
Buyers Information:
In compliance with the UK's Anti Money Laundering (AML) regulations, we are required to confirm the identity of all prospective buyers at the point of an offer being accepted and use a third party, Identity Verification System to do so. There is a nominal charge of £48 (per person) including VAT for this service. For more information, please refer to the terms and conditions section of our website.

Whether you’re looking to
  • buy
  • sell
  • rent
  • let
  • buy
we would love to help.