Haddon Court, Shakespeare Road, Harpenden, AL5 5NB

Sale Agreed
Guide price of £745,000
Bedrooms
3
Bathrooms
2
Receptions
2
Council Tax:
E
EPC:
D

Beautifully presented three-bedroom family home, ideally located near Harpenden High Street, the station, and within walking distance of outstanding local schools.

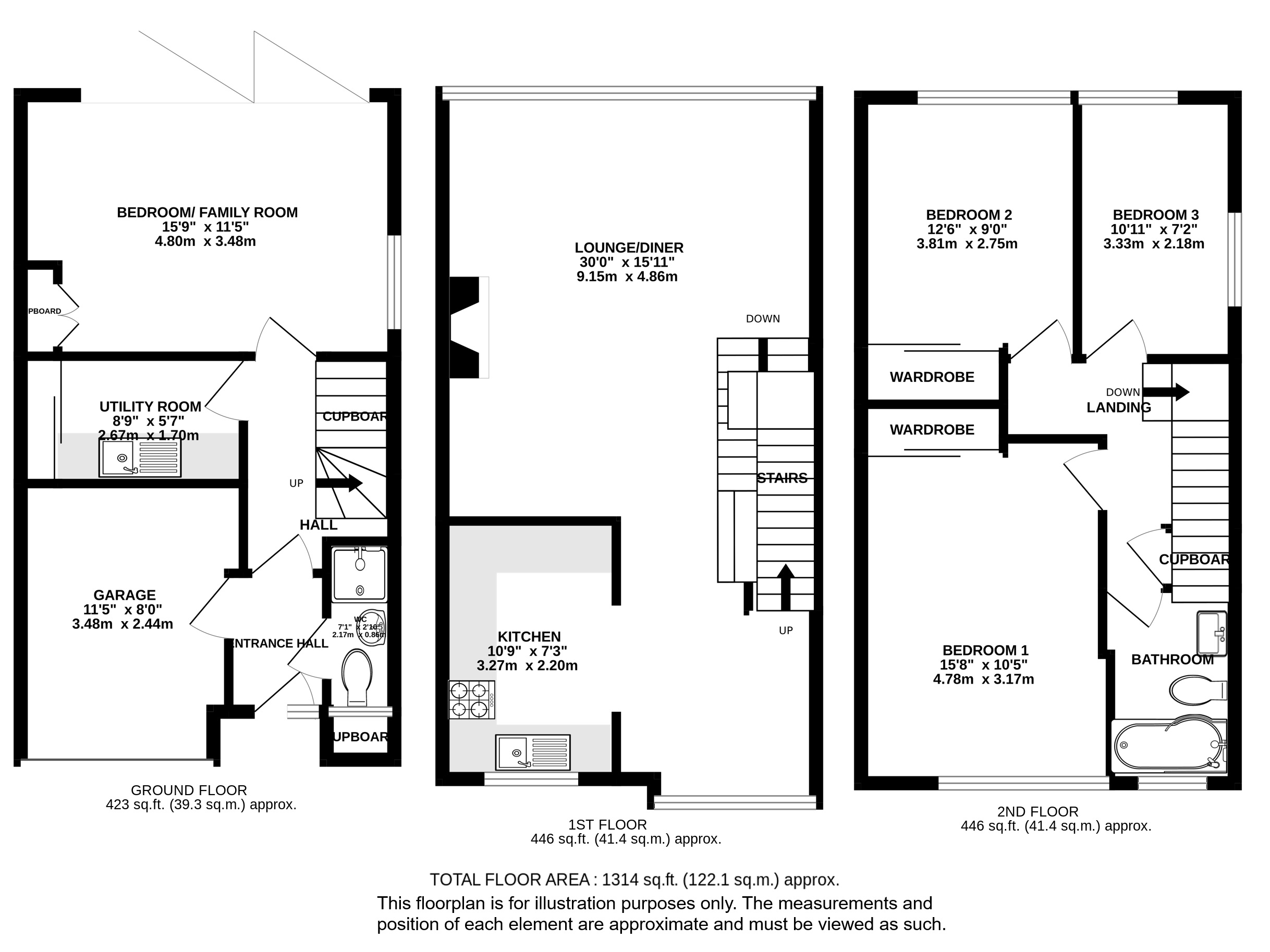
Perfectly positioned near Harpenden station and High Street, this well-presented townhouse offers generous and versatile living space.
The ground floor features an entrance hall, integral garage, utility room, and a study/bedroom four.
On the first floor, a spacious living room flows into the dining area and a well-appointed kitchen. Upstairs, there are three good-sized bedrooms and a family bathroom.
Outside, there is driveway parking, with an EV charging point and a private paved area with direct access to the communal gardens of Haddon Court, providing ample outdoor space without the upkeep.
A wonderful home offering both comfort and convenience.

Haddon Court is a highly sought-after and peaceful development set within attractive leafy grounds, close to excellent local schools. Just a five minute walk from Harpenden town centre, it offers easy access to a superb range of shops, restaurants, and the mainline station, with direct links to central London in around 30 minutes.

Buyers Information:
In compliance with the UK's Anti Money Laundering (AML) regulations, we are required to confirm the identity of all prospective buyers at the point of an offer being accepted and use a third party, Identity Verification System to do so. There is a nominal charge of £48 (per person) including VAT for this service. For more information, please refer to the terms and conditions section of our website.

Whether you’re looking to
  • buy
  • sell
  • rent
  • let
  • buy
we would love to help.