Harpenden Rise, Harpenden, AL5 3BQ

Guide price of £1,200,000
Bedrooms
4
Bathrooms
3
Receptions
2
Council Tax:
E
EPC:
D
Freehold

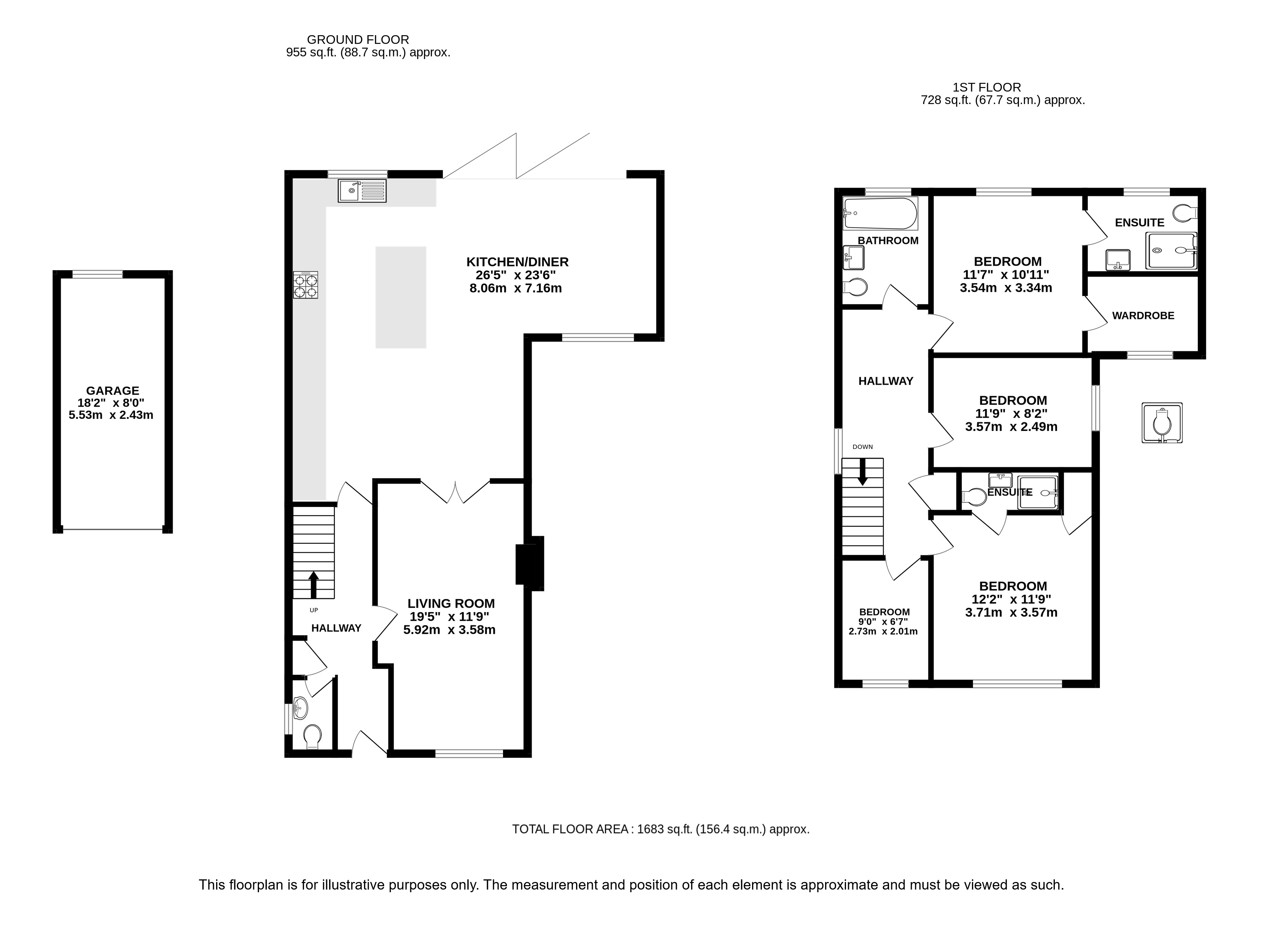
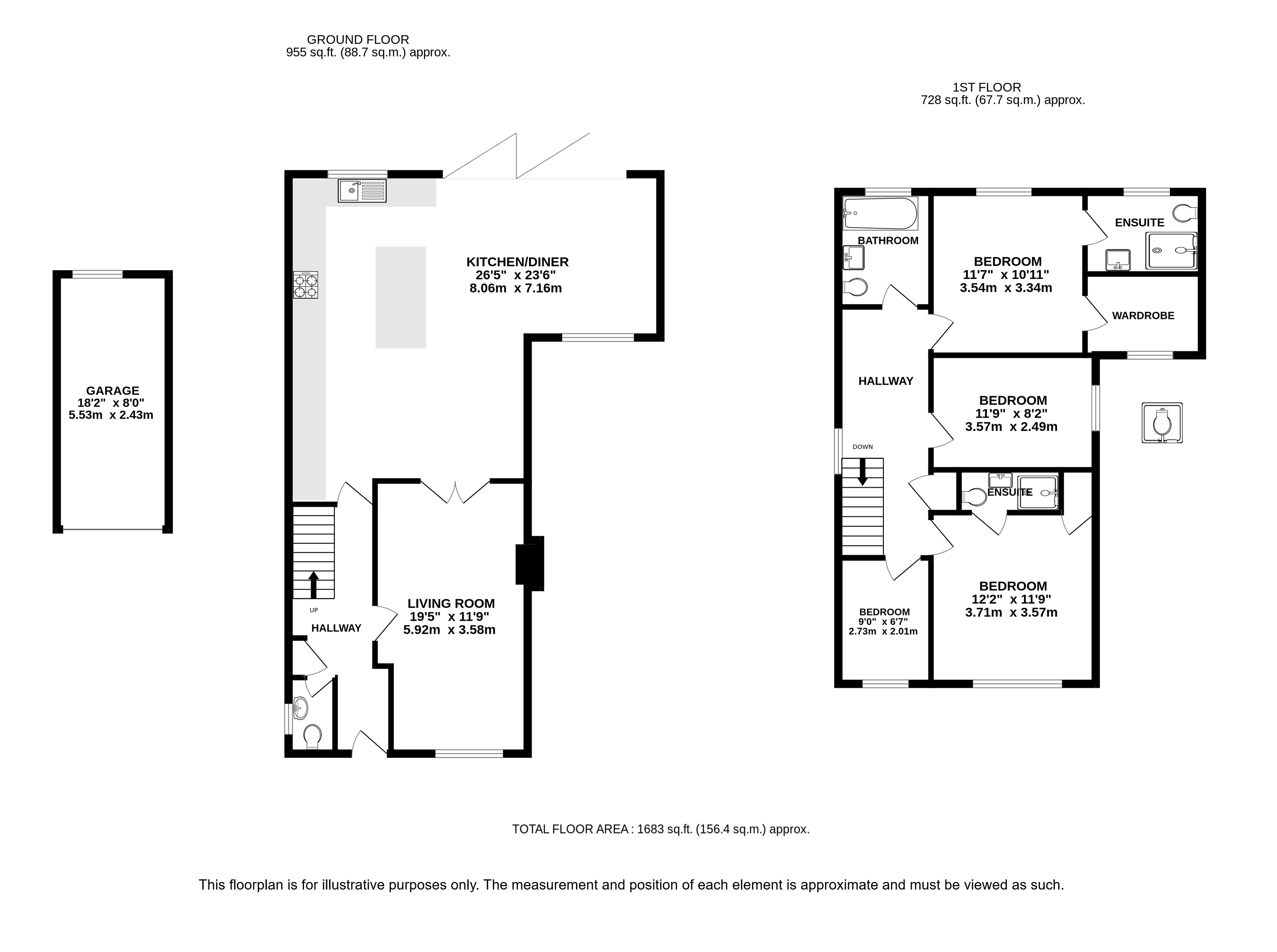
An immaculately presented four bedroom family home which has been hugely extended and fully refurbished to the highest standard.

Offered with Vacant Possession, this exquisite detached family home has been the subject of considerable improvements by the present Vendors. Extended and completely refurbished throughout, this stunning property offers magnificent accommodation to include a glorious principal bedroom suite with walk-in wardrobe and en-suite double shower room, a guest bedroom with en-suite shower room and two further bedrooms.

The ground floor boasts engineered Oak flooring throughout and a wonderful frontal aspect sitting room and cloakroom.

The breath-taking fully fitted kitchen/family room has a number of built-in appliances, including an integrated induction hob, eye level oven, microwave, dishwasher and American fridge/freezer. Bi-fold doors allows access to the secluded rear garden which is laid mostly to lawn and surrounded by gravelled borders with entertaining areas.

There is also a single garage/storage unit which has light, power and up-and-over door.

Harpenden Rise enjoys a peaceful and attractive setting, close to the vibrant heart of Harpenden Town Centre, where you'll find a delightful selection of shops, cafés, pubs and restaurants. For commuters, Harpenden Station is conveniently situated approximately a mile away, offering direct services into central London in under 30 minutes. Families will appreciate the proximity to excellent schooling to include the highly regarded Roundwood Park School.

Council Tax Band E: £2,883.39 (2025/26)

Buyers Information:
In compliance with the UK's Anti Money Laundering (AML) regulations, we are required to confirm the identity of all prospective buyers at the point of an offer being accepted and use a third party, Identity Verification System to do so. There is a nominal charge of £48 (per person) including VAT for this service. For more information, please refer to the terms and conditions section of our website.

Whether you’re looking to
  • buy
  • sell
  • rent
  • let
  • buy
we would love to help.