Station Road, Harpenden, Hertfordshire, AL5 4UJ

£2,100 PCM
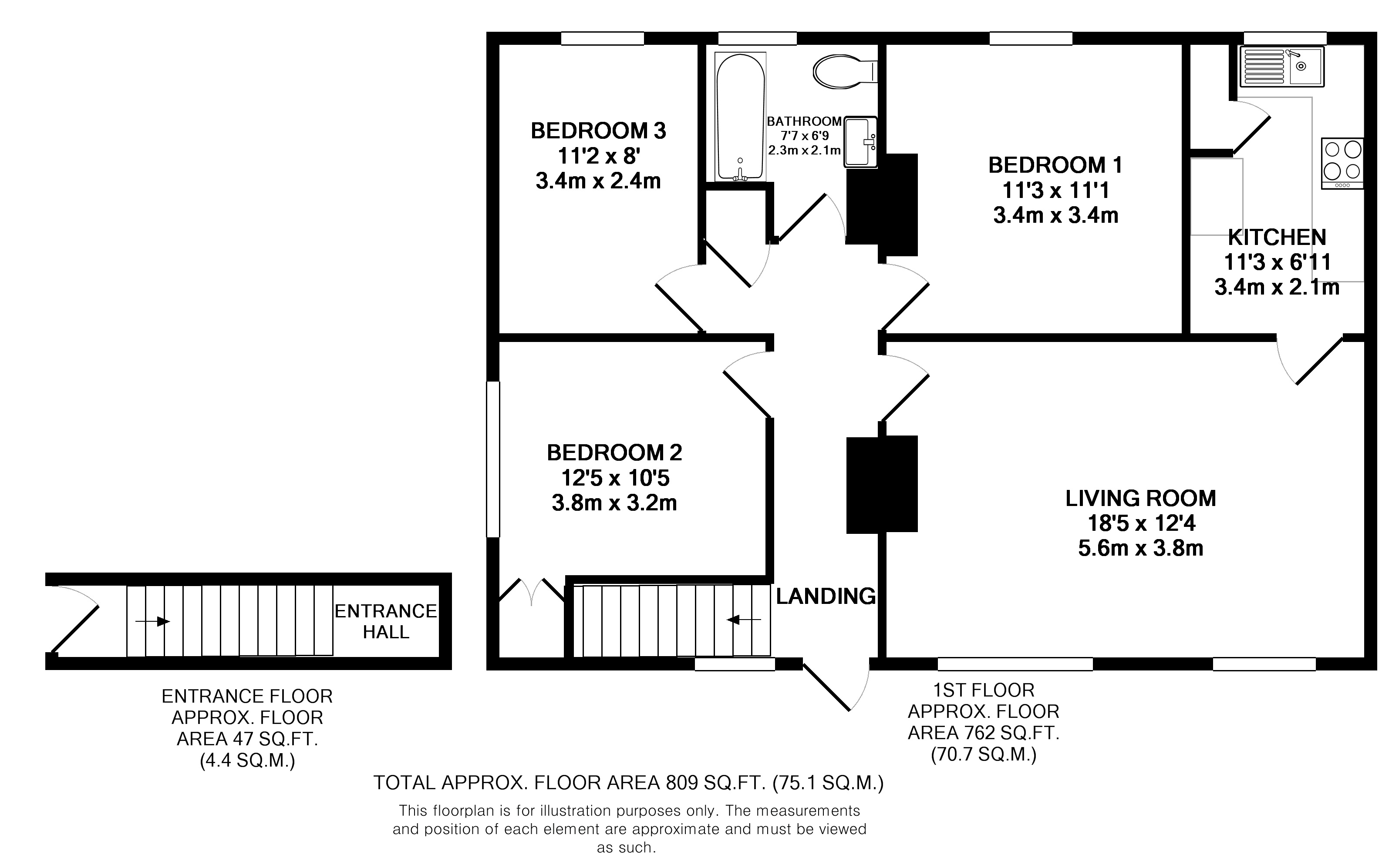
Bedrooms
3
Bathrooms
1
Receptions
1
Council Tax:
C
EPC:
D

A three bedroom maisonette in a convenient location above a small parade of shops within 15 minutes' walk of Harpenden mainline station and town centre

Spacious three-bedroom maisonette with its own private entrance and carpeted stairs leading to the landing area. The lounge features wooden flooring and offers views over Batford Springs.
The modern kitchen is well-equipped with ample worktop space and appliances, including a gas hob, electric oven, dishwasher, and washing machine.

There are three well-proportioned bedrooms, along with a modern bathroom fitted with a shower over the bath. The property benefits from double glazing and gas central heating. Residents’ parking is available to the rear.

Station Road is a wonderful setting, less than a mile from Harpenden station and the leafy Victorian High Street. The road offers an array of characterful homes, situated close to local schools and a variety of shops, pubs and restaurants nearby. The property also enjoys magnificent views over the Lea Valley Nature Reserve.

Council Tax Band:
Council Tax Payable: £
Holding Deposit: £484.61
Total Deposit: £2,423.07

Whether you’re looking to
  • buy
  • sell
  • rent
  • let
  • buy
we would love to help.