Clayton House, 5-7 Vaughan Road, Harpenden, AL5 4EF

£1,950 PCM
Bedrooms
2
Bathrooms
2
Receptions
1
Council Tax:
C
EPC:
C

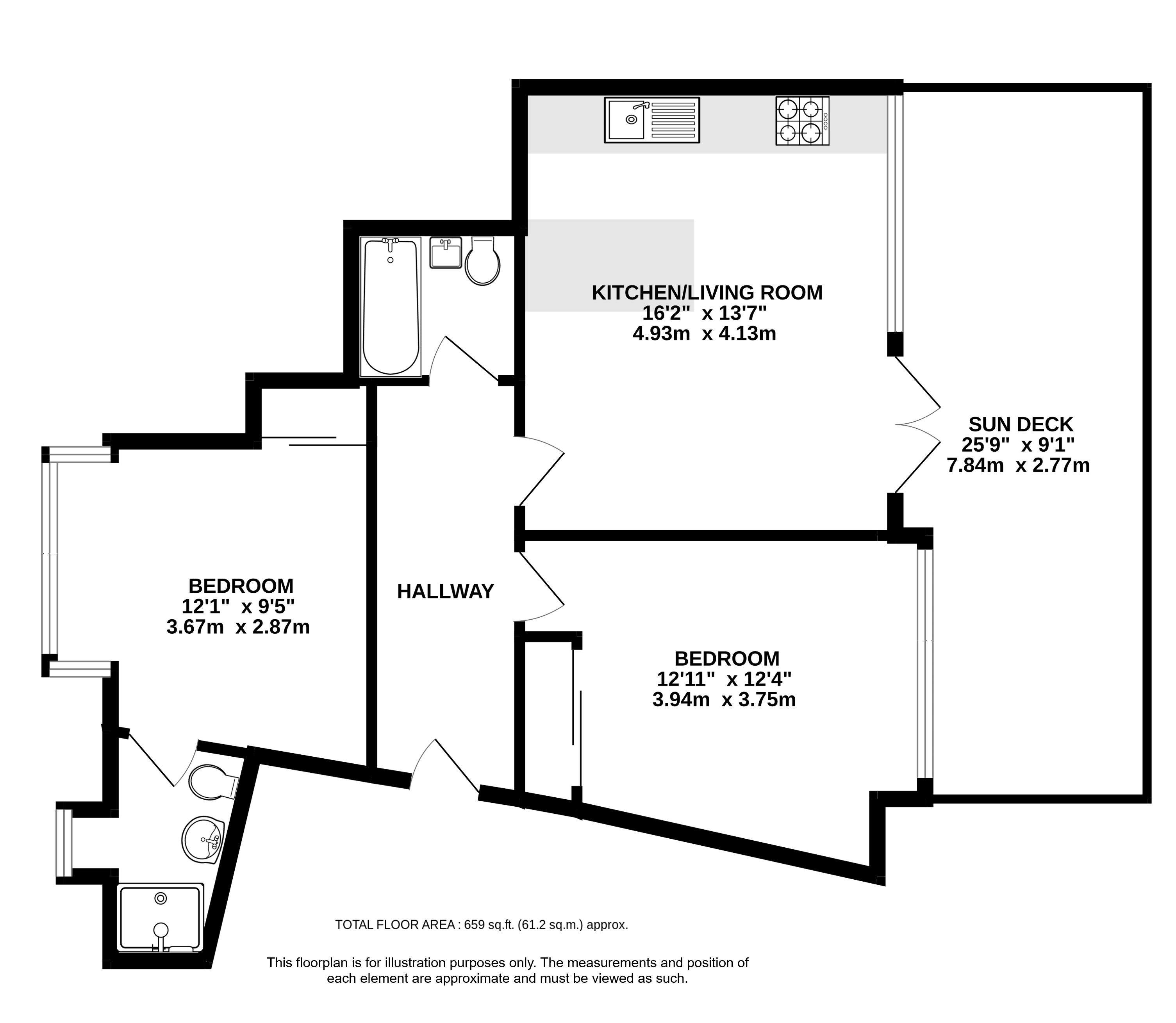
Modern two-bedroom, two bathroom apartment with parking and allocated parking.

A well-presented apartment in a central development with the benefit of a large private balcony and allocated parking.

The accommodation comprises two bedrooms, including a principal bedroom with en-suite shower room, and a separate family bathroom with shower. The reception area is arranged as an open-plan living, dining and kitchen space. The modern kitchen is fully fitted with integrated appliances, including a dishwasher, washing machine, fridge-freezer and microwave. Double doors provide access to the private balcony and offer lots of light.

Vaughan Road is situated in the very heart of Harpenden's leafy Victorian centre. The central setting provides a wonderful convenience for life. Close to the charming assortment of boutique shops and restaurants that Harpenden has to offer the appartment is just moments walk from the station (Direct to St Pancras International in under 25 minutes) and is within minutes walk of both St Georges secondary school and St Nicholas' primary. For open spaces few towns rival Harpenden and 'The Common' with its golf course and cricket club is a short stroll away and the facilities of Rothamsted Park with its leisure complex, park and swimming pool are also nearby.

Council Tax Band:
Council Tax Payable: £
Holding Deposit: £450
Total Deposit: £2,250

Whether you’re looking to
  • buy
  • sell
  • rent
  • let
  • buy
we would love to help.