Borodale, Kirkwick Avenue, Harpenden, AL5 2QW

£2,750 PCM
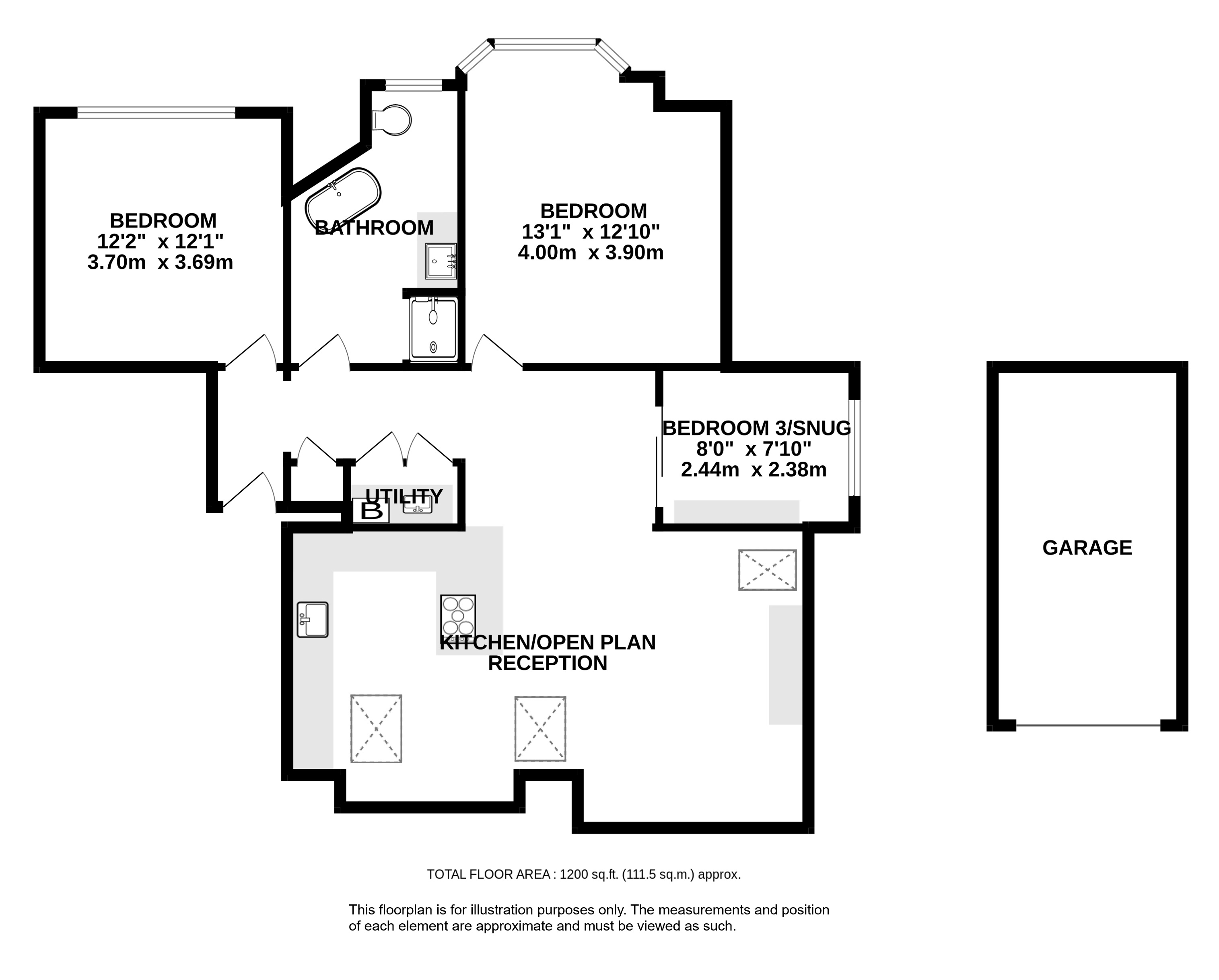
Bedrooms
2
Bathrooms
1
Receptions
2
Council Tax:
E
EPC:
C

Stylish, high-spec two-bedroom apartment with open-plan living, luxury bathroom and garage, set in a central location with lift access.

This beautifully refurbished apartment has been finished to a high standard, offering stylish and well-considered living throughout. The accommodation includes a communal entrance hall with both lift and stair access.

Inside, the apartment opens into a generous entrance hall. The main living space has been thoughtfully reconfigured to create an open-plan kitchen, dining, and living area. The kitchen features a high-specification finish with Miele appliances, a bespoke pantry, and ample space for dining.

Additional features include a cleverly integrated utility cupboard, two well-proportioned bedrooms, and a sleek four-piece bathroom complete with a walk-in shower and freestanding bath bringing a touch of luxury.

Externally, the property benefits from a garage, visitor parking, and well-kept communal gardens. Set in a central location, this apartment offers both convenience and a pleasant living environment.

The apartment is offered part furnished.

Kirkwick Avenue is an enviable location situated in the heart of Harpenden's renowned 'Avenues'. The road is characterised by a quality and aesthetic appeal that mixes the buildings of the Edwardian Era with a blend of some quality work from later building periods. The wide road and peaceful environment are complimented by a wonderful convenience for living; Rothamsted Park is within a short stroll of the front door and the High Street and station (direct to St Pancras International in 25 minutes) are both less than half a mile away.

Council Tax Band E: £2,863.15 (2025-2026)

Council Tax Band:
Council Tax Payable: £2,863.15
Holding Deposit: £669.23
Total Deposit: £3,173.07

Whether you’re looking to
  • buy
  • sell
  • rent
  • let
  • buy
we would love to help.