Milton Road, Harpenden, Hertfordshire, AL5 5NA

£2,650 PCM
Bedrooms
3
Bathrooms
1
Receptions
2
Council Tax:
E
EPC:
D

A beautifully presented three bedroom family home with two reception rooms, garden and walking distance to central Harpenden.

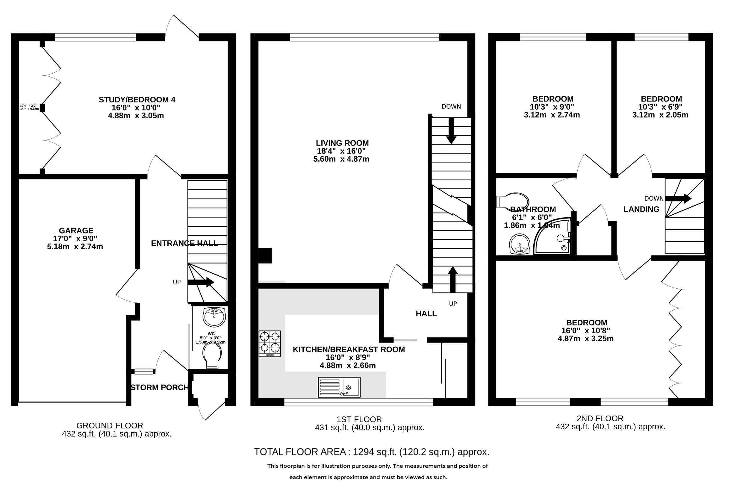
A beautifully presented, light-filled three-bedroom mid-terraced family home. Arranged over three floors, the property offers well-balanced and flexible living space. The ground floor features a spacious entrance hall, a cloakroom, and an integral garage. To the rear, is a versatile family room with storage and opens via double doors onto a courtyard garden, with access to a peaceful and well-maintained communal garden beyond.

On the first floor, there is a bright and generously sized lounge, alongside a separate, newly fitted kitchen complete with integrated appliances, ample cupboard and worktop space, and a useful larder.

The top floor comprises three well-proportioned bedrooms. The principal bedroom spans the full width of the front of the property and benefits from fitted wardrobes, while two further good-sized bedrooms are positioned at the rear, enjoying views over the garden. A modern family bathroom with a shower cubicle completes this level.

The home is well maintained throughout, featuring high ceilings and roof windows that enhance the bright and airy feel.

Externally, the property offers a driveway to the front providing parking for two vehicles, along with an EV charging point.

Haddon Court is a peaceful and sought after development set within leafy grounds and close to extremely popular schooling.

Harpenden town centre is within a few minutes’ walk and offers a wide range of shops and restaurants, as is the mainline railway station providing access into central London in around thirty minutes.

Council Tax Band:
Council Tax Payable: £3,004.44
Holding Deposit: £611.53
Total Deposit: £3,058

Whether you’re looking to
  • buy
  • sell
  • rent
  • let
  • buy
we would love to help.