St. James Road, Harpenden, Hertfordshire, AL5 4PB

Let Agreed
£2,350 PCM
Bedrooms
4
Bathrooms
1
Receptions
1
Council Tax:
E
EPC:
D

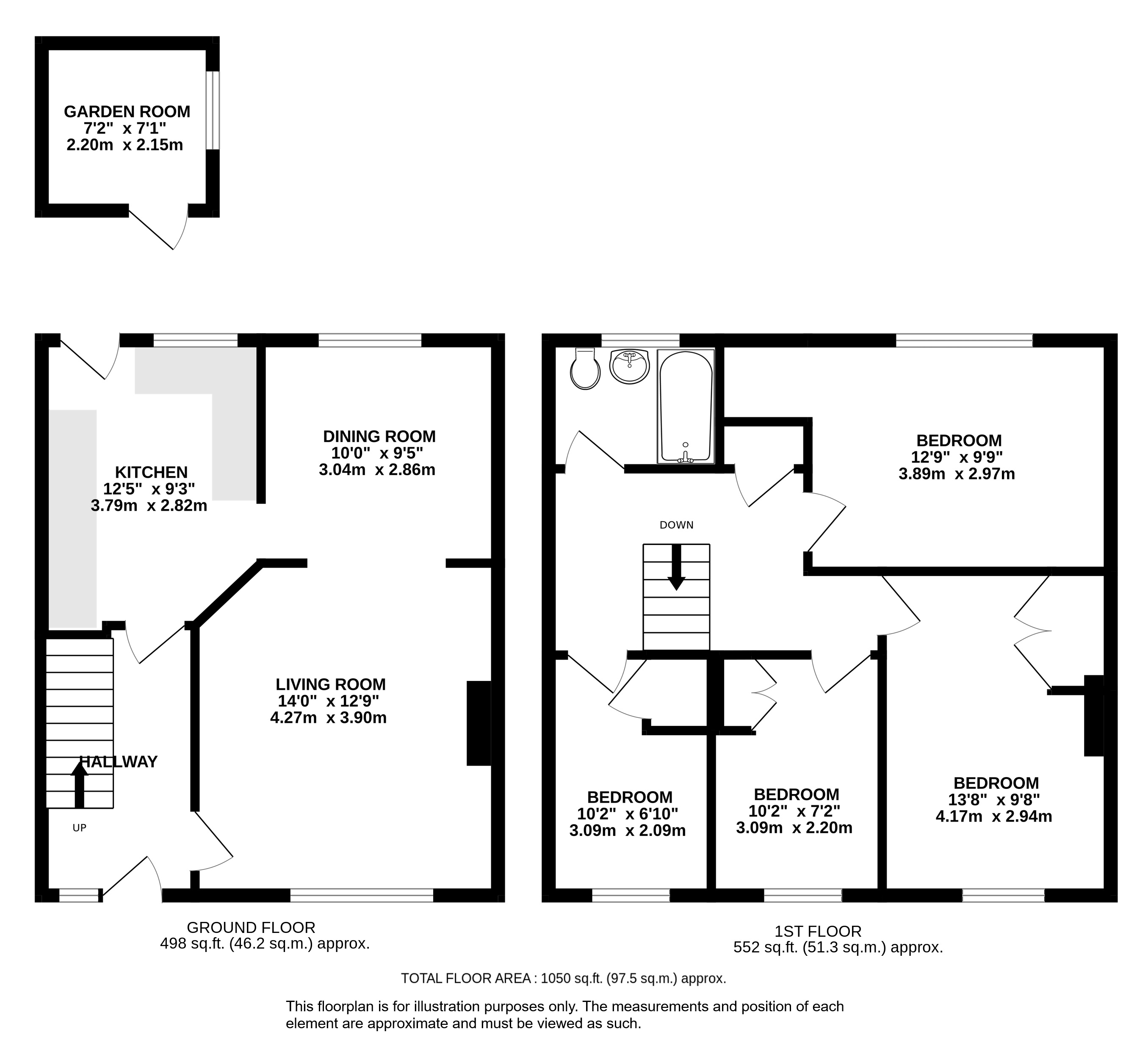
A four bedroom terraced house with good sized secluded mature garden with off street parking in a sought after residential location close to the best schools. Available now

A four bedroom family house with a lovely mature garden which has a gate through to the local park. With gas central heating and double glazing throughout, the accommodation comprises entrance hall leading to a large through reception room all having laminate flooring. The kitchen has modern units, washing machine, fridge and cooker. The back door leads to two brick built outhouses, workshop and outside w.c. On the first floor are three double bedrooms, a good size single and family bathroom with shower. To the front of the property there is off road parking.

Council Tax Band E £2,725.00 24/25

St. James Road is a peaceful road in the Ox Lane area. Situated close to the excellent Sir John Lawes and St Georges secondary schools and approximately a mile from Harpenden station the location is superb. The pleasant road is ideal for family life and presents a quiet and safe environment with fine country walks and parks just a short stroll from the house.

Council Tax Band: E
Council Tax Payable: £
Holding Deposit: £542.31
Total Deposit: £2,711.54

Whether you’re looking to
  • buy
  • sell
  • rent
  • let
  • buy
we would love to help.