High Street, Redbourn, St. Albans, AL3 7LJ

£1,750 PCM
Bedrooms
2
Bathrooms
1
Receptions
2
Council Tax:
C
EPC:
D

Situated in the heart of Redbourn this charming cottage is full of character and comes with a beautiful garden and parking.

A Grade II listed property, in a fantastic location with a beautiful garden and parking.

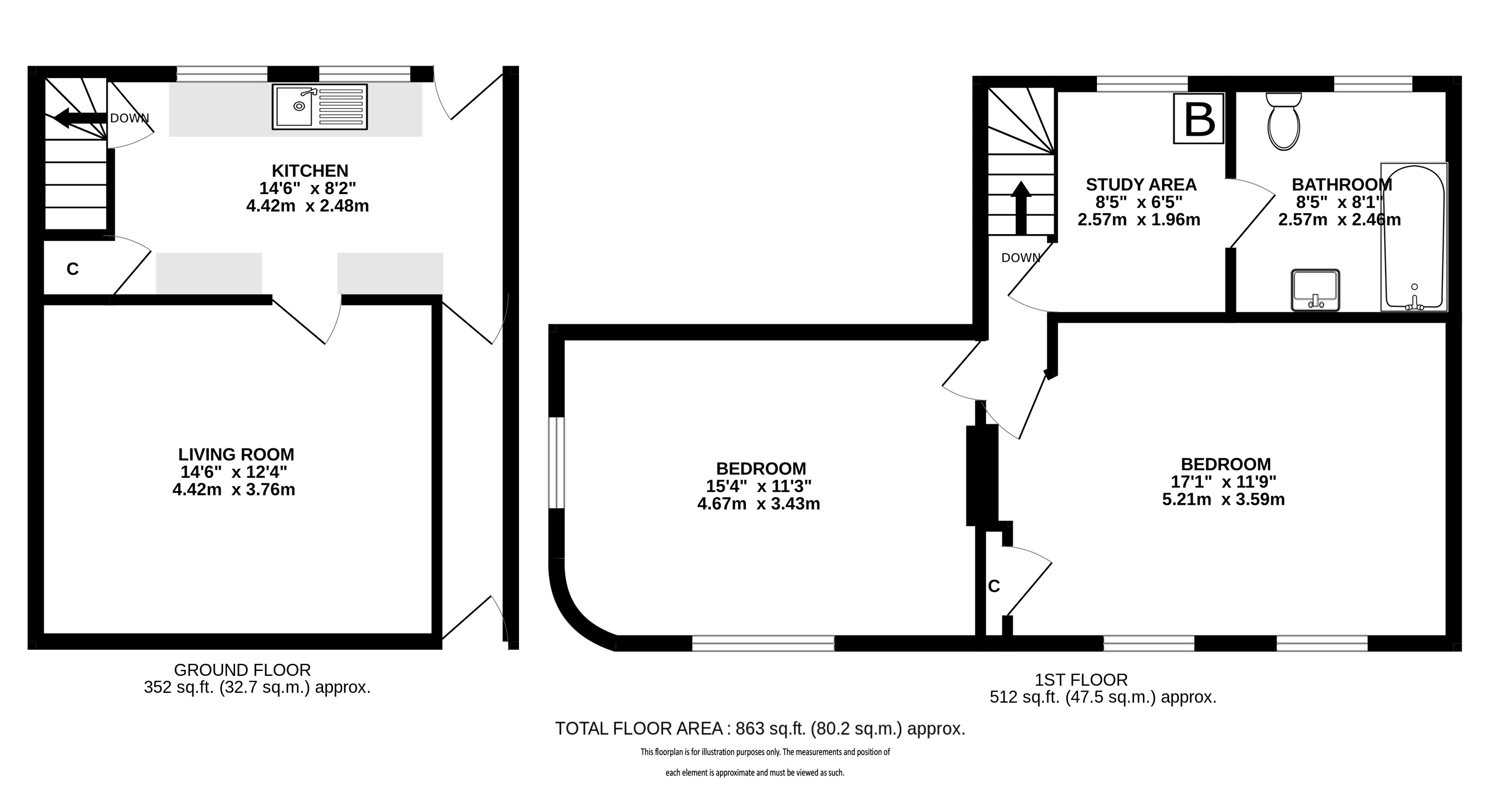
The property consists of entrance hall, kitchen with appliances, and a reception with views down the High Street.

Upstairs you have two double bedrooms, a study and a family bathroom.

There is a beautiful garden to the side of the property, a parking space.

Please note there is a separate toilet in the Courtyard which is used by the shop tenant next door.

EPC rating D
Council Tax band C with St Albans

Located on a prominent corner site in Redbourn High Street and close to the Common. Redbourn is a popular and thriving village with a good range of amenities. A popular location for cyclists and dog walkers, the village is a short drive from both Harpenden and St Albans and is easily accessible to excellent transport links with the M1 and M25 motorway and Luton Airport close by and fast rail links into London from Harpenden and St.Albans.

Council Tax Band:
Council Tax Payable: £2,097.02
Holding Deposit: £403.84
Total Deposit: £2,019.23

Whether you’re looking to
  • buy
  • sell
  • rent
  • let
  • buy
we would love to help.