Oaklea Wood, Welwyn, Hertfordshire, AL6 0PJ

Guide price of £1,400,000
Bedrooms
6
Bathrooms
4
Receptions
5
Council Tax:
H
EPC:
C
Freehold

Exclusive architect-designed gated home in a peaceful cul-de-sac. Three floors of versatile living, six bedrooms, cinema/games room, landscaped gardens & woodland views.

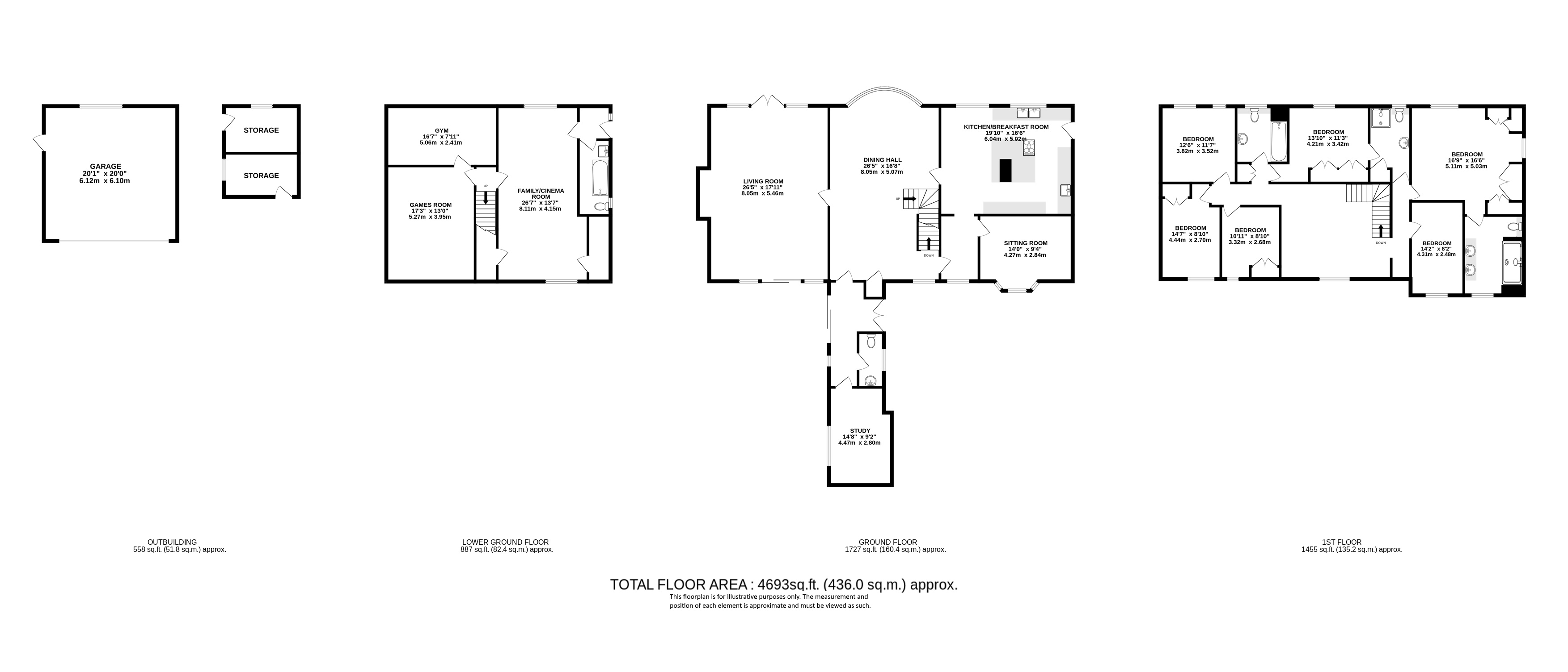
Set within an exclusive gated development of just two properties in a peaceful cul-de-sac, this outstanding detached family home boasts spacious accommodation arranged over three floors.

An inviting reception hall with a bespoke timber staircase leads to a galleried landing and sets the tone for the elegant living spaces. At the front is a study, perfect for those who need to work from home, whilst to the rear, a dining area with an expansive curved window offers uninterrupted views over the gardens. The double-aspect sitting room features a charming inglenook fireplace and doors opening onto both the rear garden and a private walled courtyard with its feature water fountain. The kitchen/breakfast room is fitted with high-quality in-frame shaker units by Smallbone of Devizes, combining style and practicality.

The first floor comprises six bedrooms, including a luxurious principal suite with en-suite facilities and an additional guest bedroom with en-suite shower room, complemented by a family bathroom.

The lower ground floor provides versatile living, ideal for a self-contained annexe if required, and includes a cinema room, games room, gym, and bathroom. Access is available via a side entrance or staircase from the main reception hall.

Externally, secure electric gates open to a block-paved driveway and double garage, offering ample parking. The front gardens are beautifully landscaped with a rockery, ornamental ponds, waterfall, and mature planting, enhanced by decorative lighting. A private walled courtyard accessed from the sitting room features a raised pond and attractive climbing plants,.

The rear garden, measuring approximately 0.4 acres, is enclosed by hedges and bordered by mature trees and shrubs. A patio area provides the perfect space for entertaining, while the expansive lawn offers a tranquil setting that adjoins protected private woodland.

Agents Notes: There is a annual contribution of £250 with a share in the common road of Oaklea Wood.

The property is located in the highly regarded Oaklands area of Welwyn. Oaklands itself benefits from a popular local primary school, a parade of shops for day to day needs and a regular bus service to both Stevenage and Welwyn Garden City town centres. Mainline rail services can be found at either Knebworth, Welwyn North (Digswell - 20 minutes to Kings Cross by fast service) or Welwyn Garden City centres and more extensive leisure, schooling and shopping facilities are situated just a short distance away in Welwyn Garden City and Stevenage.

Council Tax Band H: £4,742.54 (2025-2026)
Service Charge: £0.00 per annum

Buyers Information:
In compliance with the UK's Anti Money Laundering (AML) regulations, we are required to confirm the identity of all prospective buyers at the point of an offer being accepted and use a third party, Identity Verification System to do so. There is a nominal charge of £48 (per person) including VAT for this service. For more information, please refer to the terms and conditions section of our website.

Whether you’re looking to
  • buy
  • sell
  • rent
  • let
  • buy
we would love to help.