Digswell Rise, Welwyn Garden City, Hertfordshire, AL8 7PR

Sale Agreed
Guide price of £315,000
Bedrooms
2
Bathrooms
1
Receptions
1
Council Tax:
D
EPC:
C

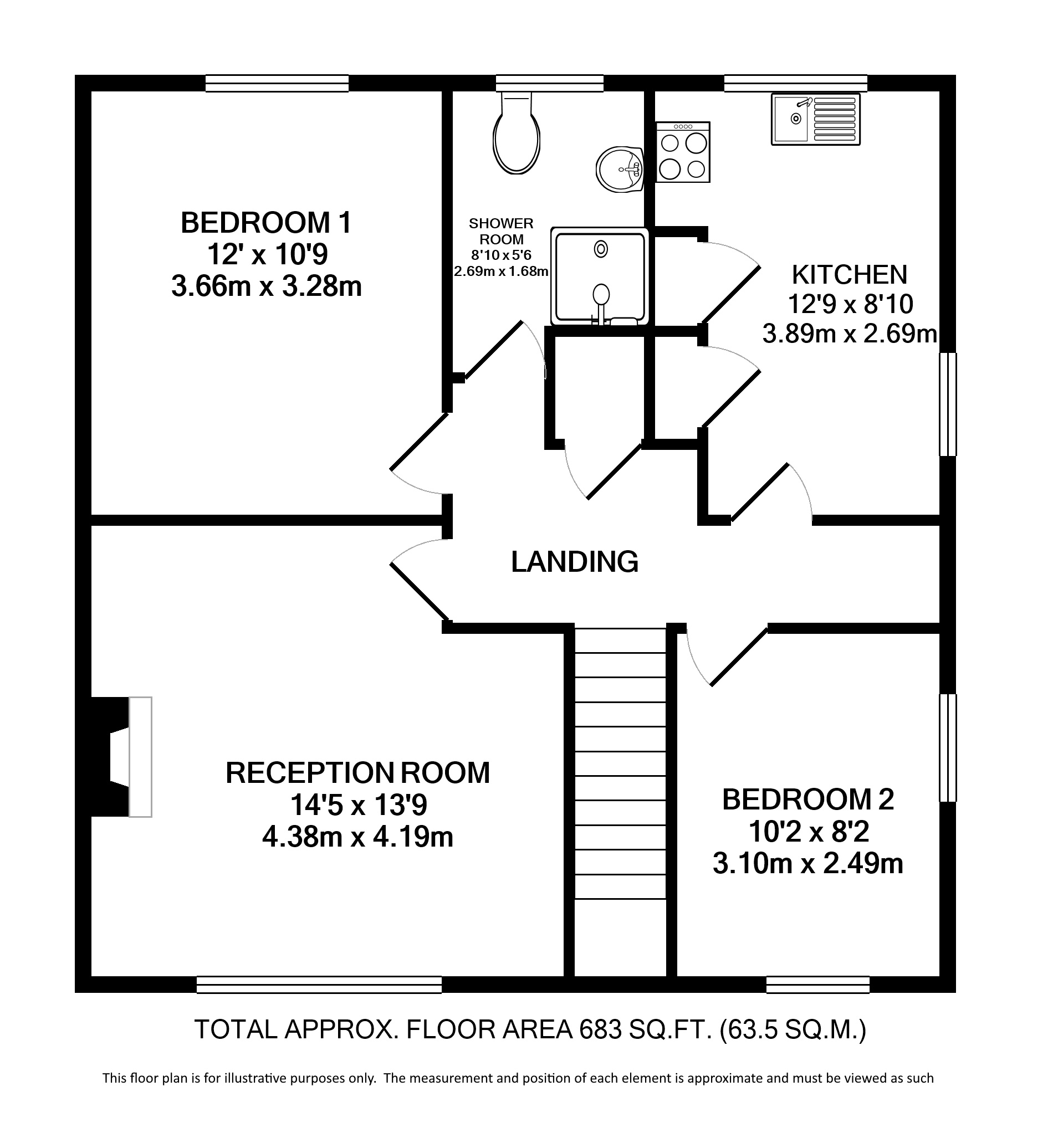
Being offered chain free is this two bedroom first floor maisonette, just a short walk from the town centre, sought after schooling and mainline station.

Being sold with a share of the freehold and benefiting from communal gardens to the front and rear, with your own front door off a quiet cul-de-sac is this two bedroom maisonette, which is offered to the market chain free.
Leading off the staircase, the hallway has an airing cupboard and access into the loft which has been partially boarded to provide useful storage. The sitting room is a nice bright space with a large window to the front. To the rear, the kitchen is fitted with a range of storage cupboards with worktops over and offers space for a small dining table.
The two bedrooms are served by a modern shower room. Outside, there is permit parking on the road opposite and attractive and well-kept communal gardens.

Leasehold: 999 years from 1959 / 936 years remaining.
Service Charge: £765.26 pa.

Digswell Court is set on a 'no through road' turning on the West Side of town, providing the perfect balance between a super convenient location all while enjoying quiet surroundings. The town centre's amenities, including mainline rail services, John Lewis and Waitrose are all within a few minutes' level walk and the renowned Templewood Primary School and Monks Walk Secondary School are also situated close by.

Council Tax Band D: £2,291.70 (2025-2026)

Buyers Information:
In compliance with the UK's Anti Money Laundering (AML) regulations, we are required to confirm the identity of all prospective buyers at the point of an offer being accepted and use a third party, Identity Verification System to do so. There is a nominal charge of £48 (per person) including VAT for this service. For more information, please refer to the terms and conditions section of our website.

Whether you’re looking to we would love to help.