London Road, Markyate, St Albans, AL3 8JP

Let Agreed
£1,900 PCM
Bedrooms
3
Bathrooms
1
Receptions
1
Council Tax:
D
EPC:
D

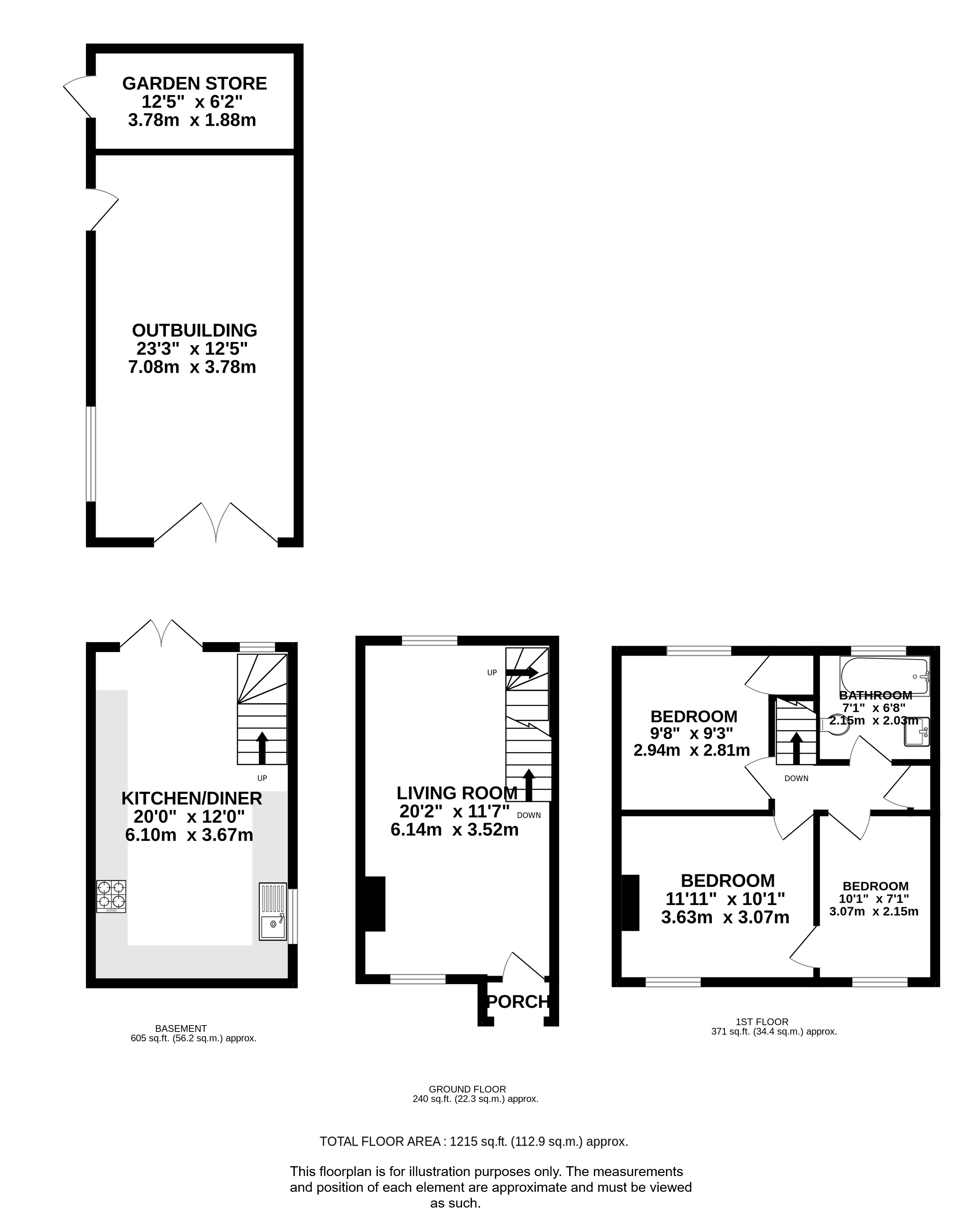
Pretty Three-Bedroom, Three-Storey Semi-Detached Home with Driveway and Garden.

Nestled in a sought-after residential area, this delightful three-bedroom semi-detached home is arranged over three storeys and boasts a private driveway and a beautiful garden.

As you step into the ground floor, you are welcomed by a bright and airy lounge, full of character with its exposed brickwork, original beams, and feature fireplace. A staircase leads down to the spacious, well-equipped kitchen. Complete with integrated appliances, generous cupboard and worktop space, and room for a dining table. Double patio doors open onto the attractive rear garden, which features a patio, lawn, and access to a useful work shed and garden store. This additional space at the end of the driveway is ideal for a workshop or vehicle storage.

The first floor comprises three well-proportioned bedrooms and a family bathroom fitted with a bath and overhead shower.

The property currently contains a few items of furniture, which can be included if desired. Otherwise, it will be offered unfurnished.

The property includes off-street parking for one car on the driveway. Please note, there is a right of access through the garden and alongside the house for the neighbouring property. In addition, ample on-street parking is available.

Located in the heart of the village of Markyate, a picturesque village in Hertfordshire. Conveniently located for the M1 and M25 motorways and Luton Airport with easy access to efficient rail links at nearby Harpenden and St. Albans.

Council Tax Band: D
Council Tax Payable: £
Holding Deposit: £438.46
Total Deposit: £2,192.3

Whether you’re looking to
  • buy
  • sell
  • rent
  • let
  • buy
we would love to help.