Phoenix Walk, Hemel Hempstead, HP2 7RR

Guide price of £685,000
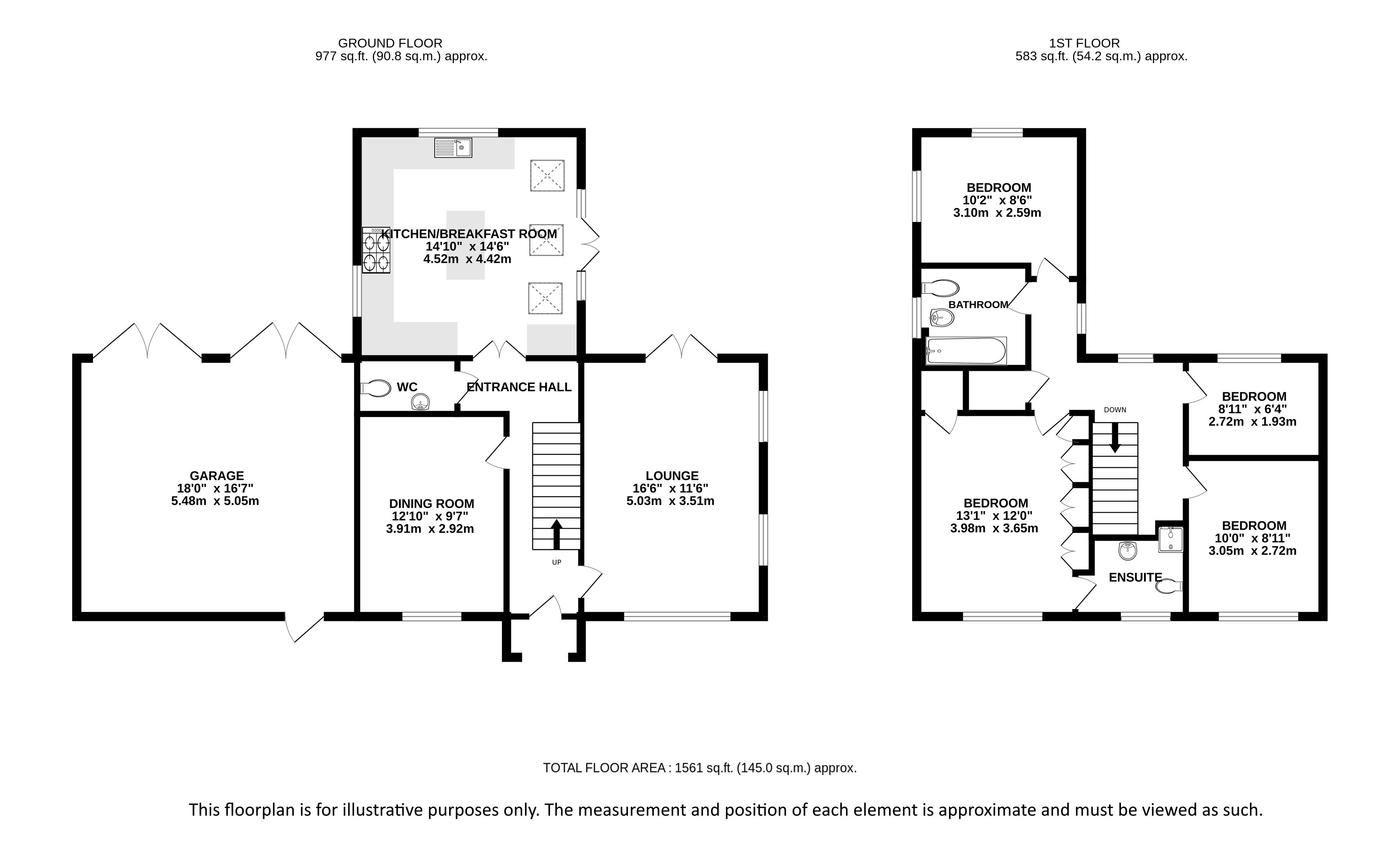
Bedrooms
4
Bathrooms
2
Receptions
2
Council Tax:
F
EPC:
A

Beautifully presented detached four bedroom home with double garage located in a quiet cul-de-sac on the outskirts of Hemel Hempstead.

This excellent detached home offers spacious and light accommodation and has the potential to extend further if desired (subject to the necessary consents). The property is adjacent to a newly established Community Garden which is owned by the Crown Estate and is protected from future developments.

On entering this immaculate home a welcoming hallway leads into both reception rooms, a large dual aspect living room with French doors opening out to the rear garden and an attractive dining room positioned at the front. To the rear of the property is a spacious triple aspect kitchen/breakfast room with Velux windows and French doors flooding the room with natural light. The kitchen was refitted in 2018 with a stylish range of units, central island, eye-level double oven and integrated appliances and there is ample space for a dining table. A guest cloakroom with WC and hand basin completes this level.

Upstairs there are four bedrooms, three doubles and a single. The principal bedroom enjoys an extensive range of fitted wardrobes and a luxurious en-suite shower room. A further modern family bathroom serves the remaining bedrooms.

Particular features of the property include fitted solar panels, reducing the energy costs and Smart energy and heating control systems and a satellite dish for Sky/Freesat with a further terrestrial aerial in the loft. There is also an Electric Vehicle charging point. The double garage also has a useful loft space and there are two parking spaces in front of the garage and an additional space to the side if required.

Outside there are well-maintained gardens to the front, side and rear of the house. The private walled rear garden is mainly laid to lawn with a patio seating area and attractive flower beds. A great space to dine and relax with friends and family.

The property is located on a quiet development on the outskirts of Hemel Hempstead and is just 100 yds from the Nickey Line, which runs between Harpenden and Hemel Hempstead, and is loved by cyclists and dog walkers. Brockswood Primary and Nursery School is just an 8 minute walk away and was given an 'Outstanding' Ofsted in December 2024. Hemel Hempstead offers a wide variety of amenities and fast trains into London Euston for the commuter.

Council Tax Payable: £3,439.79 (2026/27)
In compliance with the UK's Anti Money Laundering (AML) regulations, we are required to confirm the identity of all prospective buyers at the point of an offer being accepted and use a third party, Identity Verification System to do so. There is a nominal charge of £48 (per person) including VAT for this service. For more information, please refer to the terms and conditions section of our website.

Whether you’re looking to
  • buy
  • sell
  • rent
  • let
  • buy
we would love to help.