Old London Road, St. Albans, Hertfordshire, AL1 1QD

£1,500 PCM
Bedrooms
1
Bathrooms
1
Receptions
1
Council Tax:
C
EPC:
D

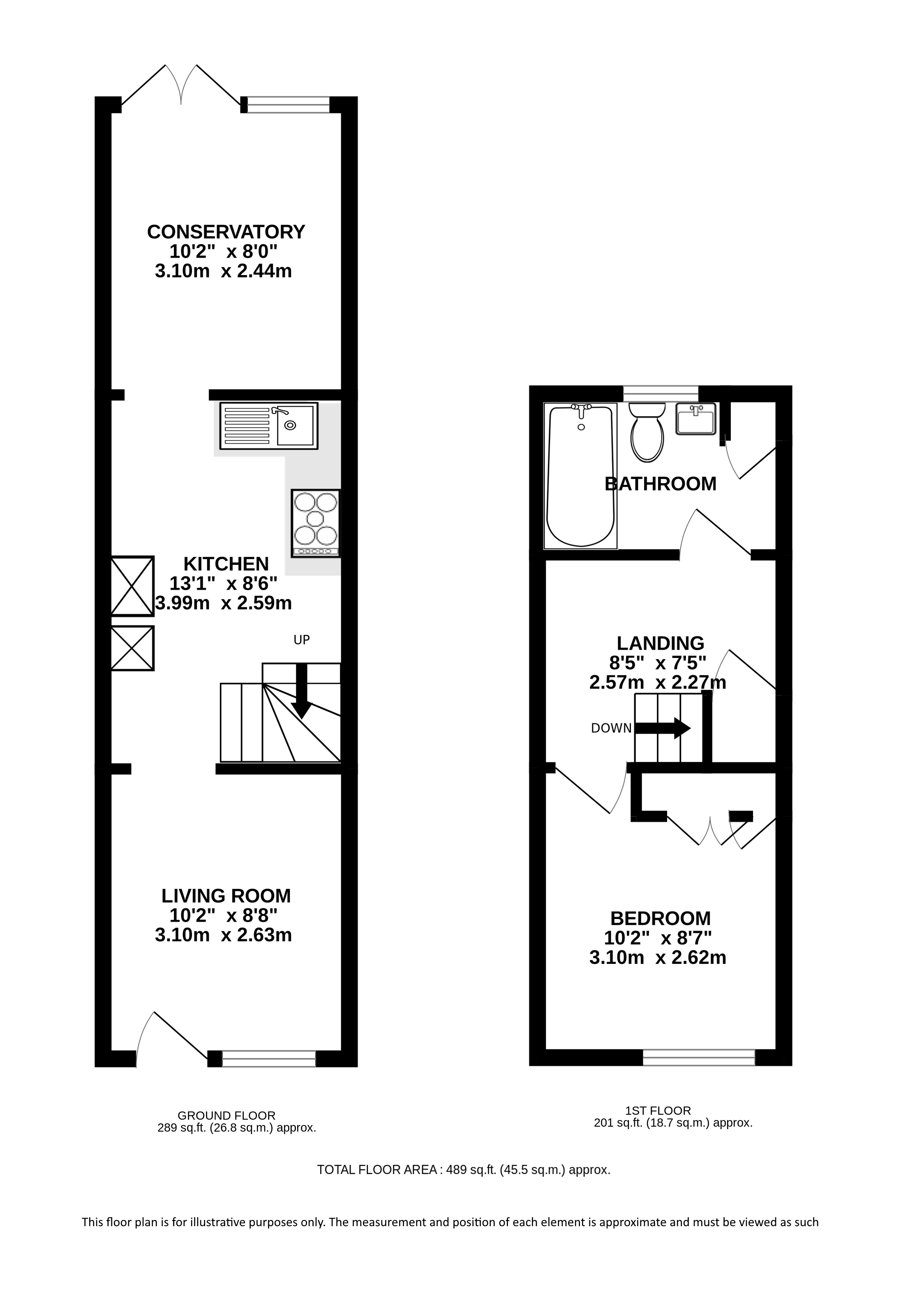
A charming one double bedroom cottage with a courtyard garden, located in the Conservation and close to the Mainline Station and City centre.

This pretty Victorian cottage is set in a fantastic central location and has been re-decorated and re-furbished to a high standard.

The front door opens into the cosy living room, which has solid oak flooring and a large double-glazed sash window. This leads through to the well planned modern fitted Kitchen, with a good range of white high gloss wall and base cupboards and appliances to include a large range oven as well as an integrated washing machine and dishwasher.

A contemporary conservatory space to the rear provides space for dining/study and this has access via double doors into the lovely courtyard garden which is paved for easy maintenance and has a pergola with covered roof and a gate to the rear which gives access to Lower Paxton Road.

The bedroom is at the front of the property and has a lovely vaulted ceiling. There is a large landing with storage and the recently refurbished bathroom is to the rear with a white suite and chrome towel radiator.

Old London Road is superbly located within a short walk of the city station and the bustling town centre.

Council Tax Band: C
Council Tax Payable: £2,006.35
Holding Deposit: £346.15
Total Deposit: £1,730.75

Whether you’re looking to
  • buy
  • sell
  • rent
  • let
  • buy
we would love to help.