Cavan Drive, St. Albans, Hertfordshire, AL3 6HR

Let
£1,800 PCM
Bedrooms
2
Bathrooms
1
Receptions
1
EPC:
D

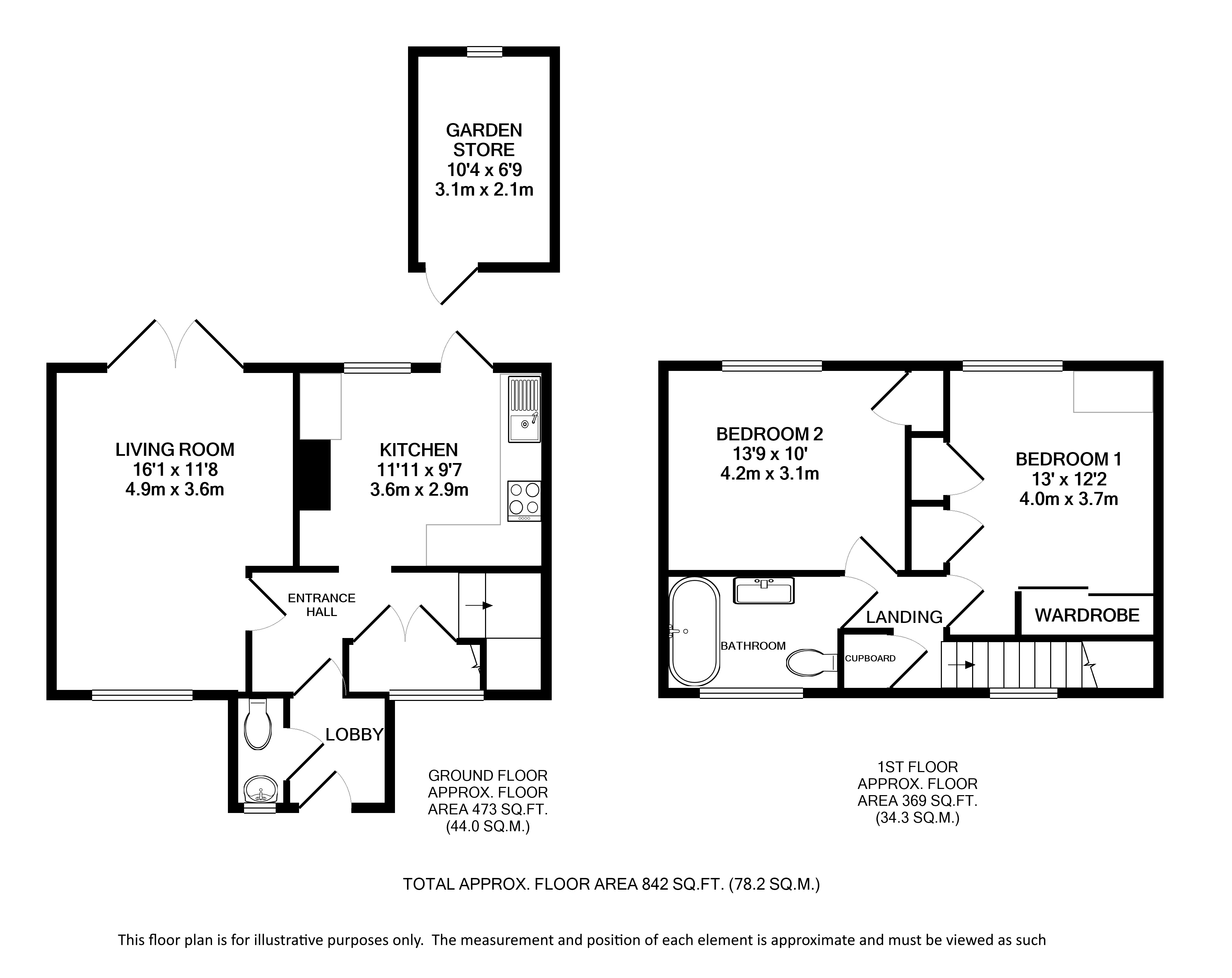
This lovely two double bedroom house is well presented throughout and features off-street parking and a good sized rear garden with a large patio/entertaining area and useful outbuilding.

This well presented home is located in an area popular for its excellent schooling, a sports centre and its easy access to St Albans town centre.

The house has a bright and airy dual aspect living room with French doors leading out to the rear garden. There is an inner hallway for coat storage which leads on to a convenient downstairs w/c with a hand wash basin. The kitchen has rear aspect windows, a door to the garden and also to the large outdoor building.

The principal bedroom has fitted wardrobes and the second bedroom is also a good double with a built-in storage cupboard. The modern bathroom has a bath with shower over, w/c and hand wash basin.

The secluded rear garden has pedestrian rear access, a large paved patio area, lawn and a brick-built storage room.

The front garden provides off-street parking.

Council Tax band C: £1,915.66 for 2024/25
Holding deposit: £415.38
Deposit: £2,076.90


Additional charges may apply

Whether you’re looking to
  • buy
  • sell
  • rent
  • let
  • buy
we would love to help.