Ribbledale, London Colney, AL2 1TD

£1,250 PCM
Bedrooms
1
Bathrooms
1
Receptions
1
Council Tax:
B
EPC:
E

Very private and recently modernised ground floor one bedroom apartment with it's own entrance and garden.

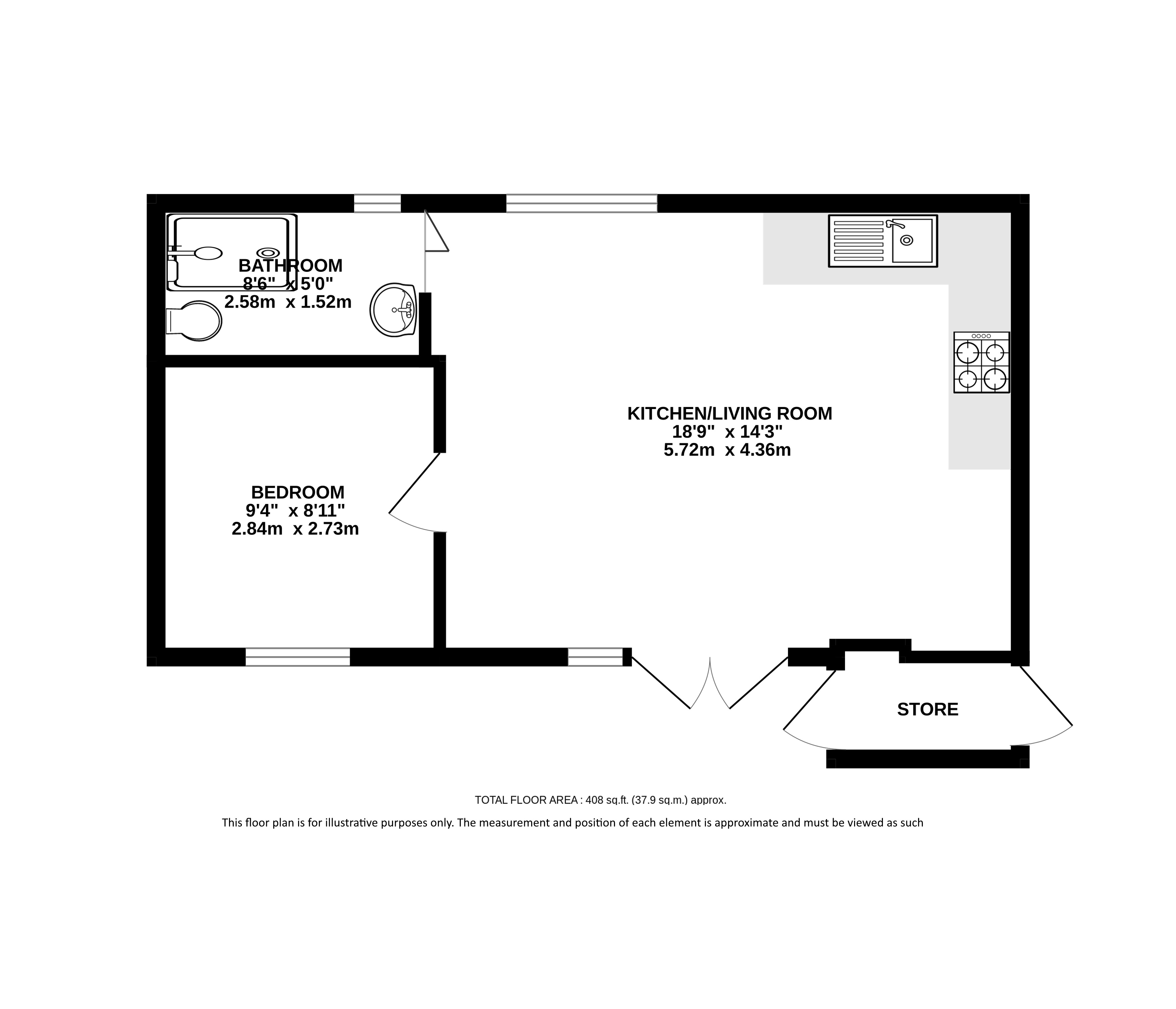
Located at the end of a quiet cul-de-sac, this low build, modern one bedroom ground floor apartment apartment has a lovely open plan layout and has been recently upgraded and modernised.
Entering the property via it's own front door, you immediately enter the light and bright living room/kitchen, which has wood flooring, a fully fitted kitchen with modern appliances and work station space.
The bedroom has built-in shelving and hanging and the tiled shower room has a window and extractor fan. The property also features gas central heating and double glazing.
Externally the garden is to the front and side of the building and there is ample free parking close by.

Ribbledale is ideally located on the doorstep of the M25 Junction 22, and is also within easy reach of the M1, A1 and A414. Mainline stations at St Albans and Radlett are also within a short car journey. There is a great selection of shops and restaurants nearby at London Colney High Street and at Colney Fields Shopping Park, which also has a large Marks and Spencer food hall.

Council Tax Band B: £1,831.57 (2025/26)

Council Tax Band:
Council Tax Payable: £1,831.57
Holding Deposit: £288.46
Total Deposit: £1,442.3

Whether you’re looking to
  • buy
  • sell
  • rent
  • let
  • buy
we would love to help.