Maryland Place, St. Albans, St. Albans, AL3 5FD

Let Agreed
£2,800 PCM
Bedrooms
2
Bathrooms
2
Receptions
2
Council Tax:
E
EPC:
B

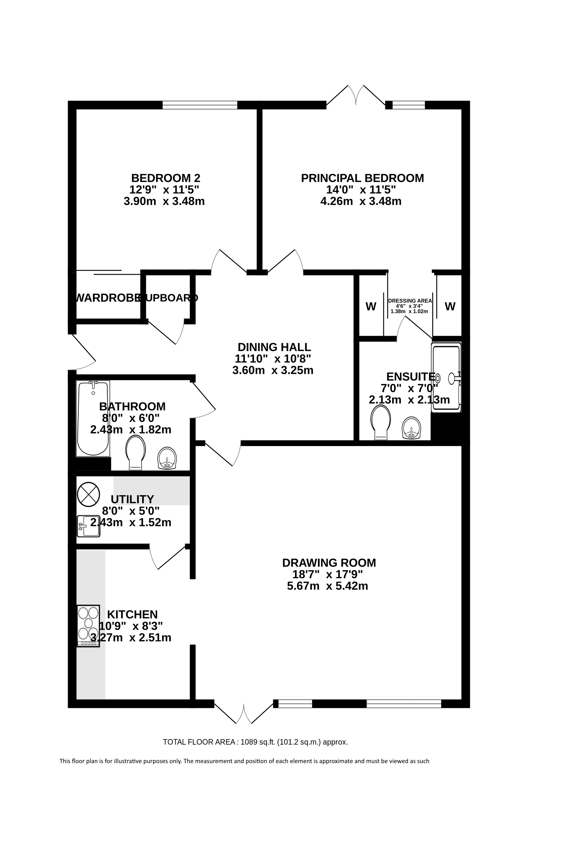
An extremely well proportioned two double bedroom ground floor apartment, positioned within an exclusive development for the over 55's.

Tucked away in an established residential area, and surrounded by attractive communal gardens, this immaculately presented property forms part of a carefully designed development comprising a mixture of houses and apartments. Approached through a well maintained communal hall, the front door opens into a hall which leads through to an impressive dining space, from which the living room is reached. This is a spacious room with glazed double doors leading to a private enclosed terrace. The smart kitchen is open-plan to the living room and is fitted with integrated appliances including double oven, dishwasher and fridge/freezer, and a useful utility room is located beyond. The apartment boasts two large bedrooms, both have fitted storage and the principal bedroom benefits from a thoughtfully designed dressing area which leads onto a stylish en-suite shower room, whereas bedroom two is served by a spacious bathroom. Double doors provide access from the principal bedrooms to a second pretty terrace with both paved areas and planted beds.

An allocated parking space is conveniently positioned close to the main entrance and further parking for visitors is provided within the development.

Built on the site of a former Convent, Maryland Place enjoys a quiet setting off Townsend Drive just north of St Albans. Less than a mile and a half from the mainline railway station, it is also within walking distance of the wide range of shops and restaurants available in the city centre.

Built on the site of a former Convent, Maryland Place enjoys a quiet setting off Townsend Drive just north of St Albans. Less than a mile and a half from the mainline railway station, it is also within walking distance of the wide range of shops and restaurants available in the city centre.

Council Tax Band: E
Council Tax Payable: £2,758.72
Holding Deposit: £646.15
Total Deposit: £3,230.76

Whether you’re looking to
  • buy
  • sell
  • rent
  • let
  • buy
we would love to help.