Flint Close, Breachwood Green, Hitchin, SG4 8PN

Guide price of £775,000
Bedrooms
4
Bathrooms
2
Receptions
2
Freehold

COMING SOON to the idyllic village of Breachwood Green, discover The Ash Collection – an exclusive new development of just ten luxurious detached homes

This exclusive new development from Blakeney Homes, presents a rare opportunity to acquire one of just ten luxurious detached homes, nestled within a serene village setting.

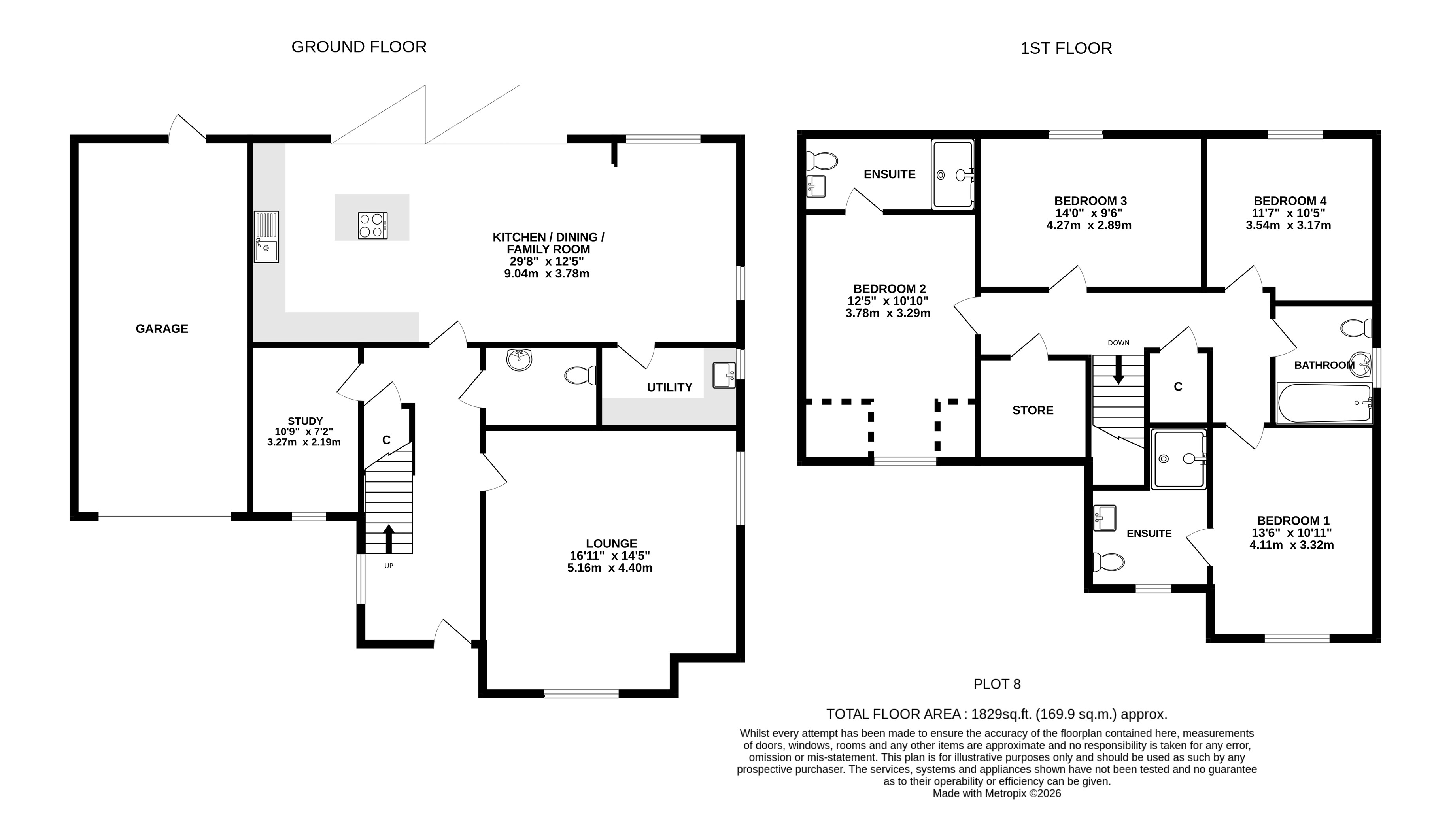
Plot 8 The Ash Collection is a four bedroom, three bathroom detached home with 1830 sq ft of spacious accommodation, integral garage and driveway.

These exquisite four and five-bedroom homes blend the timeless charm of Hertfordshire's countryside with the pinnacle of modern design and high-specification living. Prepare to experience a lifestyle where peace, community, and unparalleled quality converge.

Each property occupies a generous plot within a thoughtfully landscaped setting, ensuring a sense of privacy and a seamless connection to the surrounding natural beauty.

Architectural excellence is at the heart of this development, where traditional aesthetics meet contemporary luxury. Blakeney Homes has meticulously curated a specification that exceeds the expectations of the modern homeowner, featuring bespoke designer kitchens equipped with premium integrated appliances, elegant sanitaryware, and energy-efficient technologies.

Each home is further enhanced by an oversized garage and private driveway, catering to the practical needs of family life while maintaining the sleek, uncluttered lines of the streetscape.

Beyond the brickwork, Blakeney Homes is defined by an unwavering commitment to quality and a "customer-first" philosophy. With over twenty years of expertise, the developer treats every build as a masterpiece, ensuring that the finished product is not just a house, but a lifelong home. From the precision of the interior joinery to the durability of the external finishes, the high standard of craftsmanship provides homeowners with the peace of mind that their investment is built to last, backed by the personal care of a developer who truly values their happiness.

CALL NOW FOR MORE INFORMATION!

NB: External images are CGI, internal images are of previous Blakeney Homes development and show typical specification.

Life in Breachwood Green offers the best of the English countryside, with the village’s historic windmill and local gastropub providing a charming backdrop for daily life.

While the setting feels worlds away from the bustle of the city, the development remains exceptionally well-placed for families, falling within the catchment of highly regarded schools in nearby Harpenden and Hitchin.

With swift access to the M1 and Thameslink rail services, these homes offer a rare opportunity to enjoy an aspirational lifestyle in a community where tradition and luxury reside in perfect harmony.


In compliance with the UK's Anti Money Laundering (AML) regulations, we are required to confirm the identity of all prospective buyers at the point of an offer being accepted and use a third party, Identity Verification System to do so. There is a nominal charge of £48 (per person) including VAT for this service. For more information, please refer to the terms and conditions section of our website.

Whether you’re looking to
  • buy
  • sell
  • rent
  • let
  • buy
we would love to help.