Millstone Way, Harpenden, Hertfordshire, AL5 5FE

Guide price of £335,000
Bedrooms
2
Bathrooms
2
Receptions
1
Council Tax:
C
EPC:
B
Leasehold

CHAIN FREE - A beautifully presented top floor apartment in this sought after development close to local facilities.

CHAIN FREE - This top-floor apartment enjoys a highly sought-after position, ideally placed for everyday amenities, well-regarded schools, and open countryside. Harpenden town centre is within easy reach, offering a wide selection of shops, popular bars and restaurants, along with the mainline railway station providing excellent connections.

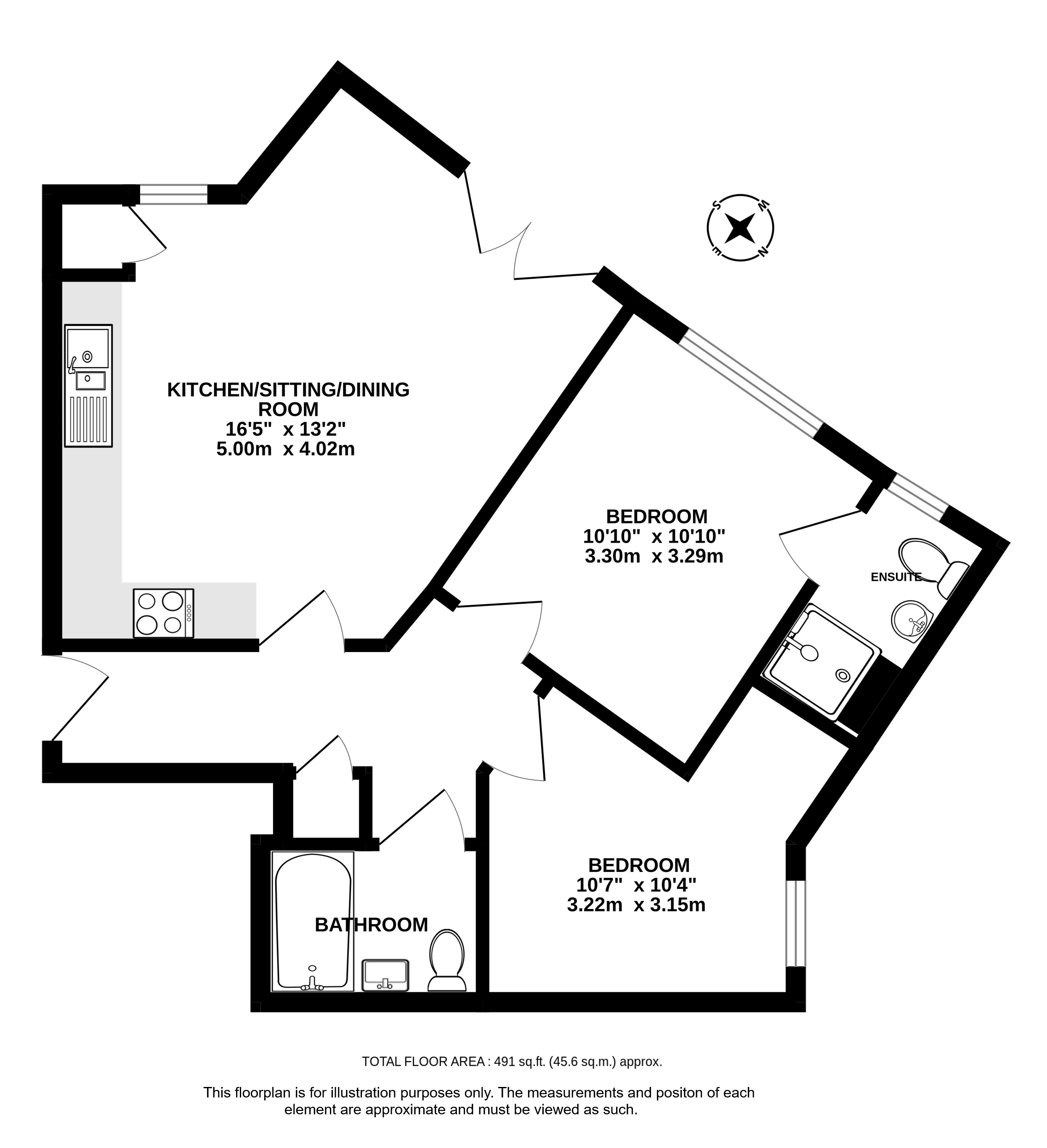
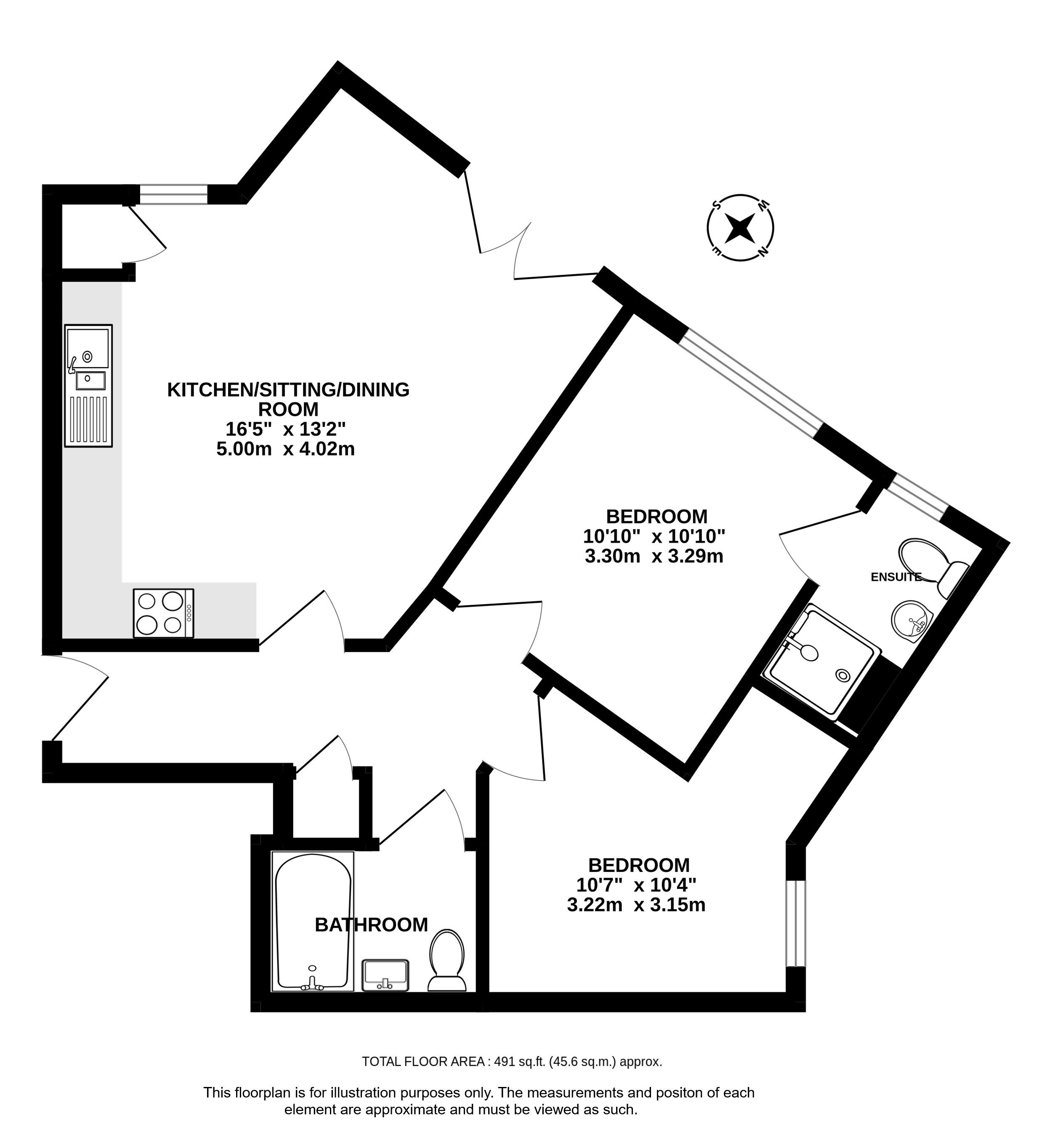
The property is beautifully presented throughout, offering bright, spacious and welcoming accommodation. It features two generously sized bedrooms, with the principal benefiting from a modern en-suite shower room. The large open-plan living and dining area includes integrated appliances and French doors opening onto a Juliette balcony, creating a light and airy space to relax and entertain. A further contemporary bathroom completes the interior.

Externally, residents enjoy well-maintained communal grounds and the advantage of allocated parking.

Council Tax Band C £2,082.29
Lease 115 years remaining
Service £1,376.26
Ground Rent £460.47

Tucked away from the Lower Luton Road, Millstone Way enjoys a tranquil setting within a modern and well-maintained development on the eastern side of Harpenden. Just over a mile from the town centre and mainline station, the location offers both convenience and a peaceful riverside environment alongside the River Lea. Residents benefit from easy access to local shops, pubs, and takeaways, while the Lea Valley Nature Reserve, with its open parkland and children’s play areas, is also just a short stroll away.

Council Tax Band C: £2,185.05 (2026/2027)
Service Charge: £1,376.26 per annum
Ground Rent: £460.47 per annum
Leasehold: 115 years remaining

Buyers Information:
In compliance with the UK's Anti Money Laundering (AML) regulations, we are required to confirm the identity of all prospective buyers at the point of an offer being accepted and use a third party, Identity Verification System to do so. There is a nominal charge of £48 (per person) including VAT for this service. For more information, please refer to the terms and conditions section of our website.

Whether you’re looking to
  • buy
  • sell
  • rent
  • let
  • buy
we would love to help.