Brocket View, Wheathampstead, St Albans, AL4 8BE

Let Agreed
£3,950 PCM
Bedrooms
5
Bathrooms
3
Receptions
3
Council Tax:
G
EPC:
C

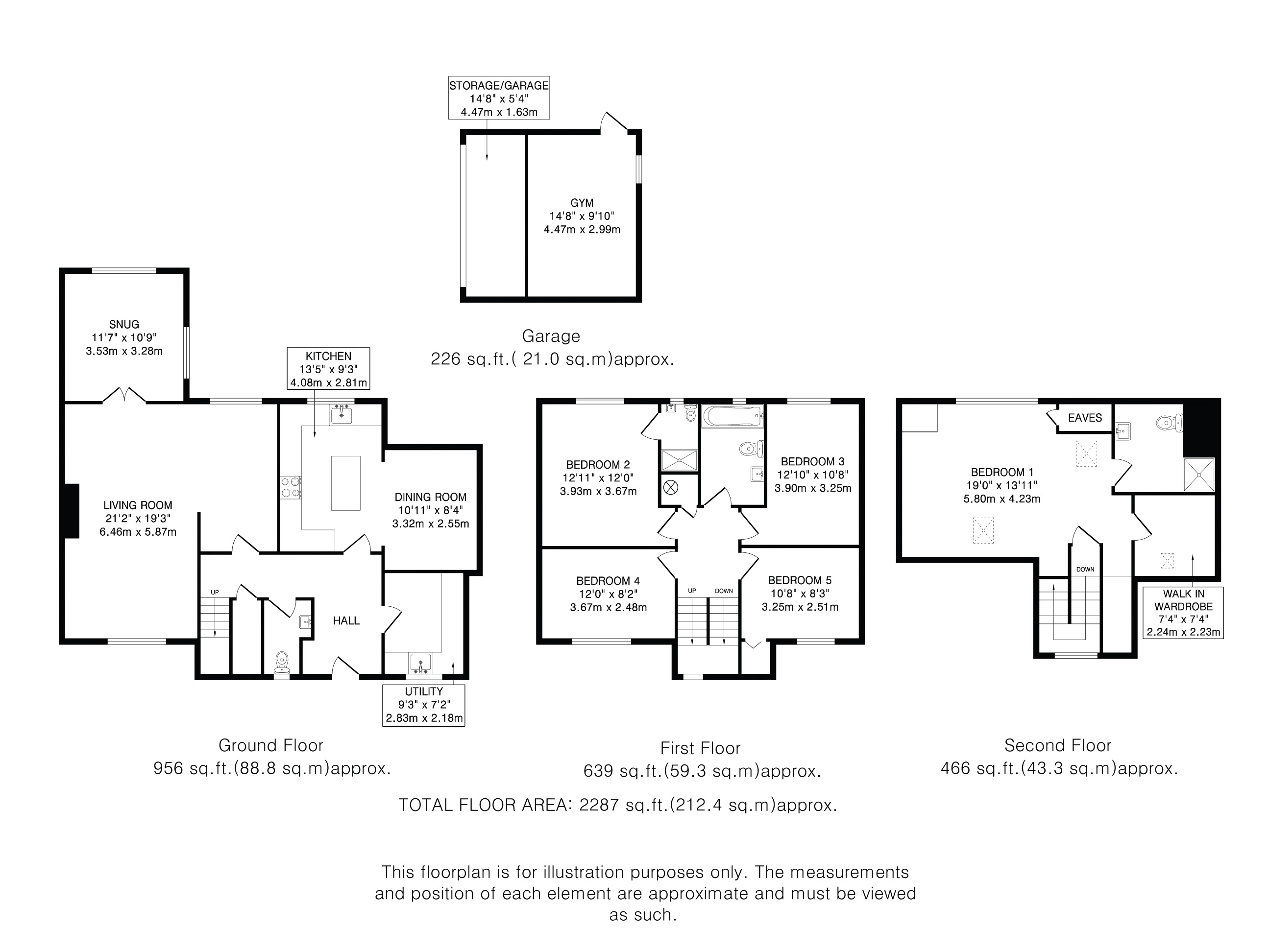
A large, attractive five-bedroom family home situated moments from the Wheathampstead High Street and local schools.

This impressive five-bedroom detached home offers a perfect blend of space, style, and modern amenities, creating an ideal setting for contemporary family living.

Set over three floors the principal bedroom suite is at the top of the house with ensuite and dressing area. Four further bedrooms are on the first floor with the guest bedroom offering an ensuite and the further three bedrooms serviced by the family bathroom.

On the ground floor discover three spacious reception rooms, providing versatile spaces for relaxation, entertaining. The inviting lounge features a multi-fuelled log burner, perfect for cozy evenings, with a convenient log store just outside. A modern kitchen with space to dine. With access to the garden to use in all weathers and has bespoke dining areas.

For those who work or exercise from home, the outside office/gym/studio is a standout feature, boasting electric power and hard-wired WiFi, ensuring seamless connectivity and productivity. The private drive is equipped with an electric car charger.

The thoughtfully designed garden features hot and cold taps, four power sockets, and dedicated private bin storage.

*There are chests of drawers in the top bedroom which would remain*.

Brocket View is one of Wheathampstead's most popular areas presenting an array of attractive houses. The location provides a wonderful setting for family life and is within striking distance of the village centre with its excellent assortment of shops, pubs and restaurants as well as being just a short walk from the Brocket Hall Estate and the tranquil Normansland Common. Harpenden town centre and station are just over three miles away and St Albans is approximately five miles away, both can be reached by car within ten minutes. If schools are on the agenda, the excellent St Helens school is just around the corner.

Council Tax Band: G
Council Tax Payable: £
Holding Deposit: £946.15
Total Deposit: £4,730.76

Whether you’re looking to
  • buy
  • sell
  • rent
  • let
  • buy
we would love to help.