Cravells Road, Harpenden, Hertfordshire, AL5 1BA

Let Agreed
£1,650 PCM
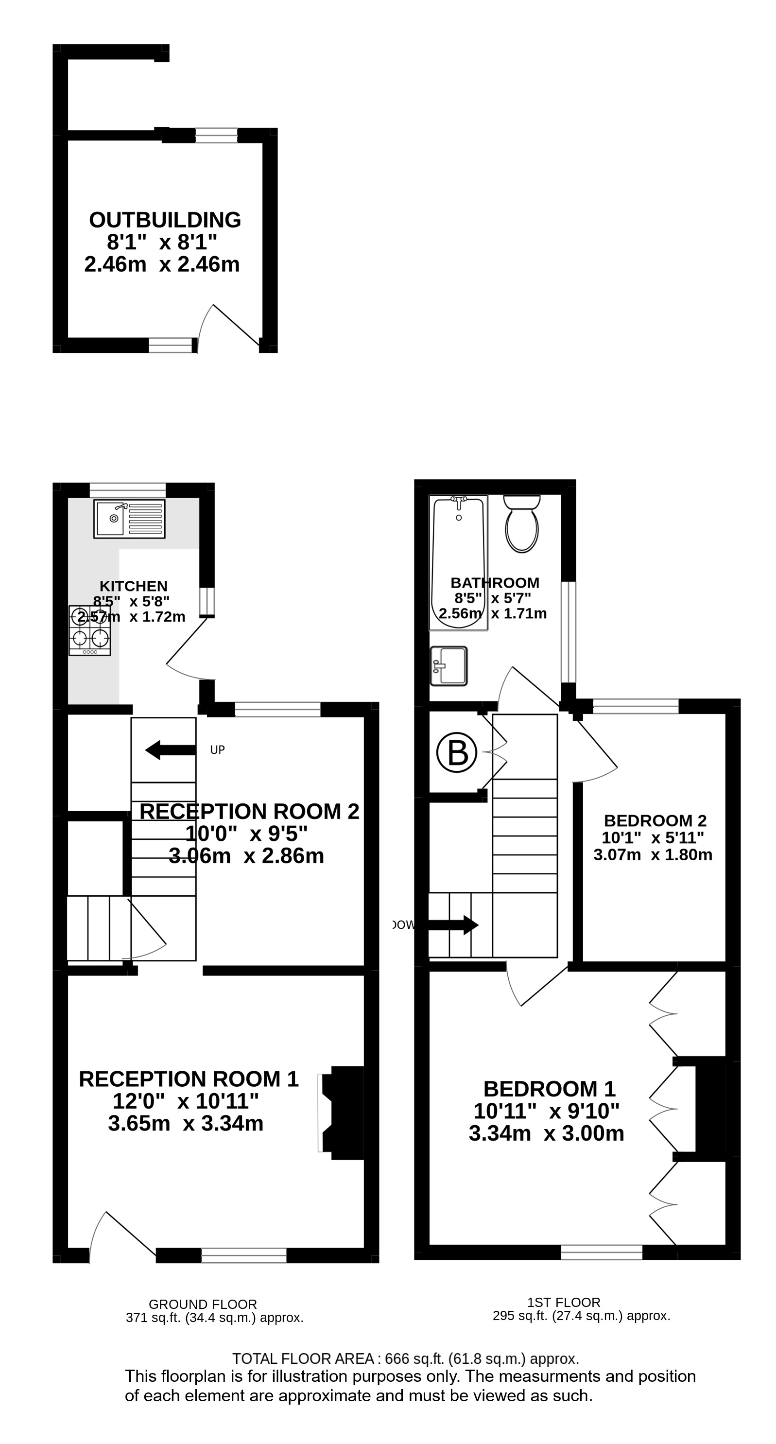
Bedrooms
2
Bathrooms
1
Receptions
2
Council Tax:
D
EPC:
D

A pretty two bedroom character cottage with lovely garden in this sought after location.

Approached via a small walled front garden, the front door leads into the front reception room with wooden floor and fireplace which in turn leads through to the second reception/dining room. There is a fitted kitchen with integrated appliances. Stairs lead to the first floor accommodation comprising a large double bedroom to the front with fitted wardrobes, a large single bedroom and a modern family bathroom with bath with shower over.
Outside to the rear there is a paved patio area and a very pretty long mature garden. There is also an outside store room.
On Street parking is available.

Cravells Road is a highly regarded location and is close to the local facilities of Southdown. Harpenden town and mainline station are just under a mile away providing access to London in under 30 minutes.

Council Tax Band: D
Council Tax Payable: £2,342.57
Holding Deposit: £380.76
Total Deposit: £1,903.84

Whether you’re looking to
  • buy
  • sell
  • rent
  • let
  • buy
we would love to help.