Collens Road, Harpenden, AL5 2AJ

Let Agreed
£4,500 PCM
Bedrooms
4
Bathrooms
3
Receptions
2
Council Tax:
G
EPC:
D

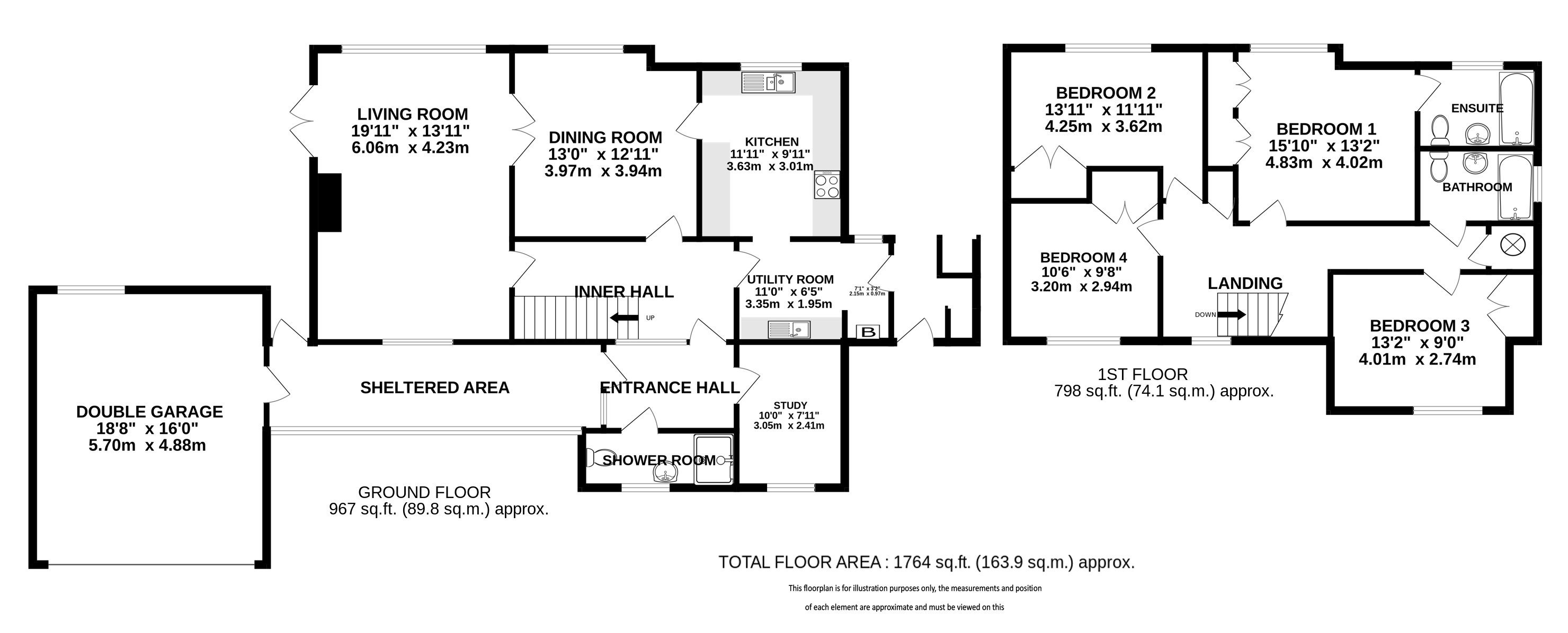
Four bedroom detached home with double garage, set on a generous plot in the sought-after West Common area.

Situated on a magnificent plot within a quiet and highly sought-after cul-de-sac in the desirable West Common area of Harpenden, this impressive four-bedroom detached home offers spacious and versatile living throughout.

The ground floor features a bright and airy lounge with a charming stone fireplace, overlooking the beautifully maintained rear garden, with doors opening directly onto it. The lounge flows seamlessly into a generous dining room, which in turn connects to a well-appointed kitchen fitted with a range of appliances. A separate utility room provides additional convenience, complete with washer, dryer, and side access to the garden. There is also a useful study and a downstairs shower room.

Upstairs, the property offers four well-proportioned bedrooms, all benefitting from fitted wardrobes. The principal bedroom enjoys views over the rear garden and features its own en suite. A family bathroom and ample storage cupboards complete the first floor.

Externally, the property boasts a double garage and a driveway providing parking for multiple vehicles.

Please note tenants are responsible for covering the additional cost of a gardener.

Collens Road is a peaceful cul-de-sac in the heart of West Common. The generous plot sizes along the road contribute to an idyllic setting and a wonderful feeling of space. Harpenden town centre with its vast array of shops, pubs and restaurants is just over a mile away and provides the mainline station direct to St Pancras International in under 30 minutes. Junction 9 of the M1 is just a ten minute drive away

Council Tax Payable: £4,096.96 (2026/2027)
Holding Deposit: £1,038.46
Total Deposit: £6,230.76
Additional charges may apply

Whether you’re looking to
  • buy
  • sell
  • rent
  • let
  • buy
we would love to help.